2025【郑州正弘序】售楼处电话/郑州正弘序项目首页/最新楼盘详情/郑州房产资讯

铜川楼市发布

2025-06-17 13:45:37

购房群

买房如何避坑,加入购房群,看看他们怎么说

立即进群

郑州正弘序☎售楼处电话:400-116-7720转999【售楼中心】☎

◆◆——网上售楼中心—— 欢迎来电预约尊享Vip一对一服务!◆◆

★★网上售楼中心——欢迎来电咨询〢——匠心钜制恭迎品鉴!★★

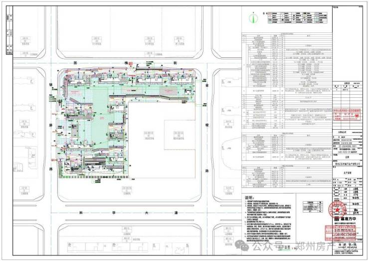
这个是项目的具体位置,在科学大道沿线上。银屏路东侧,国槐街南侧

除了位置,地块指标条件也非常优质,78.4亩,容积率2.5,建筑高度80米,建筑高度25%,绿化率35%,主城核心区2.5的这个容积率一入市就是香饽饽,非常的稀缺。

也是在8号线地铁口,8号线目前已经正式试运行状态。8站路直达正弘城,15站路直达东站。

高新区首个第四代住宅!合计798户

面积小于144平,一共78户,

面积大于144,小于180平,一共618户,

大于180平,一共102户,整体定位纯改善

以上分别是总平面图、日照图、海绵城市设计图

全部

相关资讯

报名成功
稍后会有专业的置业顾问联系您
返回楼盘

频道导航

返回首页

看房小程序

APP下载

电话拨通后,请您手动拨打分机号

确定拨打电话

电话号码:

分机号:(可能需要拨分机号)