苏州中海姑苏第售楼处电话☎️400-116-7720转接999(专人接听)
苏州中海姑苏第营销中心电话:☎️400-116-7720转999【营销中心】
🌈温馨提示:拨打400电话,听到嘀声后,输入分机号999即可!
姑苏区难得城市更新样板
中海·姑苏第择址COD核心区,落位资源浓度与高阶人居密度交融的“胥江高阶生活带”,与姑苏文化深度共鸣,兑现国际生活的全新预见,成为与时代并肩的风景,收获这座城市给予的掌声回响。
“两轨六轴“接轨TOD时代
古城之上的城市TOD,突破姑苏天际线,为苏州,重塑人居坐标。中海·姑苏第以TOD双轨交通为引领,擎速未来生活认识,将商业、居住、文化结合一体,突破空间桎梏,随古城澎湃向前。
姑苏第择址胥江COD板块,板块近年来多个全新打造高档品质社区,形成以高端人居界面为核心的“胥江高阶居住带”,板块内二手房价格远超其他板块,拥有较高的升值潜力与价值前景。
古城价值高地 二手房天花板
项目基础档案
项目名称:中海姑苏第
地块编号:苏地2023-WG-49号地块
开发品牌:中海地产
地段位置:姑苏区沧浪街道劳动路南、彩虹河西
占地面积:约1.6万方,容积率1.8,186套
住宅产品:拟建2栋14F小高层,4栋17F小高层
户型面积:主力户型建面约130/155/183m²
装修配置:装修交付,装标不低于3000元/㎡
车位配比:1.96:1(364个)
价格信息:楼面价28750元/㎡;备案均价47495元/㎡,总价区间:542-776万
【配套-姑苏繁华之源 精粹高阶生活】
城市功能配套完善醇熟,核心商业、教育、医疗等资源丰盛汇集。是古城区少有的集“通商园游住”为一体的稀缺住区,集合了狮山的配套+园区的界面+古城的内核,可以说是集姑苏繁华精粹于一身。
【通】交通上,呈现两轨六轴的格局。
双轨TOD,紧邻地铁2号线(南北向)和5号线(东西向)(注:双轨交汇的新盘,在苏州很少很少),无缝对接1/3/4号线,将来5站路就可以到火车站,5站换乘到新区狮山,8站抵达园区湖西。贯穿苏州东西和南北量大动脉,方便触达全城,本项目也是内环稀缺的双轨站交汇的新盘项目。
六轴则指本项目紧邻劳动路、桐泾南路,链接城市大动脉干将西路、西环、南环、人民路,半小时内通达全城。
【商】商业上,本项目位于刚开业的胥江天街西侧,是家门口的商业综合体。胥江龙湖天街是“商业重回古城”战略第一枪,超300家品牌入驻,拥有超30%姑苏首店。
【园】景观上,项目家门口即是大花园——劳动公园,南侧临近姑苏区最大的市级公园——桐泾公园。
【游】文娱上,举步可达南侧胥江沿河景观带,临近平江历史文化街区,畅游平江路、拙政园、苏州博物馆、城墙博物馆等蜚声海内外的知名景点。
【住】在教育上,姑苏区自古以来教育氛围浓厚,人才辈出。项目周边胥江小学、胥江实验中学。医疗上,临近三甲苏大附属第二医院(曾获得全国三级公立医院考核第二名)。

【社区规划】
在产品上,项目以姑苏地脉为基,打造了集“无界、雅筑、桃源、精奢”为一体的产品价值体系,规划有6栋14-17F小高层,建筑面积约130~183㎡隐奢精装大平层。

【景观布局】
中海·姑苏第打破自然与建筑的边界,将外部彩虹河、劳动公园与内部景观相融合,举步即达胥江景观带。在景观打造上,取义江南古典园林精髓,以水、石、竹 为元素等,打造游心江南的四季景观。

【建筑风格】
汲取苏绣框镜灵感,借鉴竹辉金普顿酒店,以大面积玻璃幕墙,打造琉光美学立面;取意竹叶曲线,构建屋檐造型;同时,双精装酒店式入户大堂,繁华静谧随心切换。

【户型空间】约130、155、183m²隐奢大平层。在空间上,打造超配尊享人居,以奢适空间、温润材质、精工匠艺、多重收纳等手法。营造城心隐奢大宅。
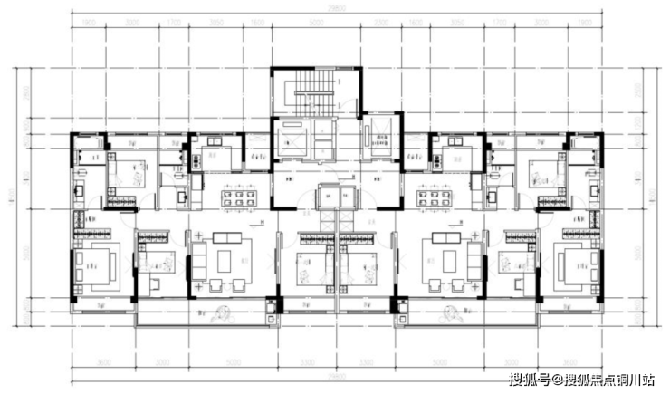
130㎡户型标准层平面图
130户型是2梯2户设计,做的大三房。入户玄关储藏空间比较大,收纳充足。三开间朝南,朝南面宽13.2米,大横厅与阳台直接相连,开间6.4米。
155㎡户型标准层平面图
155户型也是2梯2户设计,做了4房2厅2卫。户型格局与183户型差别不大,相当于是缩小版。南向面宽14.9米,客厅开间5米,阳台宽8米。
