🌈武汉天创元萃售楼处电话:☎️400-116-7720转接666(专人接听)
🌈武汉天创元萃营销中心电话:☎️400-116-7720转接666【营销中心】
🌈温馨提示:拨打400电话,听到嘀声后,输入分机号666即可!
规划用地面积:11771.79㎡
总建筑面积:23499.17㎡
容积率:约2.0
开发商:湖北天创瑞晟置业有限公司
产权年限:70年
产品交付:毛坯
绿地率:约30%
梯户比:1梯1户/2梯2户
得房率:部分户型可达约113%超高使用率
在售楼栋:1#2#3#4#
面积:127/142/171㎡
总户数:159户
总高:10-13层
均价:3万/㎡
物业:天创智造
物业费:待定
车位比 :1:0.88
交付时间:2027.6.30
地铁:5号线(可换乘2/4/8/12等)
商业:昙华林/粮道街/滨江天街/万象城/skp
医疗:湖北省中医院/湖北省人民医院/第三医院,3家三甲医院+1家中高端儿童医院,全年龄段健康权威护航
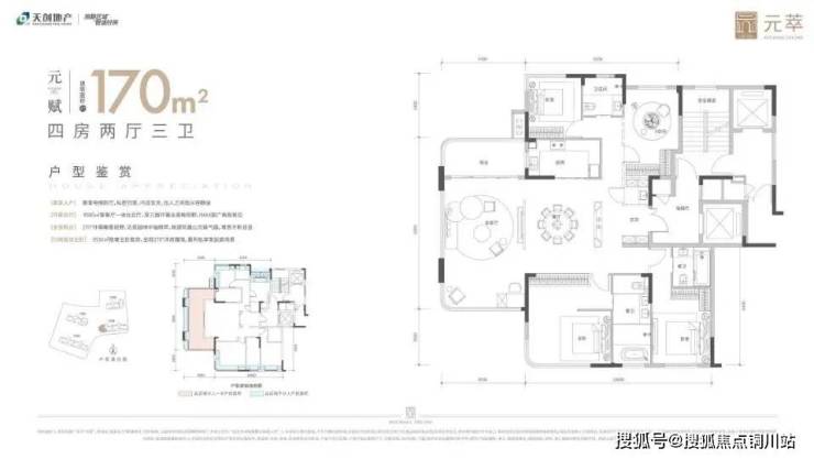
户型赏析
127m² 四房两厅三卫
4栋楼中都有127平的户型,数量是目前已公示的三个户型中最多的,并且绝对面积不大,总价门槛会相对另外两个户型低一些,算是武昌下半年相对较少的小面积产品。
户型本身非常的方正,阳台外带花池,拓展面积就比较多,据宣传,加上电梯厅,这一户型优化后的得房率高达约117%,放在三环内四代宅里面来看,这个得房率绝对是数一数二的了。
127平做成了四房三卫双套房的设计,功能性超级强,三代同堂或者二胎家庭也非常适合;南向面宽12.7米,采光面也是比较充足的,缺点是有个套房内的洗手间为暗房,除此之外,其他方面都很不错。
142m² 四房两厅三卫
这一户型的得房率同样约117%,相当出彩。
分布于2、3、4号楼的端头边户,房源数量也还算相对较多的。
南向面宽约15.9米,南面同时实现双套房+大横厅,舒适度更高;
主卧套房面积约35平,空间相当的阔绰,并且采用了转角窗+曲线外立面,观景视野、光照效果都更好。
170m² 四房两厅三卫
这一户型优化后得房率约106%,略低于前两个户型,但放在核心区,依然是相当炸裂的存在。
同时,这也是项目最大面积户型,仅分布于2号楼最西端,房源数量是最少的。
客厅采用270度全景舱设计,非常适合观景的设计,并且南向主卧套房也采用了转角窗设计,观景面再次延伸,配合2号楼西头的位置,可三面俯瞰小区园林+南瞰市政公园,景观视野一绝。
💎根植地脉 萃炼五礼元境
以凤凰山为屏,以长江水为灵,从非遗工艺中提取肌理,同步卢浮宫金字塔的“经纬线”的世界审美。以“无穹元境”为主题,打造六重无穹景致的“五礼制归家礼仪”。
•一礼:元制古法,礼遇非遗
纯古铜鎏金水波纹,由数十位非遗匠人以80000锤非遗錾刻淬炼。以西形,赋东意,由非遗匠人手工凿刻“引水琢玉”。
•二礼:元蕴风水,引水琢玉
设门、台、水、亭四点成线,借鉴匠法于中央水景巧设全景会客厅,精择朴树、乌桕等名贵植株,引入樱桂枫梅等四季花木,打造立体多维水景园林。
•三礼:元脉雅景,山水入怀
打造绿野童梦无界儿童乐园、无界运动场,融萃大地自然腔调,无界花园以自然花木、花园替代传统隔断,打造景观节点,借凤凰山为天然背景,体验士大夫人生十乐。
•四礼:元庭礼序,显赫归邸
中央车站式大厅「铂金仓」采用奢石“红丝绸”,设计完全独立、双向通行的尊荣车道;
社区尊奢会所「风雅集」风雅集,私宴厅、会客厅、行政酒廊、棋牌室、室内桌球、KTV等多元空间;
私属下沉庭院「鸣翠台」围合式布局,精择名贵花卉绿植,圈层社交专属场域。
•五礼:精工钜制,元礼迎归
转译千年仪门元素,传承经典建筑要素,首层公区打破传统入户局限,星级大堂融入昂贵奢石,每一步皆尊崇。

🌟隐贵奢品 内环唯一超四代纯洋房住区
•使用率:部分户型可达约113%超高使用率。
•梯户比:两梯两户/一梯一户,尊崇电梯前厅。
•低密洋房:容积率仅约2.0,内环罕见10-13层低密纯洋房社区。
•270°全景视野:揽极致视野,私藏长江胜景、黄鹤楼(部分户型可观长江、黄鹤楼)。
•全系双套房奢雅户型:建面约127-170㎡全南向设计,多面宽、灵动空间,满足多元生活场景。