✨武汉信达时代央著湖璟售楼处电话✅:400-116-7720转777
✅武汉信达时代央著湖璟营销中心电话☎:400-116-7720转777【营销中心已认证】🥇🥇
✨武汉信达时代央著湖璟售楼处电话✅:400-116-7720转777
✅武汉信达时代央著湖璟营销中心电话☎:400-116-7720转777【营销中心已认证】🥇🥇
🏆本项目暂不接受临时到访,看房请提前预约,可尊享内部特惠!
🏆为您安排楼盘内场专业销售人员一对一接待服务,给您更贴心的看房体验!
信达地产“匠心论道”第86期分享活动如期开展,由华中区域公司袁胜利分享武汉时代央著湖璟项目外立面细部优化设计。
当前,房地产行业发展到新阶段,房地产企业和客户对产品力的追求更加极致。设计管理人员必须顺应市场趋势,更加注重工程品质和建筑外在元素,努力做出超越竞品和自己的产品。本次分享以武汉时代央著湖璟项目为例,在建筑外立面设计中,设计人员从远瞰尺度、近人尺度两个方面,分别对外立面线条、首层大堂单元门的细节进行了优化设计,保证了方案设计效果的落地;同时综合平衡成本投入,重点投入在客户能感知到、触碰到的细节,体现公司营造高品质住宅的匠心和能力。
时代央著湖璟项目,地处武汉市中央商务区南部,项目规划建设6栋住宅楼(2栋130.6米,4栋100米及以下)、2层地下车库及部分公建配套。项目定位是品质改善楼盘,是华中区域公司在武汉首个自主操盘开发项目。
项目建筑立面以梦泽湖成群展翅飞翔的水鸟作为塔冠的设计参考,既体现当地特色,又增强设计整体性,简洁现代。外立面材质为高级灰玻璃+金属铝板,感观通透润泽。


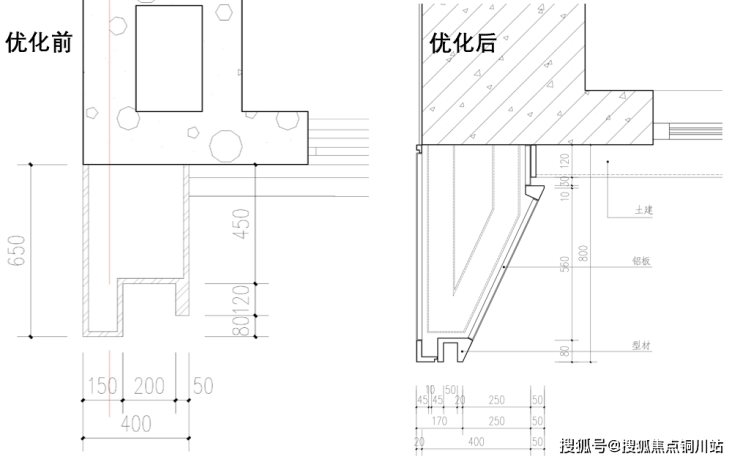
1. 南立面
原方案采用铝板构造做出方形直边造型,对室内视线有一定遮挡,工艺要求高,竖向线条不够挺拔。
(1)南立面竖向外框大线条优化:界面内方向调整为外切斜面,减少视线遮挡;增加展示细节,设计更细致,提升品质;小尺度构造采用型材,更挺拔,减少铝板弯折,减小施工难度。


(2)南立面竖向中心大线条:界面内方向调整为外切斜面,减少视线遮挡;增加展示细节,设计更细致,提升品质;小尺度构造采用型材,更挺拔,减少铝板弯折,减小施工难度。


(3)南立面竖向次线条:增加中间凹槽,细节更丰富;小尺度构造采用型材控制,提升品质,减小施工难度。


(4)顶部线条及玻璃分割:玻璃增加划分,减少厚度。竖向分隔,设200宽透风空隙,降低风压。

(5)南立面横向主线条:上下口线条做平,立面平整、简洁,细节展示更丰富,室内观看效果更好。


(6)南立面横向次线条:南立面横线条型材种类简化,减少开模成本,增加细节展示。室内观看效果更好。


(7)南立面窗框:窗框外增加金属框收边,与横向线条形成整体边框。

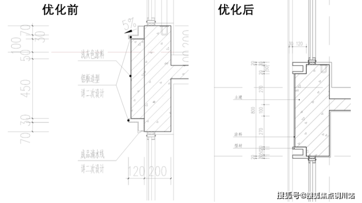
2. 北立面
原方案采用铝板构造做出方形直边造型,对室内视线有一定遮挡,工艺要求高,竖向线条不够挺拔。楼梯间窗户为1.2米宽平开窗。
(1)北立面竖向次线条:前端展示面为铝板,内界面调整为斜切面,增加细节展示;后端非展示面为土建造型。