苏州东吴序售楼处电话:400-116-7720转接999【已认证】【售楼地址】
温馨提示:网上售楼中心〢欢迎来电咨询〢安全通话隐藏真实号码〢
✦来电咨询最新售楼地址,专属置业顾问详解,请提前联系售楼销售进行预约登记
1,项目是一个小型的住宅社区,自带商业;
2,项目的产品为联排、洋房;
3,其洋房为全装修交付,最低装标2000元/平;其联排鼓励为全装修交付;
4,项目的户型168平起,
4,项目总户数78户,车位188个;


户型面积段出炉
东吴序目前还没有公布官方户型图,不过户型面积段已经出炉了,分别是别墅215-245平,洋房168平!
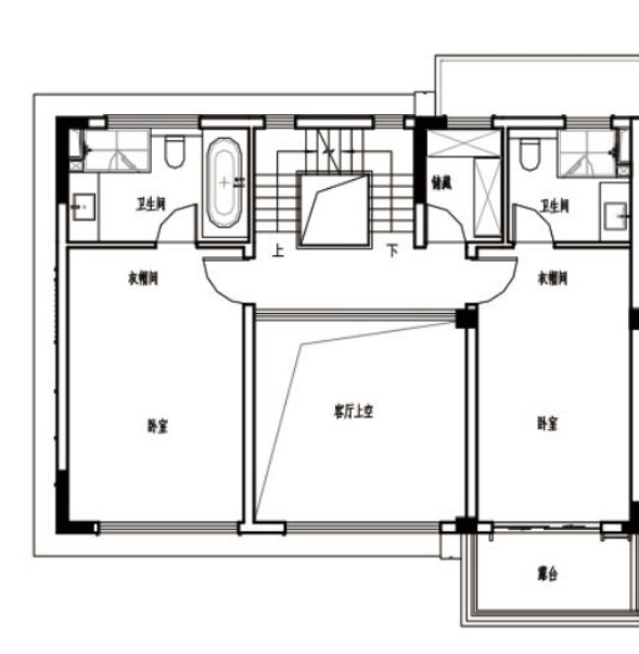
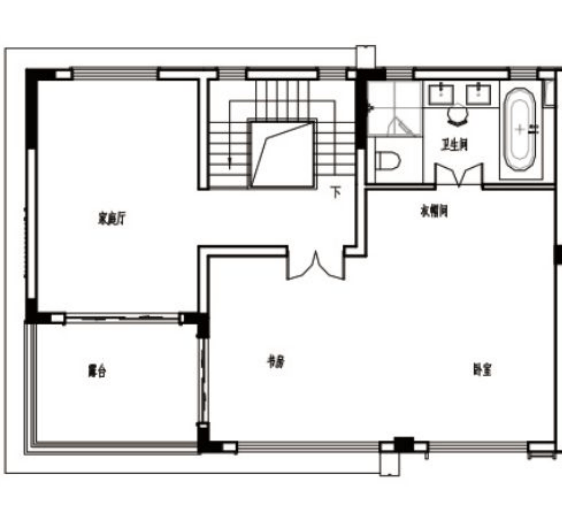
项目此前公示了2#、6#的户型标准层示意图。

2#,3F联排

1F

2F

3F

苏州东吴序售楼处电话:400-116-7720转接999【已认证】【售楼地址】
温馨提示:网上售楼中心〢欢迎来电咨询〢安全通话隐藏真实号码〢
✦来电咨询最新售楼地址,专属置业顾问详解,请提前联系售楼销售进行预约登记