苏州建发璟园售楼处电话400-116-7720转999(官方认证电话)

规划来看,项目是妥妥的低密度小区,容积率只有1.15,来具体看看这个项目:

纯墅类?
建发金门47号地块项目,即,苏地2024-WG-Z47号地块,位于姑苏区金阊街道金门路北,馨泓路东地块,4月2日,建发以总价53104万元竞得,成交楼面价26054元/平,溢价率23.77%。

该项目的地块用途为城镇住宅用地,占地面积17723.6平。
根据规划信息,项目的总建筑面积35531.39平,容积率1.15.
根据规划,项目拟建8栋4-6F住宅。

1,项目的容积率为1.15,为低密住宅社区;
2,这是新中式的低密住宅社区;
关于更多苏州楼市的楼盘信息,或者您想和其他购房小伙伴一起咨询讨论,欢迎扫描下方二维码,添加小胖君,加入小胖看房团~

规划户型出炉
项目公示了3#的户型标准层示意图。



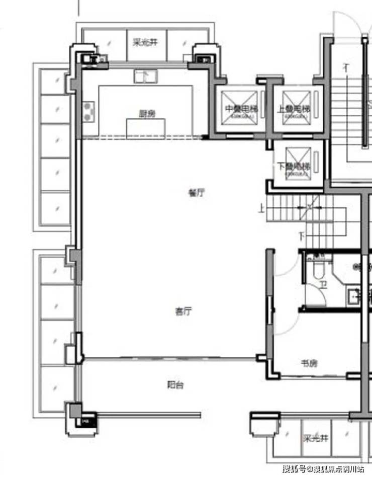
来看看下叠的规划户型图!
整体来看,户型设计是很一般的,一层是动区,做了个带暗卫的书房,把阳台改造进去可以做个套房,但是因为一楼只有一个卫生间,房间的私密性会比较差。
二层也是一个带暗卫的卧室,客厅上空可以改造,北面还有一个卫生间和卧室!

周边界面不错!板块还有新项目
建发47号地块位于姑苏区金阊街道金门路北、馨泓路东。位置上来看其实还不错,周边基本都是住宅小区,居住氛围比较浓。而且项目周边还有一个项目在售,一个项目待售,算是姑苏区存货比较充足的板块。
苏州建发璟园售楼处电话400-116-7720转999(官方认证电话)