🌈太原万科悦都荟售楼处电话☎️400-116-7720转接999(专人接听)
🌈太原万科悦都荟营销中心电话:☎️400-116-7720转999【营销中心】
🌈温馨提示:拨打400电话,听到嘀声后,输入分机号999即可!

万科悦都荟,位于太原南站南面,紧邻太榆路。总规划11栋23层小高层,万科都荟四季,包括了7栋11层到12层的小洋房。万科悦都荟,总户数1824户。万科都荟四季,总户数482户。

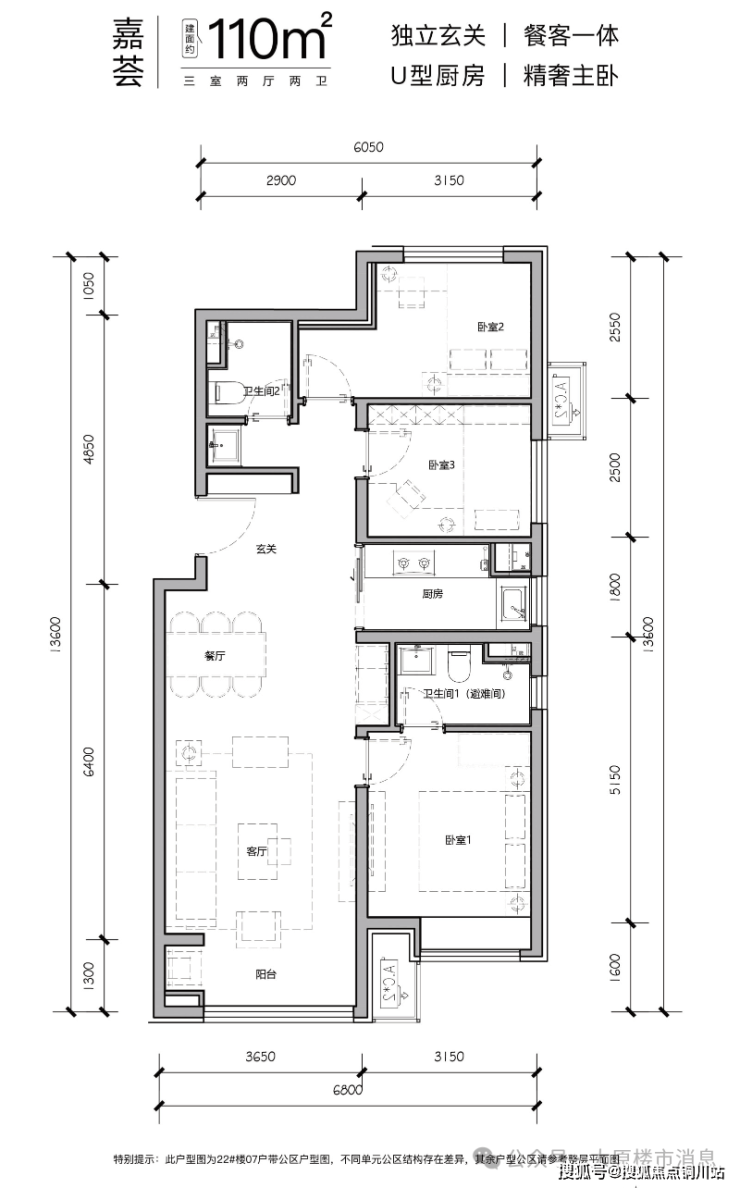
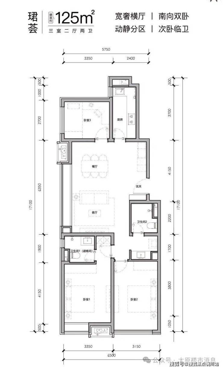
万科悦都荟,目前在售13号楼,总高23层,总户数207户,精装修,89平两居(售罄),105平(主力)和108平三居,125平大三居。团购优惠后,成交均价在11700-12500左右。


万科开发,物业自持,物业服务排名第一,业主满意度和口碑都非常好。项目施工进度正常,资金强监管,2025年年底和2026年6月交付。目前,大部分楼栋已经施工封顶。

万科都荟四季,在售4号楼和7号楼,户型有127平和140平,容积率低,公摊小,楼间距大,采光好,住着舒服。


万科都荟签约太师三附小,今年9月份已经开学。出小区门,入校门,业主子女可以报名入学。小学在小店区内口碑很好。

万科都荟小区园林绿化率高,功能区划分合理,容积率低,楼间距大,也有洋房产品,业主入住后,舒适度会很高。万科物业管理,小区内的绿化树木保持度很高,业主体验感更好。

万科都荟,离南站很近,附近有地铁一号线和地铁三号线换乘站点,双地铁线路配套。到南站机场不远,不在航线正下方。交通出行,太榆路,南中环,龙城大街,公交线路多。附近有商业体印象城。