🌈济南海信君安售楼处电话☎️400-116-7720转接999(专人接听)
🌈济南海信君安营销中心电话:☎️400-116-7720转999【营销中心】
🌈温馨提示:拨打400电话,听到嘀声后,输入分机号999即可!
君安自面市以来,便以不可撼动的姿态,雄踞济南豪宅市场之巅。它不仅用产品实力不断改写着豪宅天际线,更以持续进化的产品哲学,重塑济南高端住宅的价值标准。
5月31日,君安全维展示区开放时那句掷地有声的宣言——“墅立经十大宅门”,在业内引发深度思考。“在17层的建筑高度下,何以冠以“墅”之名?”
这个看似矛盾的命题,恰恰揭示了当代别墅产品发展的新方向,既真正的墅品,从来都不应受于形态的桎梏。
君安坚守低密、私享、高度定制的“墅居”核心价值,同时突破“别墅=低层建筑”的固有认知,凭借海信地产30年的智慧积淀,在17层的垂直空间挥毫泼墨,重新定义泉城塔尖生活的场景与体验。
在当代别墅进化的宏大叙事中,君安以【云墅】、【天墅】、【院墅】三大全新墅品,实现对空间价值的革命。
【云墅】之名,绝非顶层专属的桂冠,而是对生活可能性的深度探索。
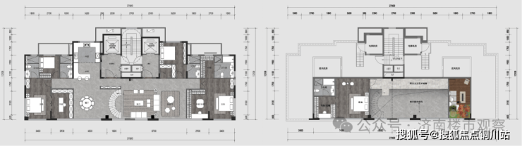
在云墅居者才是空间高度的真正定义者!16层的层峯视野、11层的俯瞰园林、7层的亲切尺度,三类楼层可按居者需求、喜好随心选择。
此外,云墅以“面积定制”打破常规:约280㎡起跳的灵动空间,让儿童乐园、茶室、书房等多元场景自由组合;约466㎡的超级平层,通过约178+228㎡单元的创造性融合,实现传统别墅难以企及的空间气度。

更值得称道的是,除“楼层定制”与“面积定制”外,云墅以非凡的空间想象力、打造力,展现出更多的硬核价值。
约92%得房率,这绝非冰冷的计量单位,而是空间价值的直观体现。在同等投入下,置业者将额外获得近10%的实用空间,这相当于一间完整功能的次卧面积。
云墅的归家动线经过精心设计,主客分流彰显尊崇礼序。
主人由玄厅从容步入私密生活区,在静谧氛围中卸下疲惫。家政服务则通过独立通道直达功能区域,动线清晰互不干扰。这种双轨并行的空间规划,既确保了居住的私密性,又实现了生活的高效性,完美诠释了君安对现代高端住宅的深刻理解。

约15米面宽的超级餐客厅,相当于将多数人家的整个住宅东西的面宽,都浓缩为云墅客厅与餐厅的专属领域。超然尺度不仅彰显居者气度,更成就了家庭生活的万千可能。
云墅以现代家庭结构为设计原点,精心规划5个配备独立卫浴的套房空间(含保姆间),为每位家庭成员构筑尊严与私密并重的独立天地。
四间全南向卧室,将阳光转化为家人健康的天然守护。
老人房中,和煦阳光与袅袅茶香相伴,营造静谧养生空间;儿童房内,每一寸阳光都温柔呵护着成长的足迹;主人套房则让晨曦与星光自然流转,成就舒逸生活的最佳注脚。
如果说云墅开创了峰层视野的全新可能,那么天墅则是为执着于城市之巅的层峯人物打造的终极居所。
作为顶层生活的极致表达,天墅以其标志性的“空中院落”诠释着无可复制的居住哲学。
天墅摒弃传统“四代宅”的悬挑露台设计,坚持“极致通透”与“极致私密”,采用无顶盖遮蔽的设计理念,让居者得以直面苍穹,实现人与自然的深度对话。
它通过精妙的空间规划,有效规避一切视线侵扰,形成仅供至亲挚友共享的静谧天地。这种以“院子”替代“露台”的革新,正是层峯人物居住需求的终极答案。


天墅将不计入产权的空中院落作为珍贵附加值,与精心规划的室内空间完美融合,在相同建筑体量内创造出超乎预期的实用价值。
天墅将传统设计中常被忽视的边角区域,转化为雅致的阅读空间与芬芳的绿植角落。让每一处细节都彰显着“寸土必争”的设计智慧,让空中院落的馈赠渗透至生活的每个细微之处。
云墅彻底打破了平层空间的局限感,以约6米的挑空设计,让客厅视线无阻地直达顶部采光天窗,与空中院落构成震撼的立体对话。
约15米的巨幅客餐厅与空中院落完美衔接,共同打造出尺度恢弘、功能复合的超级社交场域。会客区、用餐区、休闲区三大功能空间有机串联,形成流畅的空间序列。
家宴时分,长辈备餐与孩童嬉戏在空间里交织;商务接待时,连贯的奢阔空间从容承载高规格社交,每个细节都彰显着主人的非凡品位。
与云墅产品一样,天墅同样恪守尊崇私密的原则。
主人归家,经由仪式感十足的玄厅,优雅步入私属领域;家政服务则通过高效便捷的专属通道,直达后勤区域。动线清晰分离,保障主人生活的绝对静谧与云端宅邸管理的井然有序。
三个均配备明卫的全明主卧套房,精准匹配多代共居或高频待客之需。
长辈房紧邻院落,方便晨昏活动,亲近自然。主人套房位于深处,私密静谧,坐拥开阔远景。客房灵活,可供子女休憩或贵宾下榻。
院落情怀,是镌刻在中国人骨子里的文化密码,而院墅将这份对土地的眷恋推向极致。
君安的院墅实现了真正意义上的“顶天立地”院落,让现代都市人既能仰望星空又能触摸大地,。
院墅所呈现的,是与天地共呼吸的至臻生活境界。
阳光毫无保留地洒落庭院每个角落,雨露直接浸润着芬芳的泥土。居者可以亲手培育四季花卉,经营生机盎然的家庭菜园,或是打造灵动的水景艺术。
这种沉浸式的自然栖居,不仅实现了人与土地的深度对话,更让传统的院落情结在现代生活中焕发新生。
君安的院墅产品拥有三层空间,打造了纵向立体布局,让每一位家庭成员创造了高度独立、互不干扰的私密王国。
长辈房安顿于静谧底层,方便庭院活动;主人套房占据尊贵中层,享有最佳视野与私密;儿童房或客房置于上层,自成天地。生活的喧嚣与休憩的宁静,在垂直维度上得以完美区隔。
院墅通过匠心设计的挑空客厅、优雅的旋转楼梯等元素,在不同楼层之间形成了流畅的视线与动线联系。
挑空处倾泻而下的天光,楼梯间流转的光影,都在无声地诉说着家的整体性与情感的流动。
海信·君安的“三墅”,其意义不止于三款卓越的产品,它们代表了海信地产对城市土地价值的极致尊重。
君安以“三墅”为原点,致敬泉城济南的厚重文脉与勃勃生机,为这座城市的时代菁英,筑就匹配其格局与理想的“大宅门庭”。
近一两年,“好房子”成为房地产市场发展的方向。那么,好房子的标准究竟该如何定义?海信·君安以“墅级产品发布”为契机,为泉城展示了“好房子六大价值观”。