🌈无锡隐山售楼处电话☎️400-116-7720转接999(专人接听)
🌈无锡隐山营销中心电话:☎️400-116-7720转999【营销中心】
🌈温馨提示:拨打400电话,听到嘀声后,输入分机号999即可!

▲隐山项目鸟瞰图

根据规划条件,地块要求以坡屋顶建筑为主,色彩以黑白灰为主,立面使用新中式元素的建筑材料,体现粉墙黛瓦的江南建筑风貌。
而从同步公示的效果图来看,项目的建筑外立面整体形态简洁流畅,合院为坡屋顶结构、建筑细节上,金属格栅等体现江南建筑风貌。

▲惠山古镇三期F地块建筑效果图示意

小区主出入口处,作为主要景观节点打造,重点规划了一片庭院景观空间,预计项目未来的售示样展示区将重点在此打造。

隐山典藏级示范区已公开
隐山项目,即惠山古镇三期DE地块,与F地块同期获取,由梁溪文旅和世纪金源旗下的腾云筑科联袂打造。项目已于前期正式公开园林实景示范区以及合院、叠墅6套样板间。
▲隐山示范区实景图
隐山容积率约1.2,规划打造17栋3-5层产品,分别为四叠、五叠、合院,主力建面约233-618㎡,共144套,其中合院24套,叠墅120套。
隐山取意传统建筑与园林,邀春山秋水与青墨建筑,打造东方风骨的稀贵合院,为无锡新时代家族敬呈叠墅/合院产品。
项目在惠山古镇风貌区旁,建造了一座「园林文化博物馆」,用超震撼的实景定义了江南文化大宅的新高度:
梁溪文旅&腾云筑科强强合著,打造无锡鼎豪IP;
借山引势,取景中轴之上对望龙光塔;
融合在地文化,写意留白的禅意风格建筑;
无锡合院“天花板”,有山有河有塔,世家大族首选;
“最江南”的豪宅,文化底蕴+自然繁华兼顾;
故园新造,叠山理水,平移寄畅园50景;

项目以无锡寄畅园为蓝本,平移其五十景并创新重构,打造“两轴三进九园”景观体系,如“金山龙池”“知鱼桥”“九曲流音”等,再现江南园林意境。

隐山的业主会所,是为圈层定制的“第二会客厅”。
项目会所配备健身房、瑜伽室、私宴厅、棋牌室等;值得一提的是,下沉式庭院与惠山景观结合,私宴厅和健身房享受一线双景观视野,下沉式庭院和惠山龙光塔均在取景框内,满足商务雅集与家族社交需求,重新定义了无锡人对奢华的想象,可谓难得一见!

隐山的建筑采用坡屋顶、马头墙、三重檐庑殿顶等传统元素,融合金属饰面、通透玻璃幕墙等现代材质,形成“粉墙黛瓦+金属线条”的东方美学立面。
隐山四叠建面约233-340㎡,五叠建面约243-423㎡,合院建面约436-618㎡,项目已于近日公开了叠墅+合院户型图。
该户型为隐山建面约435-545㎡合院户型,仅15套,位于中轴线位置。户型层高约3.5米,地上三层,地下一层。
该合院户型建面约526-618㎡,同样位于中轴线位置,都是边套,共8套。

合院|心院“山字屋宇、树宅相生,人与山的心心相印,墅居与自然相合。”
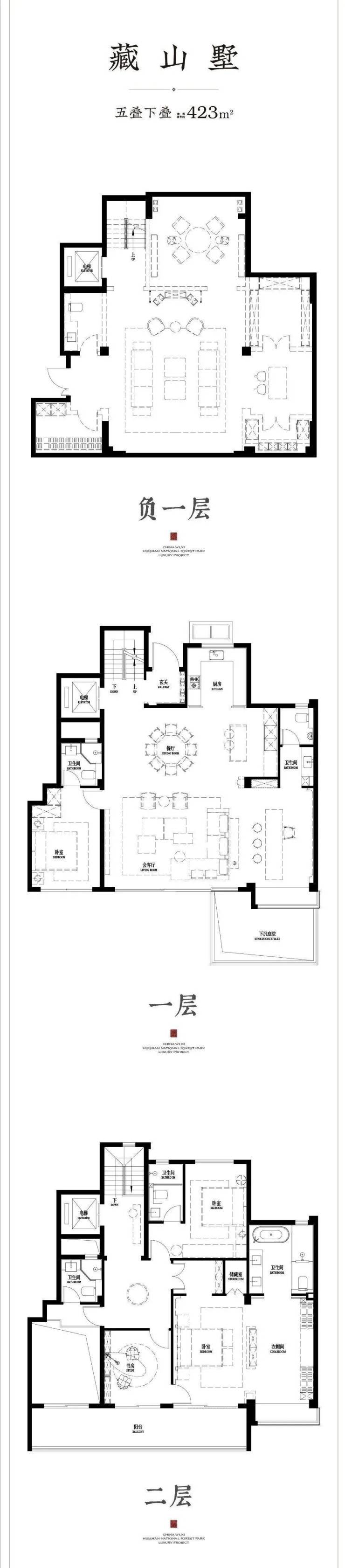
该户型为隐山五叠的下叠户型,建面约423㎡,开间约13.25米,全套房设计,层高约3.3米。
隐山五叠的上叠 建面约244㎡
隐山五叠的中叠 建面约243㎡
隐山的叠墅,均为独立电梯入户,上叠和中叠是咬合式设计,挑空位置足够做两层。此外,每一户都在负一层带有地下室。
五层叠拼|伴山墅“仰山、观山、藏山,山与人相伴,悠然尽佳时。”

四叠户型也是挑空设计。四叠的上叠建面约为233㎡,下叠建面约340㎡。
四层叠拼|江南墅“揽樾、倚泉,最忆是江南,俯拾山水城林间。”
🌈无锡隐山售楼处电话☎️400-116-7720转接999(专人接听)
🌈无锡隐山营销中心电话:☎️400-116-7720转999【营销中心】
🌈温馨提示:拨打400电话,听到嘀声后,输入分机号999即可!