徐州徐钢棠颂售楼处电话☎️400-116-7720转接777(专人接听)
徐州徐钢棠颂营销中心电话:☎️400-116-7720转777【营销中心】
🌈温馨提示:拨打400电话,听到嘀声后,输入分机号777即可!
徐钢棠颂
市中心苏堤路小学旁
标准的高品质住宅
正儿八经的市中心纯洋房
5-11层低密纯洋房社区
规划4栋楼,仅110户!
建面约143-200m²纯改善社区
就是开盘后一年就能交房!
该项目体量很小
但是做的很精致
外墙采用铝板幕墙+石材干挂组合
架空会所

一楼带院,顶楼复式
顶底楼层成了香饽饽
首层约3.6米层高,标准层高约3.1米
顶复挑高约6.2米
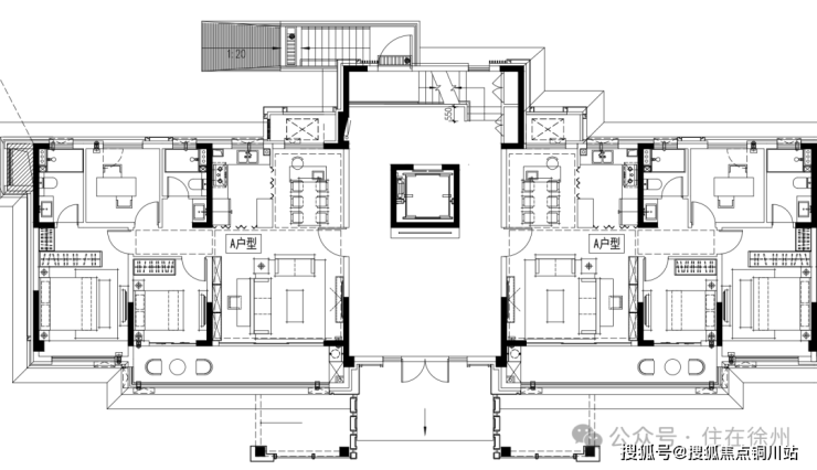
【143㎡四室两厅两卫】
【153㎡三室三厅两卫】
【200㎡三室三厅两卫】
124㎡三室户型(一楼非标仅4套)

徐州徐钢棠颂售楼处电话☎️400-116-7720转接777(专人接听)
徐州徐钢棠颂营销中心电话:☎️400-116-7720转777【营销中心】
🌈温馨提示:拨打400电话,听到嘀声后,输入分机号777即可!