武汉城建楚宝里售楼处电话:400-116-7720转666(已认证)
武汉城建楚宝里开发商电话:400-116-7720转666【售楼中心】
温馨提示售楼中心〢预约尊享1V1品鉴礼遇〢匠心钜制-恭迎品鉴〢
寸土寸金的核心腹地,土地的珍贵让开发只能向上要空间,高密度居住成为无奈的底色。
也正因如此,低密,才成了这里最奢侈、最不可复制的稀缺。
而如今,中山大道正对面、民众乐园隔壁,武汉城建·楚宝里竟然拿出了9-17层的低密四代小高层,独梯独户,高综合实用率。其中,10层建面约165㎡的爆款新品洋房,只有16套!这样的产品,整个汉口内环,根本没有第二个。
在曾经最高密的地方,做最稀缺的低密——这才是真正的奢侈。
武汉城建·楚宝里,即将加推的126-165㎡低密四代小高层,正是这种稀缺的存在,目前7号楼126-165㎡清水样板间已经开放,可以现场品鉴。
中山大道与前进四路交汇处,正对民众乐园,步行至江汉路地铁站约300米——这是武汉城建·楚宝里的坐标。
熟悉武汉的人都知道,这片土地意味着什么。
它是汉口历史风貌区的核心,是武汉保存最完整、最有烟火气的百年街区。民众乐园的红砖穹顶,水塔街的烟火气息,江汉路的百年商脉,巴公房子的历史厚重……这些不可复制的城市记忆,全都浓缩在项目周边15分钟的步行范围内。
这片土地,本身就是“限量版”。
而这样的土地,未来还有多少新房供应?
答案是:极少,甚至可能是零。
汉口历史风貌区的更新逻辑,不是大拆大建,而是织补式改造。能拿出来做全新住宅的地块,本就凤毛麟角。像楚宝里这样规模适中、产权清晰、可整体开发的土地,可以说是“绝版”的存在。
在正中山大道这样的寸土寸金之地,一座约23万方的里分综合体,不仅填补了区域多年的断供空白,更以“文商旅居一体”的复合业态,自带约5万方开放式商业街区,构筑起自成一派的价值高地。这样的项目,过去没有,未来更难有。
这是稀缺的第一层逻辑:土地本身,就是最高的门槛。
如果说土地是天赋,那么低密,就是这片土地上更大的稀缺。
项目住宅的容积率仅约2.64,由12栋小高层、高层组成,没有一栋超高层。即将加推的5号楼、7号楼,更是有产品低至9层、10层——这样的配置,放在武汉任何板块都算低密,放在汉口内环核心,更是独树一帜的稀缺。
在这个曾经高密度人居的片区,这样的低密,不是少见,而是绝无仅有。
低密带来的是生活方式的质变:同样的土地,更少的住户,电梯不用挤、园林不用抢;得房率更高,楼间距更开阔,采光通风更好。这些在内环核心,每一件都是奢侈品。
△园林实景图
更难得的是,这是低密+四代宅的双重叠加。市面上绝大多数四代宅,都是30层以上的高层,甚至超高层。而楚宝里的逻辑是:先立低密本底,再做产品创新。先敬畏土地,再谈生活。
这是稀缺的第二层逻辑:在曾经最密的地方,做最稀缺的低密。
内环的土地已是限量版,而在限量版的土地上,打造9-17层的四代小高层——这才是武汉城建·楚宝里稀缺价值的核心所在,也是它真正的护城河。
土地和低密是底色,而即将加推的5、7号楼,则是点睛之笔。
整体来看,7号楼占据社区南向C位,直面中轴景观面,楼下即是“童趣花园”,四季景致尽收眼底;毗邻社区北向主入口,下楼即达出行通道,实现“一步繁华一步繁花”的生活体验。楼栋底部打造“活力聚场”架空层,为年轻人打造专属社交空间。
△园林实景图
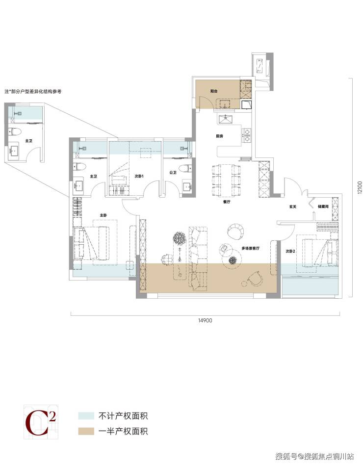
7号楼整栋毛坯交付,业主可定制化居住,共两个单元,其中一个单元为10层,全部是建面约165㎡的四房两厅三卫户型,一梯一户,仅16套。
为什么说这16套是内环绝版“孤品”?因为不仅“稀缺”,更是“唯一”。
在内环核心,要做10层洋房,意味着开发商要放弃至少30%的可售面积。在寸土寸金的内环,这样的选择,本身就是一种态度。
建面约165㎡四房两厅三卫
南向16.1米四开间大面宽——这个数字意味着什么?市面上很多200㎡的大平层,南向面宽也就15米出头。16.1米的IMAX级开间,让客厅、主卧、次卧、书房都能享受充足的阳光。站在客厅中央,窗外的园林景致像一幅展开的长卷,铺陈在眼前。
LDK一体化无界通厅——客厅、餐厅、厨房通透相连,南北尺度达到12.9米。这不是普通的家庭公区,而是一座可以承载家族聚会、高定宴请的恢弘场域。
双套房、3个卫生间设计——这是对家庭关系最深的理解。主卧套房自成体系,衣帽间、卫生间、卧室一气呵成。次卧套房则留给长辈,老人起夜不用穿过客厅去公卫,也不用担心打扰年轻人休息。
南北双阳台+花池全优化——南向阳台与次卧相连,早起推窗即是“童趣花园”的盎然绿意;北向阳台外还有花池可拓展,洗衣晾晒、储物收纳都有专属空间。加上独立电梯前室的私属领地,实际使用率远超常规。你以为买的是165㎡,住进去才发现,收获的是超越200㎡的尺度感。
如果说7号楼是“限量版”,那5号楼就是“超配版”——同样的小高层配置,低密9-17F层高,126-154㎡面积段,户户私梯入户,私享电梯前室,享受极致低密的生活质感。
5号楼位于小区内排,享受双组团园林景观环绕,南向、东向均无遮挡。底部架空层为儿童休闲活动空间“童梦奇缘”,下楼即可遛娃休闲,且为业主专属空间,无商业嘈杂纷扰。
△园林实景图
精装交付,配置极高:百朗新风、菲斯曼地暖、日立中央空调、华为全屋智能、3M净水,卫浴选用劳芬、汉斯格雅、唯宝等国际一线品牌。
建面约126-128㎡三房两厅两卫

这款户型,是内环改善的“入门即王炸”。
它的第一眼惊艳来自南北双阳台——南向阳台与次卧相连,保证客厅的纯粹;北向生活阳台进深约1.8米,洗衣晾晒、储物收纳从容安放。这是目前汉口内环同面积段仅有的南北双阳台配置。
独梯独户带来私属电梯前室,放个鞋柜、做个书架,轻松拓展功能空间。更懂生活的是玄关处的步入式储物间——进门的外套、次净衣、快递包裹、孩子的玩具,通通可以藏进去,客厅永远整整齐齐。
南向12米+大开间,三开间朝南,主卧带独立卫生间,超多拓展空间。126㎡的面积,住出140㎡的体验。
建面约146-150㎡四房两厅两卫
南向14.9米四开间大面宽,三个卧室全部朝南——这个设计对老人孩子极为友好。要知道,很多180㎡的房子,南向面宽也就15米左右,且很难做到三卧朝南。每天早晨,阳光慷慨地洒进每个房间,全家人都在温暖中醒来。
奢阔南北通透大通厅,LDK一体化格局,客厅、餐厅、厨房通透相连,形成家庭社交场。超大横厅配上南北双阳台,那种开阔感,是真正的豪宅气度。
主卧是大套间设计,L型衣帽间+独立卫浴,私密性与舒适度兼备。对于二孩家庭或三代同堂来说,这款户型是“一步到位”的答案。
建面约154㎡三房两厅两卫
这款270°光厅户型同样稀缺——154㎡的面积,做出了豪宅大平层才有的“转角厅自由”,且仅15套。
L型转角边厅是最大亮点。坐在客厅里,视线可以270°无遮挡地欣赏园林景观,IMAX级大尺度观景,那种视野的通透感和开阔感,是普通户型无法企及的。
主卧双向采光,东、南两扇开窗,阳光从两个方向洒入,景观视野极佳。清晨被阳光唤醒,傍晚看夕阳西下,主卧不再只是睡觉的地方,而是可以发呆、阅读、喝茶的私人领地。
三卧室全朝南,这是罕见的全南向卧室格局,让每个房间都充满阳光。奢配衣帽空间,主卧、次卧衣帽间均为L型双面设计,收纳能力远超普通衣柜。
对于追求居住本质的人来说,房间数量从来不是终点,空间尺度才是。而这款户型,就是为这样的改善人群量身定制。
在楚宝里谈地段和配套,其实无需过多罗列——这里本身就是武汉配套浓度最高的地方。
早上出门,是去民众乐园喝杯咖啡,还是去水塔街过早?前者是新潮,后者是老味道。民众乐园修缮后重新开放,红砖穹顶下多了很多有趣的店铺,买杯咖啡坐在台阶上,看人来人往。往前走几步就是水塔街,老字号的味道几十年不变。
周末想去逛街,是去“楚宝天地”还是去国广?项目自建的约5万方开放式商业街区“武汉城建·楚宝天地”,由华润万象生活共创,就在家门口,四季度就可以开街。国广、恒隆等高端商圈近在咫尺,M+商圈、江汉路无缝衔接。

△商业街效果图
孩子上学,家门口就有名校。周边一初系小学、武汉一初学苑、武汉市第一中学环绕。教育资源的含金量十足。
傍晚散步,是去江滩还是就在小区里?步行15分钟到汉口江滩,看长江日落,是武汉人独有的浪漫。但如果不想走远,小区里就有约1.6万方的海派园林——水岸花厅、风雨连廊、童趣花园,足够你散步半小时不重样。
而那些百年梧桐就长在门口的街道上,民众乐园、汉口总商会、巴公房子等历史建筑群环伺四周。这种与时间共生的自然与人文,不是任何新建板块能够复制的。
交通更无需多言。地铁2、6号线交汇,江汉路站步行可达;中山大道、京汉大道、解放大道环绕。
公区品质也已经实景呈现:豪华酒店标准的社区门庭、水景与风雨连廊结合的水岸花厅、约1200㎡全龄邻里中心、精装入户大堂……你看到的就是将来得到的。
这一切意味着什么?
意味着住在这里,别人奔赴的风景、游客打卡的目的地,不过是你窗外的寻常日子。