郑州美盛金水印二期售楼处电话:400-116-7720转接777【售楼中心】
郑州美盛金水印二期售楼处电话:400-116-7720转接777【售楼处电话】
郑州美盛金水印二期售楼处电话:400-116-7720转接777【官方认证】
美盛金水印(二期)
一,项目信息
【项目名称】美盛金水印(二期)
【占地面积】23029.14㎡
【建筑面积】约16.65万㎡
【产品规划】5栋住宅
【楼体层数】33F高层
【产品面积】145-165-188㎡
【层高】2.95米
【总户数】811户
【梯户比】2T2
【得房率】近90%
【容积率】5.49
【绿地率】25.1%
【物业费】3.68元/月/每平
【物业类型】住宅
【产权年限】70年
【装修状况】精装
【交房时间】2026年底
【价 格】2.25-2.6w
二,项目配套

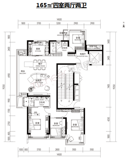
三,项目户型
115/145㎡户型:三开间朝南,南侧联通式阳台,布局合理。188㎡为创新明星户型:2T1户布局,户型方正,无浪费面积,综合得房率达到90%,客厅+三卧室朝南,厨房+餐厅+客厅一体化布局,270度环幕视野客厅+落地窗,北侧家政间,可做储藏,也可改造为卧室。





四,项目优势
现代公建化立面
大面积玻璃窗+低层石材+局部铝板+保温一体板组成,其中铝板玻璃幕占比99%,超高窗墙比,外观简洁美观。

配有下沉会所/庭院/风雨连廊
规避高容劣势,丰富社区内部空间;北向主大门为80多米IMAX巨幕景观门厅,以弧形布局形式设计门楼,侧墙以曲墙包裹;小区景观规划以两大私享轴线院落+三大画卷场景、八重生活连廊为内核,内部园林景观1.5万㎡,实现户均园林14㎡。
精装标准高
配套成熟,居住氛围纯粹
金水印的起步户型是整个金水北最大的,145m²—188 m²的主力户型即便是放在全是豪宅的北龙湖也能排在中游的水平。
五,总结
1,劣势
容积率
美盛的任何一个项目,容积率是一直受人诟病的,这也不能怪美盛,城改项目都是这样的情况,美盛已经在尽可能的做大面积减少居住户数来减少高容积率带来的影响
价格
媲美北龙湖北岸和高铁东站的价格,常有人会说,能买北龙湖北岸和东站,为什么会选这里?所以,选这里的原因,只有一个,喜欢金水区,地缘客户居多;
城改项目很难做,尤其是陈寨庙里这么大体量的城改,郑州本土开发商,正商,建业,永威,康桥,名门,大家都知道他们现在的情况,而美盛不仅按时交付,品质还说得过去,而如果引入国央企或者外来的大开发商,交付情况仍未可知,价格也不会卖的便宜,这些相关的教育配套,不见得有本土开发商做得好,可以参考万科翠湾老鸦陈城改,保利杓袁城改
郑州美盛金水印二期售楼处电话:400-116-7720转接777【售楼中心】
郑州美盛金水印二期售楼处电话:400-116-7720转接777【售楼处电话】
郑州美盛金水印二期售楼处电话:400-116-7720转接777【官方认证】