2025苏州五潨泾澄院售楼处电话→苏州五潨泾澄院售楼中心电话→2025苏州五潨泾澄院楼盘百科→楼盘网站→楼盘测评→售楼中心电话→24小时热线!

铜川楼市发布

2025-10-26 19:52:19

购房群

买房如何避坑,加入购房群,看看他们怎么说

立即进群

苏州五潨泾澄院售楼处电话:400-116-7720转接666

楼盘最新价格,户型图,地址,电话,样板房,周边配套,项目介绍

温馨提示:绝不收取任何费用,请提前1小时预约看房,以免带来不好的看房体验

五潨泾澄院凭借五泾交汇的得天独厚条件,精心规划了一个容积率仅为1.2的纯低密滨水别墅区,以城市低密封面之姿,匠筑仅10幢72席稀贵真叠墅藏品。

作为苏州主城难得一见的"有天有地"真墅,项目区别于市场伪叠墅产品,突破性采用全5层双叠设计。

上叠约50㎡星空露台,打造云端私享会客厅;下叠奢配约80㎡私家庭院,莳花弄草演绎东方院落美学。

▌从建筑到景观,都是区域标杆 ▌

在外立面设计上,项目巧妙融合了新中式与仿宋建筑风格,采用铝板与仿瓷石板作为主要建材,匠心独运地勾勒出当代苏式美学的独特韵味。

在景观营造方面,项目充分利用自然条件,遵循坊巷规划理念,以完整的中轴动线和多组团形式,精心打造了一幅“宛若天成”的园林山水画卷,营造出一种静谧而纯净的氛围。

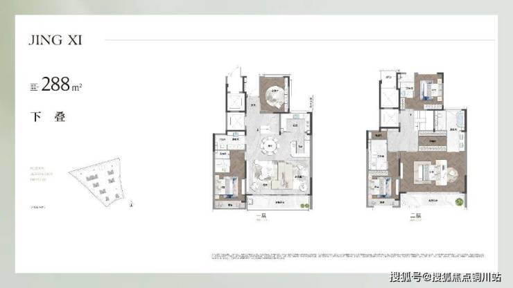
▌约265-354㎡叠墅,全部有天有地 ▌

五潨泾澄院深刻洞察高端改善群体的居住需求,不仅实现了宽敞的开间设计,更将居住舒适度提升至新的高度。

项目突破性采用上下叠入户动线全分离设计,独立豪华电梯直达每户,归家路径零干扰,创造叠墅产品罕见的独栋居住体验。

以建面约306㎡下叠户型为例:

一层约7.85米巨幕横厅采用LDKB一体化设计,L型转角阳台与私家庭院形成无界通透视野,中西双厨配置满足多元生活场景;

二楼主卧总统套房以约60㎡极致尺度突破想象,270°环幕阳台将社区园林景观化作私享背景墙。

苏州五潨泾澄院售楼处电话:400-116-7720转接666

楼盘最新价格,户型图,地址,电话,样板房,周边配套,项目介绍

温馨提示:绝不收取任何费用,请提前1小时预约看房,以免带来不好的看房体验

全部

相关资讯

报名成功
稍后会有专业的置业顾问联系您
返回楼盘

频道导航

返回首页

看房小程序

APP下载

电话拨通后,请您手动拨打分机号

确定拨打电话

电话号码:

分机号:(可能需要拨分机号)