苏州朗诗吴风和苑售楼处电话:400-116-7720转接666
楼盘最新价格,户型图,地址,电话,样板房,周边配套,项目介绍
温馨提示:绝不收取任何费用,请提前1小时预约看房,以免带来不好的看房体验
一、项目详细信息
项目名称:朗诗·吴风和苑
占地面积 :2.2万方
总户数:312户
容积率:2.2
车位配比:1:1.9
产品:14-18F小高层科技住宅,精装修
建面约123㎡、131㎡、147㎡-149㎡、168㎡、216㎡
使用性质:70年产权住宅
品牌介绍
朗诗地产,斜港置业联袂,着眼园区湖西进阶,于此合著全新迭代科技住宅样本“朗诗吴风和苑”。
朗诗地产
中国领先的绿色地产开发服务商,中国房地产百强企业。
朗诗控股旗下核心业务。秉持“人本、阳光、绿色”的企业价值观和“为人造房”的使命,依托朗诗控股平台成熟的绿建科技及优质绿建资源,朗诗地产业务覆盖全国主要一二线城市及重点经济区域,为用户打造“健康、舒适、节能、环保、智慧、人文”的优秀绿色住宅产品。
斜港置业
斜港置业,苏州实力品牌房企,19载营城经验,以前瞻视野精准洞察城市发展所向,奋力开拓区域版图,不断带来深受市场热捧的“现象级”产品,以一以贯之的高品质标准焕新城市人居想象。
区位介绍
一、园区高地 执领繁华
园区湖西,作为经济与人才高度汇聚的区域之一,从不缺时代聚焦的目光与热度。以东方之门为主的众多写字楼,担纲起园区经济脊梁,同时融合周边核心商圈繁盛与活力,姑苏主城的人文与生活资源,共同编织属于苏州的国际高度繁华。
二、产城共融 湖西进阶
作为园区核心要地,娄葑南最新控规获批打造约218万方理想生活实践区。围绕通园路站点(轨交7号线)打造高密度商业综合体、城市公园、星级酒店、商务办公、约2.8万方和约2.3万方邻里中心,园区西部市民中心等设施。教育资源方面,新增2座幼儿园,1座9年一贯制学校,预留1座高中,加上优质产业资源引入,带动周边住宅品质和土地价值提升。
三、时代园区 久候朗诗
朗诗·吴风和苑,落址园区罕有宜居核心板块,集合“改善居住+资产配置”双重红利,以高性价的方式,享受同类产品无法兑现的理想生活。蓝图描绘的璀璨未来,即刻拥享的繁华当下,是不可多得的湖西置业之选。
板块南部调整(研发)用地,引入高端产业领域和高知人才,板块产业集群全维升级
科创产业高地:板块南部调整(研发)用地,引入高端产业领域和高知人才,板块产业集群全维升级。
纵横路网 极速出行:地铁:举步轨交3号线,7号线双轨通达,直达城芯;交通:通园路,东南环立交,独墅湖第二隧道,常台高速等多维路网,高效出行
全龄学府 优教资源:东兴路幼儿园,文萃小学,娄葑小学,苏大附中,园区一中。新增2座幼儿园,1座9年一贯制学校,预留1座高中。
丰盛配套 举步即享:苏州工业园区西部文体中心;6个口袋公园,打造环境宜人公园体系。苏州中心+李公堤+双湖广场+郭巷邻里中心
三恒科技华宅,改善科技住品
森系住区 社交园林
社区景观以“林享森居”为灵感理念,以年轻态、进化力、沉浸感为标尺,打造“一环,一心,两轴,四庭”,构筑无界多龄社交空间,以沉浸式场景还原社区营运理念,构建对话思想、圈层共叙、精神放弛的世界。
一环:约300米畅游慢跑环道,唤醒生活元力
一心:森居生活荟,邻里温情交融于此上演
两轴:两条林荫景观轴,举目所见葱茏绿意
四庭:
林语森礼—归家景观轴层层递进,礼序之上勾勒尊崇
童梦童享—约500㎡分龄乐园,童梦在此恣意生长
沐林之境—林间运动乐活空间,健身健体,康养锻炼
悦氧之森—长者森氧康养空间,闲适安然欢度睦邻时光
极简现代
以极简流线勾勒立面线条,让玻璃的通透质感与灰、白现代高级色调的细腻表达相辅相成,简约而不单调。
科技范本 改善进阶
建面约123-216㎡精装科技华宅,于全球范围内甄选高品质精装品牌,同时围绕“恒温,恒湿,恒氧,低噪,适光”五大健康理念,以十大核心科技系统为辅,为居者打造最前沿的舒适智慧家。
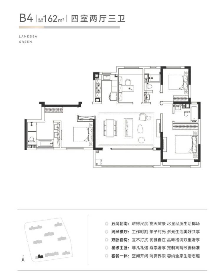
【户型赏析】
·朗诗·吴风和苑A户型

·朗诗·吴风和苑B户型
·朗诗·吴风和苑C户型

·朗诗·吴风和苑D户型
苏州朗诗吴风和苑售楼处电话:400-116-7720转接666
楼盘最新价格,户型图,地址,电话,样板房,周边配套,项目介绍
温馨提示:绝不收取任何费用,请提前1小时预约看房,以免带来不好的看房体验