【郑州高新区正弘序】售楼处电话【正弘序】欢迎您【正弘序】营销中心地址丨楼盘详情 | 开发商直售-24小时电话!

铜川楼市发布

2025-06-23 06:38:00

购房群

买房如何避坑,加入购房群,看看他们怎么说

立即进群

郑州正弘序售楼处电话热线:400-116-7720转999【官网】(来电尊享售楼部优惠活动)

如有问题欢迎来电咨询,来电即可享受买房优惠!预约来电尊享内部优惠,可预约案场内部销售人员,专业一对一热情服务,让您用专业眼光去买房。

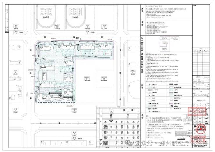
首先,正弘序在郑州是一个独树一帜的存在,郑州高新区虽与主城融合度欠佳,但其自身配套却丝毫不输主城区,所以晓强曾坚定的喊过:在高新区上班的买房不出高新区,不在高新区上班的千万别买高新区,正弘序,便诞生于此,而且占地78亩,容积率只有2.49的正弘序,并未随波逐流采用市场常见的高低配设计,小区内连小高层都不见踪影,这在当下楼市中也是别具一格。

正弘序绿地率35.1%,建筑密度低至19.65% 。社区规划为4排4列,共10栋楼。这10栋楼高度大体相近,除最南侧6号楼23层、第二排5号楼东单元20层、第三排2号楼25层外,其余7栋均为26层。正弘序虽未采用洋房或小高的高低配设计,但凭借足够低的建筑密度,巧妙地拉大了楼间距。北侧最小楼间距44米,1号楼前55米、10号楼前53米;第二排2号楼前55米、9号楼前50米;第三排8号楼前最小36米、3号楼前39米。最南边的7号楼和6号楼,前方毫无遮挡,视野极为开阔。结合周边环境来看,正弘序整体采光都没有大问题。不过,紧邻科学大道与正弘汇商场,噪音问题难以回避。或许也正因如此,正弘序才精心打造静音四代宅,试图化解这一困扰。

其次,晓强再唠唠正弘序的品质以及产品力解析,作为高新主城区首个真正意义上的四代住宅,正弘序以124136平住宅总建面的四代住宅规划,3902平装配式奖励面积+3677平可封闭阳台算半面积,最终实现了超93%的综合得房率,比传统住宅至少提升约15%。

在社区的公服配套体系中,正弘序共计配置了1350平的商业空间,和2105平的内部公服设施,涵盖了441㎡社区服务中心、319㎡便利店和548㎡物业用房,还有150平卫生服务站,331平养老设施,以及50平的儿童之家等全龄化需求。

在园林景观空间上,正弘序18353㎡的绿地总面积中,设置了5229㎡的集中绿地中央景观轴,还有377㎡首层架空泛会所,虽无下沉庭院与私密会所,但绿化率35%、1:1.59的机动车车位配比,和户均1.62的非机动车车位配比,再叠加中原地区首个静音四代宅,和套均155平的大尺度空间,正弘序也就仍可以算作是高新主城区的,高端纯改善标杆。如果你对正弘序更多的建标相关数据,和公服设施具体位置以及影响感兴趣的话,可以私信晓强了解更多详情!

最后晓强带大家解码他的位置优势和户型短板,以及准入门槛,正弘序预计6月开盘,目前已经启动前期的认筹工作,作为高新主城四代住宅的地段务实派,正弘序下楼就是8号线地铁和正弘汇大商场,繁华咫尺可达,位置无可挑剔,非要挑毛病的话,那就是太热闹的同时会带来一些噪音,以及书包配套不够顶尖;

户型上:正弘序也做到了套均155平的高新主城纯粹改善,一期主推的是149平起步到210平的,全四房清晰产品链,北侧四栋楼预计会有130平左右的三室户型,不过暂时不会推售。

目前在售的3个面积四个户型分别是,150套改善入门款的149㎡四叶草户型,两梯两户,13.3米的南向开间+奇偶错层小露台,分布在2号楼、5号楼的西单元、以及6号楼整栋。

然后是两个179㎡的双主卧三卫户型,同样的两梯两户,只不过一个是传统款的四开间朝南大宽厅户型,南向开间达到16.5米,总共115套房子分布在7号楼和5号楼的东单元117,以及2号楼的东单元西户。另一个是179的户型,是当下流行的270°大端厅+4代住宅立体大露台设计,不过只有5号楼的东边户,总共不到20套房子。

郑州正弘序售楼处电话热线:400-116-7720转999【官网】(来电尊享售楼部优惠活动)

全部

相关资讯

报名成功
稍后会有专业的置业顾问联系您
返回楼盘

频道导航

返回首页

看房小程序

APP下载

电话拨通后,请您手动拨打分机号

确定拨打电话

电话号码:

分机号:(可能需要拨分机号)