苏州招商序售楼处电话:400-116-7720转接999【已认证】【售楼地址】
温馨提示:网上售楼中心〢欢迎来电咨询〢安全通话隐藏真实号码〢
✦来电咨询最新售楼地址,专属置业顾问详解,请提前联系售楼销售进行预约登记
作为苏州首个“启序系”项目,招商序不仅是板块内首个低密纯洋房,更是带来了真正意义上的高端封面之作。项目不仅在业态上进行了更新,还在产品上进行了全面迭代,为居者带来前所未有的居住体验。
立体垂直双会所,苏州首见!
GENERAL TITLE
地下专属会所:以奢牌酒店为蓝本,精心打造第二厨房、健身房、茶室等多功能空间,满足圈层运动健身、休息洽谈、社交会客、读书漫想、品茗办公等多样化需求,实现观赏性和功能性的双重进化。
高端联动:第二厨房与黑珍珠餐厅联动,健身房与苏体官方合作,这些费时又费力的高端联动,正是招商蛇口传递美好生活的决心。
设计亮点
GENERAL TITLE
整个会所设计中,随处可见的大面积落地玻璃,实现不同空间的无界融合与互动,室内室外一体化,满眼绿意盎然,完全没有地下空间的闭塞感。在这里,每一刻都充满自然与舒适的氛围,为居者打造一个真正的高端生活空间。
招商序,以高端品质和创新设计,重新定义苏州的居住标准。

招商蛇口以其卓越的服务理念,在招商序项目中再次升级与延续了其备受赞誉的社区服务。
项目不仅配备了臻和系的自助洗车区、智能洗车系统和AED急救站等贴心设施,还通过精心设计的地上架空层,打造了功能多样化的泛会所,满足不同年龄段和需求的业主。
6#楼:打造了第二图书馆阅读空间,后期将与喜马拉雅合作,为居民提供丰富的阅读资源。此外,还配备了自习室,方便孩子们学习和写作业,以及小型会议室,满足业主的办公需求。
8#楼:设计为儿童探索乐园,充分考虑了不同年龄段儿童的游玩需求。招商序细心区分了小童区与中童区,小童区参考奈尔宝乐园打造下沉式空间,包含积木区、攀爬滑滑梯区、泡泡球区等;中童区则设有阅读绘本区,尊重儿童与空间的互动关系,为孩子们提供了一个安全、有趣且富有教育意义的游乐环境。
招商序不仅在硬件设施上追求卓越,更在软件服务上用心雕琢,致力于为每一位业主打造一个有温度、有情感的社区。

建筑立面采用浅色铝板、浅色一体板、灰色一体板、香槟金色金属线条以及浅色石材等多种材质,精心搭配,营造出优雅而现代的视觉效果。
全生命周期户型,满足改善各阶段需求!
GENERAL TITLE
招商序精心打造建面约115㎡、139A㎡、139B㎡、180㎡的全系列户型,涵盖从三代同堂到家庭平权的多种居住需求。首批开盘,四大户型均有房源可供选择。
园区稀缺小户型:115㎡户型,为置业者提供轻松触摸湖西灵魂的机会,性价比超高。
终极改善大平层:180㎡户型,为层峯人群量身定制,一步到位的奢华生活体验。
空间设计亮点:
大开间大阳台:户户配备,采光与视野极佳。
LDKB一体化超级公区:打破传统格局,提升空间利用率。
行政套房:奢阔设计,彰显主人尊贵身份。
L型转角飘窗:巧妙设计,将得房率推高至85%以上,性价比与实用性兼具。
招商序,以全生命周期户型设计,满足不同家庭的居住需求,为每一位居者打造理想中的家。
115平户型 三房两厅两卫(东边户)
REMEMBER
该户型总面宽约11.2米,LDKB一体化设计,开间达4.6米,空间开阔。南向双套房设计,全屋配备飘窗,采光与视野极佳。主卧更是配备了转角L型观景飘窗,开间约3.5米,尽享奢华与舒适。
约139平户型,4房2厅2卫(西边户)
REMEMBER
该户型总面宽约13.95米,3开间朝南,布局合理,采光充足。客厅与餐厅采用大宽厅设计,开间达7.2米,空间感十足。主卧套房设计,开间约3.7米,配备全景飘窗,视野开阔。其余卧室开间均在2.27-3.05米之间,空间宽敞舒适,满足不同居住需求。
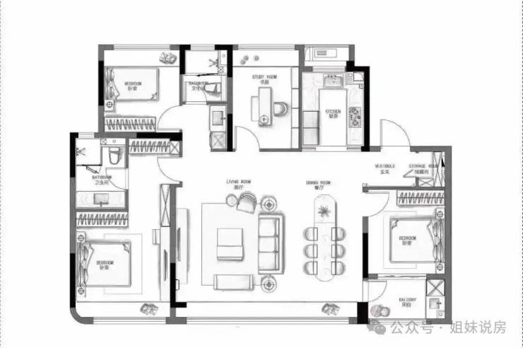
约139平户型,4房2厅2卫
REMEMBER
户型亮点
GENERAL TITLE
该户型拥有南向四开间,其中三个卧室均朝南,采光与通风极佳。特别值得一提的是,这一户型的阳台有两种设计选择:
双联大阳台:超大空间,满足多种生活需求,无论是休闲还是晾晒,都能轻松应对。
单阳台:简洁实用,空间利用高效。
主卧采用套房设计,配备独立卫生间,私密性与便利性兼具。L型飘窗设计,进一步提升了视野与采光效果,让居住体验更加舒适与奢华。
约180平户型,4房2厅3卫
REMEMBER
苏州招商序售楼处电话:400-116-7720转接999【已认证】【售楼地址】