天津保利珺璟和煦售楼处电话:400-116-7720转999
案场采用预约制,看房请务必提前来电预约登记。为确保您能享受专属服务,不错过理想房源,请一定致电与销售确认到访时间,只有预约客户方可进入销售现场。
感谢您的理解与支持,期待您的来电!
一、基础信息
建筑面积: 约6.76万方
产品组成:8栋,8-10层洋房
总住户数:388户
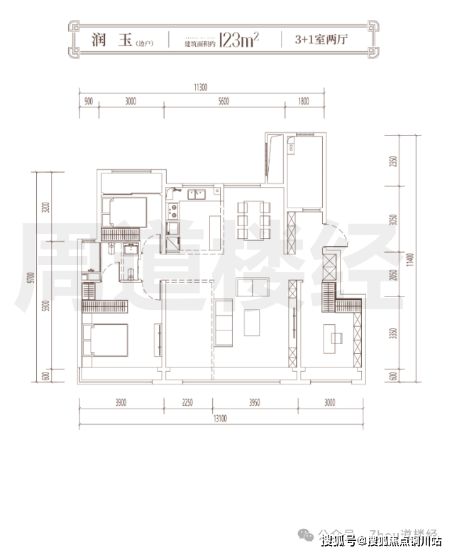
首开户型:92/106/123/139㎡
装修标准:毛坯
产品业态: 70年住宅产品
绿化率: 40%
容积率: 1.55
车位配比:车位配比1:1.4
物业公司: 保利物业
二、户型鉴赏




三、周边配套

1、交通配套—— 一横三纵双高速双地铁
➺一横:外环南路
➺三纵:卫津南路、友谊南路、解放南路
➺双高速:荣乌高速(荣成至乌海)、津港高速
➺双地铁:地铁6号线、7号线(在建中)
2、商业配套 —— 五重城市级商圈
➺梅江永旺&印象城(900米,步行可达)、山姆(1.7公里)、万达广场(步行1.4公里)、环宇城(步行2公里)、龙湖天街(5.5公里)
3、自然资源 —— 四公园
➺梅江公园(水域面积占比超30%,绿化覆盖率超 45%)、新梅江公园、卫津河公园、太湖路公园
4、医疗配套 —— 三医院
➺天津市第四医院、海河医院、中医一附院
➺铭华门诊医院,步行10分钟可达
➺天津市河西区中医医院(2.1公里)
5、教育配套—— 2所小学、1所中学
➺育英小学、梅江天津小学、大寺中学
四、开发商介绍



五、效果图


天津保利珺璟和煦售楼处电话:400-116-7720转999