该项目体量很小
但是做的很精致
外墙采用铝板幕墙+石材干挂组合
架空会所

一楼带院,顶楼复式
顶底楼层成了香饽饽
首层约3.6米层高,标准层高约3.1米
顶复挑高约6.2米
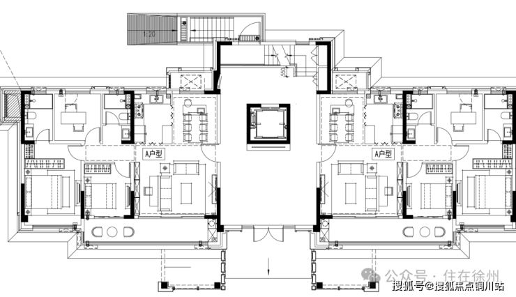
【143㎡四室两厅两卫】
【153㎡三室三厅两卫】
【200㎡三室三厅两卫】
124㎡三室户型(一楼非标仅4套)

该项目体量很小
但是做的很精致
外墙采用铝板幕墙+石材干挂组合
架空会所

一楼带院,顶楼复式
顶底楼层成了香饽饽
首层约3.6米层高,标准层高约3.1米
顶复挑高约6.2米
【143㎡四室两厅两卫】
【153㎡三室三厅两卫】
【200㎡三室三厅两卫】
124㎡三室户型(一楼非标仅4套)
