无锡隐山售楼处电话:400-116-7720转接666
温馨提示:网上售楼中心〢欢迎来电咨询〢安全通话隐藏真实号码〢
✦来电咨询最新售楼地址,专属置业顾问详解,请提前联系售楼销售进行预约登记
|占地面积:约3.4万
|建筑面积:约3.8万方
|总户数:144户
|容积率:约1.2
价格:待定
户型面积:233-340-423-435-618平㎡
|产品类型:五层叠墅、四层叠墅、合院
|开发公司:梁溪文旅×世纪金源&腾云筑科
璀璨资源 传统都心底色
>>都会繁华|恒隆广场、八佰伴、三阳百盛、崇安寺生活街区
>>畅达交通|西内环快速线、运河东路、盛岸路、地铁4号线
>>自然禀赋|惠山国家森林公园、锡惠公园、运河艺术公园、京杭运河
>>名校环绕|无锡市惠山小学、无锡外国语学校(通惠西路校区)、无锡市第一中学“
无锡文化豪宅新标杆:它超越常规,打造“山水+文化+城芯+宅院”的四维共生,山水为骨、文化为魂、城芯为脉、宅院为形;
典藏级江南园林:故园新造,平移寄畅50景,复刻但不复制,打造三进九园诗意示范区,借山、引水、取景龙光塔,让无锡望族重温秦氏家族在寄畅园的生活场景;
隐于闹市,山居静谧。『隐山』项目的问世,汲取千年文化底蕴,传承世族大家风范,秉持“显山隐水”理念,将江南诗意与现代奢适融合,成为古镇肌理中的文化人居典范。
(实景图)
其位于惠山古镇风貌区,容积率约1.2,低密纯墅区含24套合院、120套叠墅,为居者开启“千年文脉为邻,现代奢居为伴”的生活新篇。

以“两公里繁华生活圈”为基底,『隐山』将古今风华与现代都市活力无缝衔接。其占据无锡主城核芯区位,既能畅享恒隆广场、八佰伴等高端商圈的前沿消费力,又毗邻惠山古镇与映月里的沉浸式文化体验,独特高阶烟火气与人文磁场于此交融。
全维立体交通网络,内环快速线、地铁4号线等多维动脉纵横,高效通勤轻松实现;无锡二院等三甲医疗资源,为健康生活保驾护航……
(图源:IPWUXI)
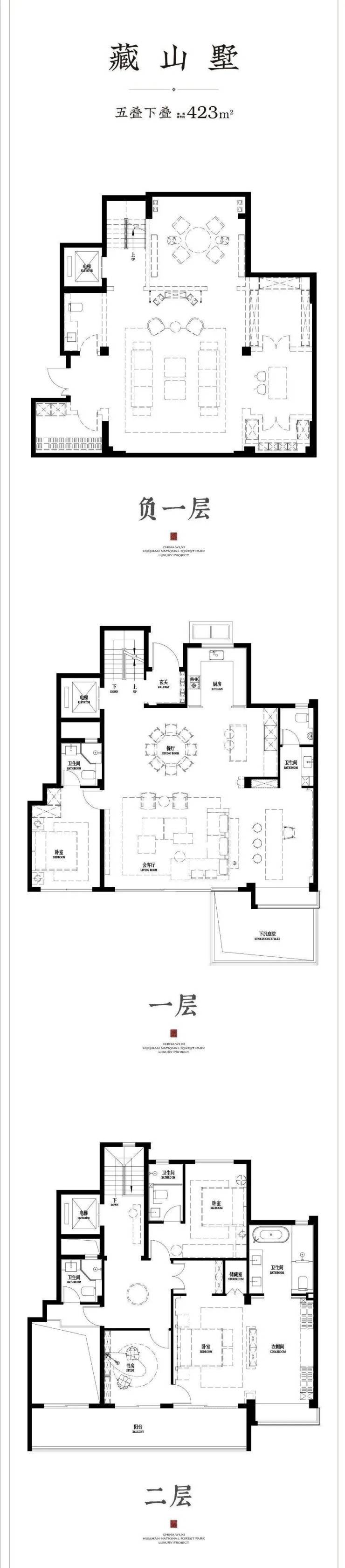
隐山四叠建面约233-340㎡,五叠建面约243-423㎡,合院建面约436-618㎡,项目已于近日公开了叠墅+合院户型图。
合院|心院“山字屋宇、树宅相生,人与山的心心相印,墅居与自然相合。”
该户型为隐山五叠的下叠户型,建面约423㎡,开间约13.25米,全套房设计,层高约3.3米。
隐山五叠的上叠 建面约244㎡
无锡隐山售楼处电话:400-116-7720转接666
温馨提示:网上售楼中心〢欢迎来电咨询〢安全通话隐藏真实号码〢
✦来电咨询最新售楼地址,专属置业顾问详解,请提前联系售楼销售进行预约登记