武汉城投·金沙樾(售楼处电话)首页网站|城投·金沙樾售楼处欢迎您-楼盘详情

铜川楼市发布

2024-09-13 13:39:28

购房群

买房如何避坑,加入购房群,看看他们怎么说

立即进群

武汉城投·金沙樾

售楼处热线:400-116-7720转666

武昌内环旁·超配轻改善·准四代宅

约89-124㎡「金沙系」樾级之作

【项目基本信息】

项目名称:城投·金沙樾

绿 地 率:≥30%

容 积 率:3.11

装修情况:毛坯交付

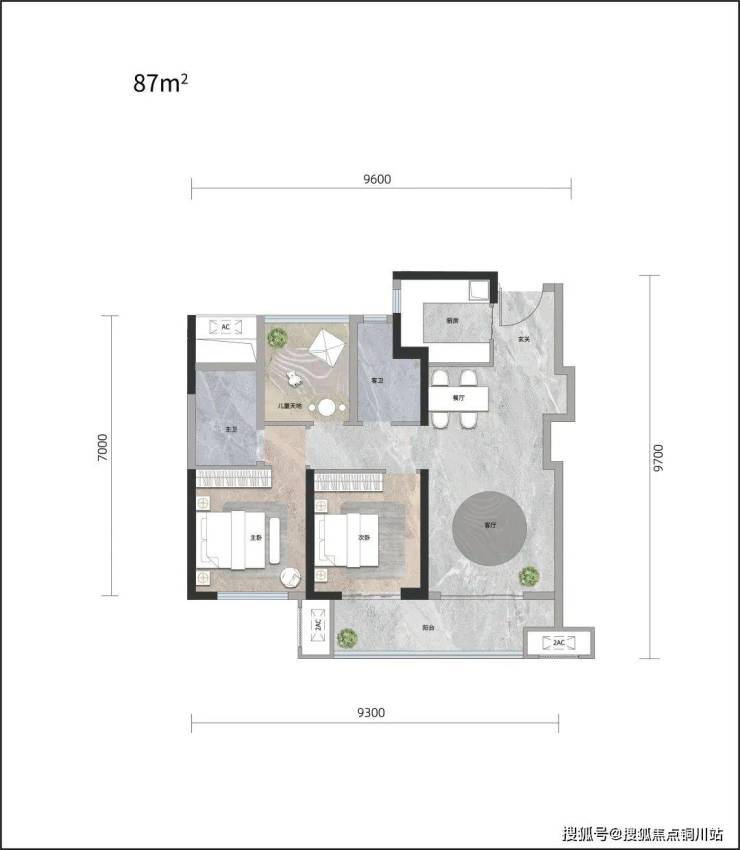
主力户型:89㎡-124㎡

项目地址:内环徐东·沙湖大道与杨园南路交汇处

一、【品牌之樾】

🌟大国工匠 城市建设领导者

◆27载深耕武汉本土 擎起城市建设使命

◆累计实施城建项目1085项 擎动城市发展◆完成城建项目投资3669亿元 领筑美好生活

◆开发地产项目近80个(期)

◆4大产业板块 构筑城市建设、城市公共服务、城市资源开发、产业资本业务布局

◆下属多家强综合实力地产开发企业 大桥集团等

💎城市再设计3.0 超配轻改善作品

◆大桥集团,武汉城投建设开发主力军,洞悉城市发展战略,构建可持续的新型城市社区。

◆城投「金沙系」迭代产品系,城市再设计3.0作品,全维樾级品质,匠筑人居标杆。

二、【地段之樾】

◆内环旁徐东芯,西起武昌滨江,东至东湖生态区,北至二环线,南抵沙湖大桥楚汉路。

◆接轨武昌滨江国际商务封面,同步中北路沙湖高端城市界面。

◆交通、商业、生态全维配套荟萃,尽享内环高浓度资源醇熟生活圈。

武汉城投·金沙樾售楼处热线:400-116-7720转666

🚄【立体交通】

◆主轴出行

沙湖大道——串联沙湖公园、楚河汉街

武汉大道——连接长江二桥,速达武汉天地商圈

◆横贯江湖

长江公铁隧道——快速跨江,直达汉口江滩东湖隧道——横贯东湖风景区,速达光谷铁机路隧道(在建)——跨江连通二七路

◆三轨汇聚

4号线——城市核心线路,快速抵达武昌站、武汉站

8号线——政经人文专线,链接城市地标名片12号线(在建)——武汉首条环线地铁,链接全城中心

🌇【璀璨商业】

◆步行可达群星城、中商世界里(原销品茂)、新世界广场

◆驱车速达京东MALL、武昌万象城、武汉SKP、楚河汉街等大型城市商业名片

武汉城投·金沙樾售楼处热线:400-116-7720转666

◆华润万象汇、龙湖滨江天街(在建)等超级商业即将呈现

🌊【湖园生态】

东湖绿道、沙湖公园生态湖园环绕,运动休闲目的地,绿意鲜氧举步即达。

🏥【医疗护航】

梨园医院、武汉市第七医院新院区(在建)、武昌医院等精端医疗资源,质享无忧健康守护。

武汉城投·金沙樾售楼处热线:400-116-7720转666

三、【产品之樾】

🏙【规划樾级】全新社区形态 焕新城市界面

◆8字型豪宅社区形态,双围合式布局,最大化采光得景率与公共共享空间。

◆建筑布局高低错落,形成变化起伏的城市天际线,焕新城市界面。

💫【美学樾级】现代简约立面 艺术雅宅气质

◆简约挺拔的外立面线条,时尚高端,层次丰富,极具韵律感。

◆综合运用LOW-E玻璃与香槟金金属,配置大面积落地窗,辉映城市封面。

🍀【景观樾级】内外双园簇拥 无界生态社区

内拥约1.2万方中庭园林,外接约2.28万方城市公园,市中心罕有。内外整体规划双轴两环三园境,营造繁华静谧栖息地。

◆艺术双轴 归家礼序

生态互动商街、下沉式酒店社区大堂、立体山水园景,给生活至高礼遇。

◆无界漫游 森活环道

约400m公园乐跑环线、约622m住宅漫跑环线,楼下的自然运动场。

武汉城投·金沙樾售楼处热线:400-116-7720转666

◆生态花境 住假生活

静享花园、生态花园、活力花园,三大主题花园,共聚全龄乐活领地。

💎【空间樾级】全维迭代产品 超配准四代宅

建面约89-124㎡新一代超配轻改善之作,私梯入户,升级超大面宽,南北双阳台配置。超90%得房率,最大化空间利用。

✨【户型鉴赏】✨

武汉城投·金沙樾售楼处热线:400-116-7720转666

全部

相关资讯

报名成功
稍后会有专业的置业顾问联系您
返回楼盘

频道导航

返回首页

看房小程序

APP下载

电话拨通后,请您手动拨打分机号

确定拨打电话

电话号码:

分机号:(可能需要拨分机号)