武汉王家湾中央生活区湾玺
武汉王家湾中央生活区湾玺售楼处电话:400-116-7720转888【中介勿扰】
武汉王家湾中央生活区湾玺售楼中心电话:400-116-7720接通后输入888(已认证)
匠心钜制-恭迎品鉴-欢迎来电咨询一对一讲解-请提前联系售楼处销售进行登记
王家湾中央生活区--湾玺

项目资料
在售户型:28#楼110m2-130m2
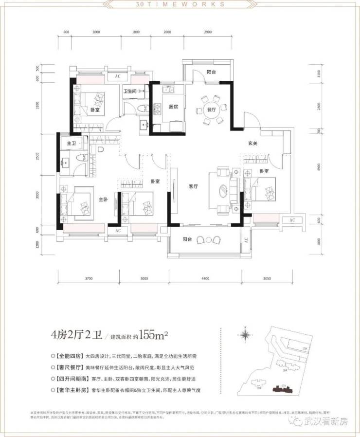
27#楼155m2
在售板块:A2-2地块
均价:19000元/㎡
绿化率:35%
梯户数:27#楼2T2H,,28#楼2T4H
总层高:27#楼25F,28#楼31F
公摊:27#楼27%,28#楼23%
容积率:3.16
层高:2.9m
总户数:389户
车位配比:1:1.39
物业:武汉丽岛物业(2.8元/平)
装修状况:毛坯
交房时间:2024年3月
项目地址:汉阳大道与龙阳东湖交汇处
项目卖点
整个项目东起龙阳大道,南眺龙阳湖公园,西至玉龙路,北临汉阳大道。65万方高端住宅分为两大地块:A地块和D地块,由市政规划道路“杨家湾路”分为上城和下城。目前A地块A1/A2和D地块已经全部交房(约4000户),社区内部的园林景观和建筑质量以及物业服务口碑都是非常不错的,目前即将售的A2-2地块占地2.6万方,总建面是12.6万方,绿化率35%。其中住宅5万方。
推出的28栋,也是整个项目中离地铁最近的一栋楼。这栋楼总高是100米,总层数31层。2全部都是改善性的户型。目前整个汉阳核心地区,除了我们之外,基本都是做的45层左右的超高层,所以后期居住舒适度这一块会非常好。
小区内部还设置有环形跑道,业主空闲时间下楼便可锻炼健身;同时项目还考虑到了儿童和家长的活动、休憩空间,在社区内部专门设置有儿童游乐区,健身休闲区,家长可陪同儿童一起在此玩耍。
户型图
110㎡:
【28#中间户】
首付三成,总价209万起
户型:三房两厅两卫
梯户比:2梯4户
户型图
130㎡:
【28#边户】
首付三成,总价247万起
户型:三房两厅两卫
梯户比:2梯4户
户型图
155㎡:
【27#所有户型】
首付三成,总价295万起
户型:四房两厅两卫
梯户比:2梯2户
历经八载锤炼,不断升级居住空间
湾玺更以匠心精神营造阔居大境。作为汉阳难得的纯毛坯佳作,建面约110-155㎡升级大宅,不仅赋予客户更多自主权,更带来升级优居体验。人性化户型设计,高得房率奢阔四房、高性价比幸福三房,作为汉阳难得的纯毛坯佳作,建面约110-155㎡升级大宅,每一席都以更为纯粹的尺度空间,为居者缔造静享私密的理想生活场景。方正大家,奢尺面宽,高空间利用率,采光通透,为品质生活而造的豁然佳境,奢阔府邸,献给懂得生活的你!
1、
配套全面
教育:项目周边的学校选择较多,汉阳片区比较出名的玫瑰园小学,二桥中学,以及其他的德才小学、楚才小学、玉龙小学、德才中学、七里中学等,小区自有北大附属实验学校幼儿园已正式开园
2、
商圈配套
目前王家湾商圈整体商业体量高达120万方,是目前汉阳最成熟的商圈。王家湾中央生活区·湾玺,踞二环正心,择址王家湾商圈门户之地,享纵横路网,拥宜居沃土。家乐福、沃尔玛、摩尔城、海天欢乐购、汉商21世纪购物中心等6大商业体拱卫左右,醇熟商圈围聚,城脉/商脉/文脉,都市资源充沛尽揽。且自带内部商圈:7号街区网红美食一条街(袁老四火锅、肥肥虾庄、乔叶龙、胖记烤肉等),最重要的一点,出门步行7分钟,就可以享受到这么多的配套。
3、
交通
整个项目东起龙阳大道,南眺龙阳湖公园,西至玉龙路,北临汉阳大道。王家湾中央生活区占据大汉阳的核心地段,是武汉十大商圈之一王家湾商圈内最大的城市综合体,项目位于汉阳大道及二环线黄金十字轴线之上,接驳二环高架,三纵三横立体路网,迅达三镇。步行500米内即可达3/4号线双地铁“王家湾站”“玉龙路站”,同时30多条公交线路,畅达武汉三镇,出入随心。3号线是武汉地铁换乘之王,途经市民之家、王家墩CBD、王家湾商圈、菱角湖万达等,并且与其他9条地铁线路轻松换乘;4号线途经楚河汉界、中南商圈、钟家村商圈、徐东商圈、武汉火车站、武昌火车站等。
4、
医疗
项目周边有五医院、汉阳医院等,而且从项目出发十五分钟左右就可以到同济、协和这两所三甲医院,为您和您的家人健康保驾护航。
5、
生态
坐享城央不易,于城央拥有繁华繁花双享的境遇更难得。二环正心之上,三园盛景在握。湾玺外享龙阳湖公园及墨水湖公园双园风景,内享醇正法兰西园林风情。三园旖旎风光,繁花盛景坐揽四季芳华。
武汉王家湾中央生活区湾玺
武汉王家湾中央生活区湾玺售楼处电话:400-116-7720转888【中介勿扰】
武汉王家湾中央生活区湾玺售楼中心电话:400-116-7720接通后输入888(已认证)
匠心钜制-恭迎品鉴-欢迎来电咨询一对一讲解-请提前联系售楼处销售进行登记