宜昌城发首座
宜昌城发首座售楼处电话:400-116-7720转888【中介勿扰】
宜昌城发首座售楼中心电话:400-116-7720接通后输入888(已认证)
20世纪30年代的一天,一位德国费尔特的小镇少年去找他的好友基恩,但与前几次一样,基恩的父母告诉他,基恩不在家。
与很多中国家庭教育观一样,彼时的基恩不是不在家,只是他的父母不想自己的孩子天天与一位“坐在教室后排的差生”一起玩耍。
而这位中学毕业成绩几乎都是C的学渣,就是日后的哈佛大学博士、诺贝尔和平奖获得者——
亨利·基辛格。
基辛格命运的转折,来自第二次世界大战。作为犹太人为了躲避希特勒的屠杀,基辛格一家逃到美国纽约。
在新的教育环境下,基辛格绽放出惊人的光芒,全科成绩都变成了A,最终被哈佛大学录取,迈向了成为美国历史上最伟大国务卿的人生道路。
01.
基辛格从学渣到学霸的转变,必然有很多深层次方面的原因,其中,教育环境的改变,功不可没。
在当前的社会环境下也是一样,如果有什么比财富更重要,那大概只有一件事——教育。
无产者们希望通过教育实现阶层跃升,拼搏在时代前排的富裕中产们也希望自己的孩子能站在塔尖,而塔尖的精英们最害怕的是孩子从现在的阶层滑落…
百年大计,教育为本。全民的刚性需求,造就了房地产行业最大的内驱力——学区。
今年3月,宜昌教育领域迎来大变革,五中与四中合体,组建宜昌市第五中学教联体。五中教联体的成立,让原先的“市实小+四中”,直接跃升到“市实小+五中教联体”,成为宜昌名副其实的最强学区。
宜昌市实验小学和第五中学的“双王组合”,让区域内原本紧俏的房源变得更加抢手。楼市疲软、需求不振、二手房难卖,在顶级学区面前,全都变成伪命题。
也正是预见了顶级学区带来的强大消费驱动,2021年底,宜昌城发地产以5459元/平的楼面价拿下位于西陵一路和珍珠路交汇处的P22号地块,城发地产又一城市封面作品——城发·首座问世。
城发·首座的地理位置,正好在宜昌公立“双王”市实小、五中,以及省级示范幼儿园——宜昌市城建幼儿园的中心。从幼儿园到小学到中学,城发·首座距离三大公立名校,都只有约200米的距离。目送孩子上名校,是城发·首座给业主,最温情、最珍贵的承诺。


02.
作为身处绝对城市中心的项目,顶级学区,只是城发·首座高度聚拢的优质社会资源中的一环。
毗邻夷陵广场、紧邻儿童公园、与CBD商务中心一路之隔、国贸商圈/解放路商圈步行可达、一医院/二医院近而不邻…无论是哪种配套需求,在城发·首座都能得到高标准满足。
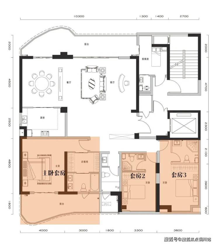
顶尖的外部配套,自然要匹配顶级的内部产品。城发·首座在做户型设计时,充分考虑塔尖人群的居住需求,打造了仅94席的建面约212-465㎡的城芯大平层户型。
城发·首座约240.99/243.37㎡户型
三套房朝南、南北双弧面大阳台、LDKB一体化设计、10.3米超级大横厅、专属家政动线..城发·首座的大平层户型,讲究的是一个纯粹,纯粹的奢阔、纯粹的尊贵、纯粹的舒适。
不过,我们今天要重点讲的,不是城发·首座的大平层户型,毕竟他已是王牌,受众已精准到城市塔尖的那批人。我们今天要看的,是TA可能没有特定受众群体的产品——
空中错叠。
空中错叠,从字面上理解,就是高层复式。但城发·首座的空中错叠又不是常规意义中的复式豪宅,因为TA的户型都比较小,面积段只有75-108㎡。
这种小面积段做复式住宅,确实需要很大的勇气,在常规的地产操盘思路中,在寸土寸金的城市中心,就应该做大平层,做顶豪。通过“顶豪”,来吸引“顶豪”。
城发·首座之所以在如此核心的地段设计小面积的错叠产品,是看中的这种错叠产品的“可生长性”。
城发·首座约107.13/107.67㎡户型
在城发·首座的首批认购业主中,有这么一位。他已经有了一套大房子,买首座错叠的原因,是为了学区。他的规划是:挂靠学区的同时,“上住下办公”的错叠可以出租给创业的年轻人,等子女大了,自己可以住过来,楼下的儿童公园、旁边的医院,都是“天伦之乐”的天赋基因。

空中错叠效果,网图示意,仅供参考
城发·首座空中错叠顶尖的外部配套和高达3.3米层高所带来的百变空间,让房子的功能性变得“可生长“。在人生的不同阶段,他的功能可以不一样。这种多功能性,又能让资产的价值得到最大化的发挥,让花出去的每一分钱,都能听到回响,这便是富人之所以成为富人的逻辑。
03.
当然,作为城市收藏级作品,城发·首座所拥有的,不止是顶级的外部配套和创新的户型产品设计。
公建化外立面、城市中心超级大平层、双入户大堂、两梯两户、专户直达…在宜昌,有两三个这样的配置,基本就可以算是豪宅,但在城发·首座,所有的这些都只是标配。
就以公建化外立面来说,本身在宜昌,真正公建化外立面的项目就屈指可数。而城发·首座,不仅设计的是“大面积玻璃幕墙+铝板”的全公建化外立面,而且打破了宜昌楼市现有的横平竖直的立面设计,带来了更具辨识度的流线型建筑艺术立面。

城发·首座效果图
是的,公建化外立面在别的项目是终点,而在城发·首座,公建化外立面只是起点,他们在公建化外立面的基础上赋予了艺术,通过流动的线条,来打造城市级的美学地标。
城发·首座流线型建筑艺术立面,对于业主而言,带来的除了极致的尊崇感,还有“180°IMAX环幕视野”。远处的长江,近处的夷陵广场,楼下的儿童公园,在约10米的环幕观景阳台上,这些城市的繁华和壮阔,都被尽收眼底。

城发·首座效果图
当然,城发·首座的艺术性,不止彰显在“面子”上,更渗透进了项目的“基因”里。
城发·首座深入洞察塔尖人群的生活诉求,创造性地打造了“空中梦幻花园”、“归家现代艺术馆”、“空中星幕泳池“三大城市级别的艺术空间,通过对公共空间的艺术赋能,来拓展生活的广度与深度。
我们通常所理解的空中花园,是自家的阳台或露台,而城发·首座的空中梦幻花园则是专属业主的空中公共社交空间。我们常说,千金买房,万金择邻。对于只有94席大平层和57套错叠的城发·首座而言,邻居的意义就更显非凡。因此,城发·首座精心打造了这么一处梦幻空间,来促进邻里之间精神层面的“同频共振”。

城发·首座效果图
当下的豪宅,对入户大堂的重视程度越来越高。但大部分的项目,在入户大堂的打造上都陷入了一个误区:他们只重视入户大堂所带来的仪式感,而忽视了其功能性。所以,我们看到现在的入户大堂越来越富丽堂皇,但哪怕花再多钱,也都只是一个归家通道。这种高投入与低效用的现状,城发看在眼里,因此城发·首座将入户大堂和艺术馆融合到一起,打造了宜昌独一无二的归家现代艺术馆,通过极富美学造诣的空间设计和丰富的功能场景,来提升入户大堂的艺术美感和实用性。
城发·首座归家现代艺术馆
空中星幕泳池是城发·首座带来的第三大城市级艺术空间,在艺术级的空中泳池里,让身体和精神得到全方位的放松。
除了三大城市级艺术空间,城发·首座还配置了黑钻健身中心,律动健身室、阳光瑜伽室、动感单车房,让业主下楼就能感受自律带来的满足感。
04.
城发·首座的“前世”是宜昌第一栋高达7层的楼房,老一辈宜昌人习惯称之为“七层楼”,这也是“首座”名字的由来。宜昌市城建档案馆第一任馆长韩庆云曾介绍:
那个年代,如果说自己住在“七层楼”,是一件很荣耀的事。
宜昌城发首座
宜昌城发首座售楼处电话:400-116-7720转888【中介勿扰】
宜昌城发首座售楼中心电话:400-116-7720接通后输入888(已认证)