太原金茂龙城晓棠售楼处电话:400-116-7720转接666【营销中心】
太原金茂龙城晓棠售楼处位置:400-116-7720转接666【楼盘电话】
房价特价信息丨优惠政策丨详细解答丨在售房源丨在售户型图丨项目介绍丨周边配套丨VR看房丨楼盘图丨沙盘图丨位置图丨配套图丨售楼处地址丨足不出户丨销售1V1讲解 如有问题欢迎来电咨询,可预约销售人员,专业一对一热情服务,让您用专业眼光去买房。
9月13日,金茂龙城晓棠正式实景开放,经过深入探访发现,它不仅仅是一个住宅项目,改善区域内的人居环境,而是以“六维超感满配社区”标准,成为新规下的标杆样本,更跳出传统居住空间的框架,为太原人提供了一套完整的未来生活"提案书"。

未开先火:
老城人居的“破局者”凭什么?
黄金坐标的“中轴话语权”:
1+1>2的地段红利
提及太原的城市中轴,迎泽大街是绕不开的符号。它作为“三晋第一街”,不仅仅是一条街,更是融入太原人血脉、承载了太原人精神坐标的城市符号。
从明朝官道,到中国第二宽街,以及沿街各企事业单位和大型公共设施的布局,迎泽大街的政治属性和文化属性非常突出,而其中轴特性更是一直都写在太原各阶段的城市规划当中。同时它又是一条集合了车辆快速行驶与人行安全慢游交通主干道,并形成了“1个公交总站+双地铁枢纽+三横四纵路网”的立体交通体系。
从发展角度来看,这条承载70年城市记忆的主干道,不仅是连接老城区与万柏林、西山片区的交通枢纽,更是太原“南移西进”战略的核心承载带——规划为“现代服务业集聚带+生态宜居走廊”,信达国际金融中心、中海商务广场等高端楼宇已落地,西山生态修复工程也在持续推进,地段价值肉眼可见。
而我们此次探访的金茂龙城晓棠,就择址于迎泽大街南侧约800米处,既扎根老城芯的成熟配套,又坐享西山生态治理的环境红利。从地理上看,项目紧邻地铁1号线下元站(直线距离约400米),未来还将接驳规划中的3号线,双地铁加持下,可快速抵达太原南站、武宿机场;步行1公里范围内,和平公园、玉门河公园、汾河公园三大生态空间环绕,其中30万㎡的和平公园更是配备2000米塑胶跑道、分龄儿童活动区,成为业主可以日常休闲的“天然氧吧”。

这种“中轴地段+生态资源”的组合,并非简单叠加。项目周边既有大王综合菜市场、纺织街小吃巷的市井烟火,又有公园时代城、下元商贸城(升级中)的现代商业,老太原的生活肌理与新城市的便利高效在此交融,形成1+1>2的居住价值。
而龙城晓棠所倡导的“一平方公里理想生活”,生活图景即在眼前。
建筑风格的在地性表达:
拒绝千城一面的“太原答案”
在建筑表达上,龙城晓棠没有简单复制其他城市的成功案例,而是巧妙融合了太原特有的历史文脉,通过现代材质重新诠释传统元素。这种"在地性表达",让建筑既有当代审美,又保留了城市记忆。
金茂龙城晓棠的营销中心融合了社区大堂(社区大厅具体空间说明详见营销中心公示资料),是“壹里繁华”商街的重要组成部分,主入口更是以“门堂之制”为灵感,参考曼谷四季酒店的设计风格,进行了酒店化的建造实践;而入口顶部则搭配236块手工锻造的海棠花瓣造型,既呼应“棠系”IP,又暗合山西人对“高门阔院”的情感认同。夜幕降临,花瓣之间亮起点点灯光,形成了满天繁星般的浪漫视觉。
据介绍,项目南侧主立面的单元门头、屋顶及竖向线条,借鉴晋祠圣母殿“四梁八柱”的对称美学,采用铝板造型搭配细腻真石漆,既保证了建筑的质感与耐用性,又通过“毫米级”的线条控制,让立面在光影下呈现出类似古建的韵律感。

这种“现代语言+在地文化”的融合,让项目既避免了千城一面的单调,又不会因过度复古而显得沉闷。一位建筑行业专家评价:“龙城晓棠的建筑,能让太原人一眼看出‘这是我们城市的房子’,而不是从别处复制过来的。”
150米归家路线:
把赶路变成享受的“沉浸式剧本”
“壹里繁华” 是金茂棠系的标志性理念,但在龙城晓棠,它不是简单的“社区底商”,而是串联起日常生活的“沉浸式场景”。约150米的商街,以超级界面刷新了区域“颜值”,同时规划了多种生活业态,让业主的归家路线,变成了一场“生活片段的串联”。

壹里繁华商街中,两棵“棠果大树”艺术装置已经成为亮眼的视觉标识,顶端坐着一个约2.7米的巨型卡通“棠果”,看上去仿佛一个温暖的伙伴,守护着所有人。装置下面的“树荫”,则可坐可玩,让孩子们多一处欢乐的童趣空间。

更贴心的是,商街采用“檐下空间”设计,即使下雨天,业主也能在廊下行走,避免淋雨;夜间,商街的暖黄色灯光与海棠花瓣造型的装饰灯亮起,既保证了安全,又营造出“回家即放松”的氛围。一位意向购房者表示:“以前下班回家就是‘赶路人’,现在走在这条街上,会觉得‘生活开始了’。”

友好范式:
全龄社区的“空间魔法”有多暖?
公共空间的“无界革命”:
从“封闭楼栋”到“社区客厅”
传统社区的痛点之一,是楼栋之间的“物理隔阂”——业主除了自家阳台,几乎没有可自由活动的公共空间。走进龙城晓棠的示范区,最令人印象深刻的就是其对公共空间的重新定义。

金茂龙城晓棠通过“架空层泛会所+下沉庭院”的“垂直活力岛”设计,将空间真正让渡给居民的生活需求,让公共空间成为“社区第二客厅”。约960㎡的会所内,居民们都能找到属于自己的天地:
• 四点半学堂:解决孩子放学后的托管问题;
• 儿童活动区:按0-3岁、3-6岁、6-12岁分区设置;


• 棋牌区:长辈则可以与邻里对弈,享受退休生活;
• 健身房、瑜伽室以及私教区:配备优质器材,与室外下沉庭院的生态美景形成良好互动;

• 室内高尔夫:家门口即可挥汗如雨享受;

• 私宴厅:大圆桌设计满足宴会需求,不但可以欣赏室外风花雪月的四季之景,同时还能与茶室和棋牌室形成空间联动……

这种设计的巧思在于,它没有将公共空间视为“额外配套”,而是作为居住功能的延伸。例如,下雨天家长不用再担心孩子无处玩耍,加班晚归的年轻人可以简单运动,甚至临时会客等需求,都能在这些空间解决——公共空间真正服务于日常,而不是“仅供观赏”。
而这些空间也并非孤立存在,而是与下沉庭院相连,推开玻璃门就能步入绿植环绕的庭院,实现“室内活动+室外景观”的无缝衔接。


下沉庭院的设计尤为惊艳,水景选用黑金沙仿石材料,营造出阳光下波光粼粼、夜晚如繁星闪烁的静谧浪漫氛围,庭院四周种植四棵元宝枫,寓意守护居民财富和运气。

而下沉庭院中央设置的"大树电梯"更是点睛之笔,这个致敬英国设计师托马斯·赫斯维克的装置,既满足了垂直交通功能,又成为社区的精神图腾。这种"空间魔法",让冰冷的建筑有了“人情味儿”,让社区真正成为"有温度的社交平台"。
全龄设施的“精准投喂”:
每个群体都能找到自己的“小天地”
“全龄友好”不是一句口号,而是对不同年龄段需求的精准回应。在龙城晓棠的园林中,从1岁的婴儿到80岁的老人,都能找到适配自己的设施。

针对儿童,项目打造了小朋友的“棠果乐园”,分为低龄探索区(摇摇马、沙坑)与大龄挑战区(攀爬网、滑梯),孩子们可以根据自己的兴趣和观察力探索不同空间;
“乐活棠花园”则考虑到青少年中考体测需求,设置了50米折返跑赛道、引体向上杆等设施,让孩子在家门口就能练习,和同龄人一起交流成长;
对于长辈,规划了“疗愈健康谷”,适合老年人漫步;
“听棠书吧”则文雅治愈,成为阅读、聊天的好去处……
这种“覆盖全龄、兼顾细节”的全龄、全时设计,恰好回应了好房子新规中公共空间服务所有人的要求。
社区里的“ IP叙事”:
从“观赏绿植”到“生活剧场”
很多社区的园林,停留在“林木繁茂”的层面,而龙城晓棠,以“棠果大树”和卡通“棠果”IP形象为引领,围绕“大树下”的精神图腾,将打造可参与、有记忆的“生活剧场”。
但“棠果IP”不止是给孩子的——在“大树剧场”,据说未来会定期举办演出、观影等活动,有业主提出建议,未来可以举办更多以棠果为主题的活动,比如春天的“棠果风筝节”、秋天的“棠果丰收市集”,业主可以手绘风筝、交换闲置物品,也能与其他业主进行交流。
这种以IP为纽带的园林设计,让园林从“观赏空间”升级为“社交容器”,承载了家庭陪伴、邻里交往的诸多故事,也让社区有了独特的记忆点。
技术正义:
“满配内核”的硬核实力有多强?
“好房子”的得房率革命:
让每一分钱都花在“生活空间”
在技术层面,龙城晓棠的"满配"理念同样令人印象深刻,项目在新规下实现了将近90%的得房率。
以建筑面积约143㎡的户型为例,得房率约88%,实际使用面积可达126.64㎡(边户)。

高得房率背后,是项目对空间效率的极致追求:首先是“零过道”设计,以及LDK(客厅餐厅厨房)一体化设计,取消传统户型中的浪费空间;其次是设备平台和阳台、飘窗的巧妙利用,合规纳入了使用面积;通过优化剪力墙布局,减少不必要的墙体占用,增加室内空间。
这个建筑面积约143㎡的户型还有一个显著亮点,就是“3+1”空间设计,也是太原首个此户型区间的首例。这个“X空间”由赠送面积巧妙设计而来,它可以是书房、茶室,甚至是临时客房,多功能化的使用场景,适配不同家庭的生活需求,实现了“空间魔术”。
得房率不是数字游戏,而是让业主的每一分钱都花在自己的生活空间里。据了解,金茂龙城晓棠没有为了追求得房率而牺牲公共空间的舒适度,而是通过科学设计,在业主使用面积与社区公共配套之间找到平衡。
户型设计的“家庭平权”:
让每个成员都有“体面空间”
在“好房子”的实施中,“公平”是容易被忽视却至关重要的维度——传统户型常因“主次卧差距过大”“公共空间挤压私人区域”,导致家庭成员的居住体验失衡。
但我们发现,金茂龙城晓棠以“家庭平权”为核心,通过全系三叶草户型设计,将空间进行均衡分配,让老人、夫妻、孩子都能拥有舒适且独立的生活场景,每个家庭成员都能拥有“体面且舒适”的专属空间,诠释出“每个成员都值得被尊重”的价值观。
从私人空间来看,建筑面积约143㎡的户型打破“主卧独大、次卧局促”的传统逻辑,三个卧室的尺度差距极小,每个成员的居住体验都能得到保障,真正实现“居室无主次,需求皆满足”:
主卧套房面积约19㎡,进深约5米、宽约3.8米,既能放下1.8m双人床+双床头柜,还能预留独立化妆区与L型衣柜;
主卫配备“女王镜柜”与智能马桶,兼顾隐私与舒适;
南侧次卧开间约3.1米、进深约4.95米,面积约15㎡,即使作为老人房,也能轻松容纳1.5m床+床头柜+书桌,甚至可摆放老人常用的按摩椅,不会因空间狭小而压缩生活需求;
北侧卧室面积约11㎡,摆放1.5m床与衣柜后仍有富余空间,孩子学习、玩耍互不干扰,避免“儿童房=小房间”的刻板印象。
公共空间的设计同样贯穿平权思维:
餐客厨一体化的LDK 布局,让烹饪、用餐、休闲形成无界互动——妈妈在厨房准备晚餐时,能看到孩子在客厅写作业,爸爸在阳台整理花草,家人间的交流无需“隔门对话”。

这种平权设计,本质是对家庭多元需求的深度洞察——它不刻意放大某一成员的专属区域,也不忽视任何一个人的生活习惯,更拒绝某一成员为居住需求“妥协”,让空间真正成为“承载全家幸福的平衡载体”,这也是金茂棠系“陪伴家庭成长”理念在户型设计中的生动落地。
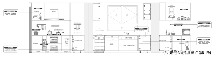
鲸吞收纳的“机能进化”:
预判家庭成长的“空间弹性”
“住得越久越挤”,是很多家庭的共同烦恼。而龙城晓棠的“鲸吞收纳”系统,打破了这个“魔咒”:金茂没有停留在“多做柜子”的层面,而是基于对太原家庭生活习惯的深入研究,预判了家庭从二人世界到二胎家庭、再到三代同堂的成长需求。
从玄关到厨房,从卫生间到家政间,每处设计都直击生活痛点,打造“有弹性”的收纳空间。
以建筑面积约143㎡的户型为例,全屋超过2.5万升的收纳空间,相当于40个大型SUV后备箱的容量。
我们在这个户型的样板间看到,入户玄关采用“双玄关柜”设计,高柜可收纳30寸行李箱、婴儿车,低柜则按鞋类分区,甚至预留了雨伞、消毒湿巾的收纳抽屉;

厨房的“U型布局” 搭配多层拉篮,碗碟、锅具、调味料分类存放,地柜下方还设计了“踢脚抽”,可收纳清洁工具;水池盆台设置翻斗抽,可以放洗碗工具……

餐边柜兼容了热水器(逆12层设置有太阳能热水器,其他楼层为柜体隔板)及洗衣机,优化了“独立家政间”,将洗衣、收纳等家务功能集中,避免阳台被晾晒占用,全家人都能享受阳台的观景与休闲功能,不会让“家务空间”挤压“生活空间”;

主卧卫生间的“女王镜柜”,内置可以上下移动的美妆镜、可以给刮胡刀和电动牙刷等充电的插口,以及口红等化妆品的小格篮……甚至在淋浴区预留了飘窗台面,可坐可置物,满足不同阶段的家庭需求。

与此同时,龙城晓棠还采用了“大牌平替”的方式,优选更具性价比的精装品牌,例如可挥手质控的高端抽油烟机、含洗杯器与水流调节器的多功能水槽、多功能水龙头等,功能时尚且更具实用价值,把各项器具的机能“拉满”。
市场投票的“标杆印证”:
从“参数达标”到“价值认同”
判断一个项目是否为“好房子”,最终要看市场的选择。金茂龙城晓棠在开放前,访客量就持续高涨,不少意向购房者带着户型图研究到深夜,甚至有行业同行专程前来考察“新规下的产品解法”。
一位从事房地产行业达10年的参观者表示:“我看过很多项目,大多是‘参数达标’,但龙城晓棠让我看到了‘生活提案’——它不仅告诉我们‘房子有多大’,更告诉我们‘生活可以有多好’。” 而有其他业内人士表示:“龙城晓棠为行业提供了‘居住空间向生活场景进化’的范本,这比单纯的销售数据更有价值。”

金茂龙城晓棠的意义,或许正是在于它代表了这种从“居住空间”到“生活提案”的范式转变。在这个项目中,我们看到:
·建筑不再是冰冷的容器,而是承载城市记忆与当代生活的媒介;
·社区不再是一栋栋孤立的楼宇,而是促进邻里交往的活力场域;
·配套不再是简单的功能叠加,而是精心编排的生活剧本;
·技术不再是冰冷的参数,而是服务日常的温暖解决方案。
这种转变,正是太原这座老工业城市向现代化都市演进的一个缩影。当越来越多的项目开始关注“生活场景”,而不近仅是"居住空间"时,太原人的居住方式也将迎来新的可能。