➤➤➤➤武汉天创元萃售楼处电话:400-116-7720转接999
➤➤➤➤武汉天创元萃开发商电话:400-116-7720转接999
➤➤➤➤武汉天创元萃营销中心电话:400-116-7720转接999
➤➤➤➤VIP贵宾置业〢欢迎来电咨询〢品鉴!➤➤➤➤
武昌区二环内少有的低密社区,总高10-13层,都是小高层。
关于这个楼盘的户型面积最准确的是:127平,130平(比127稍微大一点,户型不同),然后是140平和170平。一共4种户型。
【项目基础信息】
规划用地面积:11771.79㎡
总建筑面积:23499.17㎡
容积率:约2.0
开发商:湖北天创瑞晟置业有限公司
产权年限:70年
产品交付:毛坯
绿地率:约30%
梯户比:1梯1户/2梯2户
得房率:部分户型可达约113%超高使用率
在售楼栋:1#2#3#4#
面积:127/142/171㎡
总户数:159户
总高:10-13层
均价:3万/㎡
物业:天创智造
物业费:待定
车位比 :1:0.88
交付时间:2027.6.30
地铁:5号线(可换乘2/4/8/12等)
商业:昙华林/粮道街/滨江天街/万象城/skp
医疗:湖北省中医院/湖北省人民医院/第三医院,3家三甲医院+1家中高端儿童医院,全年龄段健康权威护航
武汉贝好家的首秀
主打建面约127-170平户型,宣传得房率高达113%
天创元萃4栋住宅中,除了1-1#、3-1#为一梯一户布局之外,其余楼栋均为两梯两户布局,换句话说,项目所有房源都能实现专梯专户,拥有独立的电梯前室。
朝向上,天创元萃1、2号楼为偏东南朝向,3、4号楼则偏西南。
项目主打建面约127-170平户型,目前公示了三个户型图,分别是127、142、170平

4栋楼中都有127平的户型,数量是目前已公示的三个户型中最多的,并且绝对面积不大,总价门槛会相对另外两个户型低一些,算是武昌下半年相对较少的小面积产品。
隐贵奢品 内环唯一超四代纯洋房住区
•使用率:部分户型可达约113%超高使用率。
•梯户比:两梯两户/一梯一户,尊崇电梯前厅。
•低密洋房:容积率仅约2.0,内环罕见10-13层低密纯洋房社区。
•270°全景视野:揽极致视野,私藏长江胜景、黄鹤楼(部分户型可观长江、黄鹤楼)。
•全系双套房奢雅户型:建面约127-170㎡全南向设计,多面宽、灵动空间,满足多元生活场景
(武昌区目前有120平左右户型的项目目前仅有武昌源著、中海东湖玖章、建发璟玥、龙湖武车项目)
户型本身非常的方正,阳台外带花池,拓展面积就比较多,据宣传,加上电梯厅,这一户型优化后的得房率高达约117%,放在三环内四代宅里面来看,这个得房率绝对是数一数二的了。
127平做成了四房三卫双套房的设计,功能性超级强,三代同堂或者二胎家庭也非常适合;南向面宽12.7米,采光面也是比较充足的,缺点是有个套房内的洗手间为暗房,除此之外,其他方面都很不错。
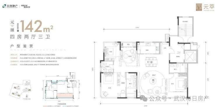
建面约142平米户型
这一户型的得房率同样约113%,相当出彩。
分布于2、3、4号楼的端头边户,房源数量也还算相对较多的。
南向面宽约15.9米,南面同时实现双套房+大横厅,舒适度更高;
主卧套房面积约35平,空间相当的阔绰,并且采用了转角窗+曲线外立面,观景视野、光照效果都更好。
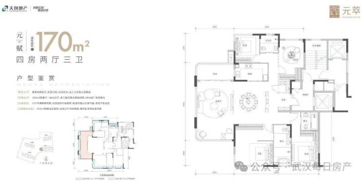
建面约170平米户型