苏州东吴序售楼处电话:400-116-7720转999「售楼中心认证」

东吴序,即苏地2024-WG-Z45号地块,位于吴中经开区长桥街道宝带西路南侧、龙西路西侧,1月8日由吴中建设以底价23443万元竞得,成交楼面价15040元/㎡。

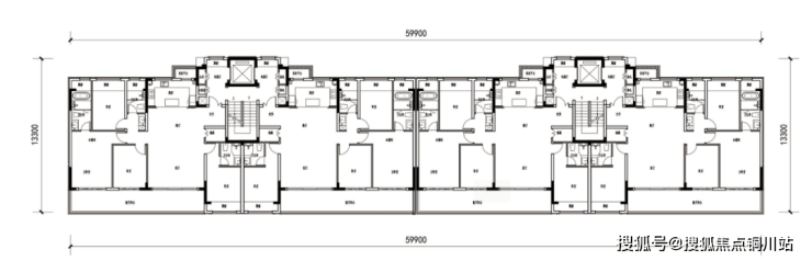
项目总建筑面积25919.37㎡,占地面积15586.8㎡,容积率为1.5。
根据规划,项目拟建6幢3-8F住宅,共计78户,其中4幢3F联排、2幢8F洋房,8F洋房中1-2F为商业。
项目近期公布了建面约215㎡、建面约245㎡联排户型。
建面约245㎡联排,独立入户,南向面宽约11米,打破传统联排的局促感,餐客厅一体化,中西双厨,还特别设置了南向老人套卧,日常起居便捷舒适。南向双套房设计,其中一间连接超大露台,推窗即揽四季景致。
建面约215㎡联排,布局与上一户型相同,户型布局方正,后期方便业主改造,户型无面积浪费,实用性更强,功能布局更加合理,2F、3F均有露台赠送,真正做到有天有地有自然。
洋房户型暂未公布,根据规划来看,户型为4房2厅3卫设计,4开间朝南。客厅采用大宽厅设计,拉伸视觉尺度的同时拓展了活动空间,外接三联阳台,打破传统独立阳台的割裂感,收获超大观景区域,南向双套房设计,含独立衣帽间和卫生间,多飘窗设计,有赠送面积。
