济南中海时光之境售楼处电话400-116-7720转999【营销中心】
✅✅ 楼盘详情介绍,位置、小区环境、房价、周边商业配套、户型等楼盘详情!
案场限流—〢请提前联系售楼中心—〢进行预约登记来访!
预约优惠—〢售楼中心置业顾问为您买房保驾护航〢—匠心钜制恭迎品鉴
“中海速度”之下,作为“中海济南首座四代”的时光之境实景效果究竟如何?“片区踢馆王”能否在历下核心区搅动风云?今天房小参团队实景探盘,为大家一一解惑。

在花园东路上但凡看过中海时光之境的大门,就应该意识到,花园路沿线的豪宅地标要易主了。
1、超尺度大门,济南豪宅的门面担当。
这座大门大概长92米多,高度大约11米,中轴对称式布局,大面积的巴西木化石奢石上墙,保证大门的历久弥新。
顶部金属穹顶采用镂空设计,地面是福鼎黑石手工拼贴成的流苏花,大门两侧是高大朴树,中间一棵百年老桩白蜡,白蜡下方是由进口安哥拉黑石材打磨成的镜面水盘;围绕中央水景设置了环岛落客区,融入了星级酒店的落客理念,让回家仪式感更强。
2、奢石博物馆,全球顶尖的重金选材。
近7米挑高的归家大堂,采用四梁八柱的设计手法,柱子使用了巴西利亚黑奢石,背景墙则采用名贵的皇家翡翠奢石,一石三面,每一块都独一无二;就连接待台都是特选的意大利进口雪花白大理石整石雕刻;大堂地面的定制拼花石材,是太古黑金和雅士白石材组合而成;目之所及的都是艺术奢石,而且工艺和细节经得起考究。
归家大堂北侧就是下沉庭院,它的设计灵感源自波斯庄园中最古老的皇室夏宫费恩花园。
整座庭院最大的亮点是中轴的翡翠之心中央水景,水台部分是马达加斯加的蓝翡翠奢石雕琢而成,这种石头被誉为奢石界的爱马仕。
水台上方悬流苏花定制雕塑,两侧分布着百年老桩紫薇树,再加上跌水水景,更增添了造景的层次感。
3、近2000㎡全自持会所,演绎八大奢享生活场景。
下沉庭院四周就是时光之境近2000㎡的海派繁花生活馆,这里是知名设计团队香港郑中CCD打造,包含健身房、瑜伽室、茶室、私宴厅、棋牌室、VIP沙龙、艺术长廊、会客厅等8大功能区域,每个功能区都能透过通顶落地窗享受下沉庭院的景观视野。
更重要的是,小区内的下沉庭院、会所、包括后期呈现的架空层空间都只对本小区内业主开放,交付后全部由中海自持,不会有外包风险。
像健身房、瑜伽室这些都是免费开放,棋牌室、私宴厅、茶室等都可以线上免费预约使用,让社区配套真正成为业主私享的生活配套。

中海时光之境从拿地之初就爆出要做四代宅,它是历下盛福首个四代宅,也是核心区新规后首个真正的四代住宅。
家家有露台,户户送花园,再加上最高134%的超高得房率,堪称空间革命,对上一代住宅基本是无差别降维打击。
1、定位高端,改善纯粹。
从户型规划来看,时光之境算是整个盛福片区改善属性最纯粹的楼盘。
起步145平的三室,其实比150多平的四室起步门槛还要高一些。最大户型252平,也说明小区的定位能级很高,毕竟要打动800多万预算的客群,产品力上要求肯定会更高。
2、户型创新,得房率创新高。
主力户型是152/155平四代宅,得房率最高能实现100%。这次开放的两个样板间,一个是155平的奇数层,一个是252平的奇数层。
先看这个155平四室户型。
它是四叶草布局,中间是LDKG的一体化设计,四个卧室分布在周边;四叶草布局有两大优势,一个是保证每个居住空间互相独立更私密安静;另一个就是空间使用率高无单独的走廊浪费面积。
155平在做了四室的情况下,仍然能实现约5米的大宽厅,还能保证所有卧室都能拥有舒适的尺度,这是四面宽户型不能做到的。
这个户型赠送面积很多,开敞阳台赠送一半面积,约3米进深的户属花园全赠送,北侧设备平台可与卧室打通做成小阳台,再加上边侧两个卧室和卫生间的飘窗赠送,整体得房率能实现100%,相当于上一代190多平的建筑面积。
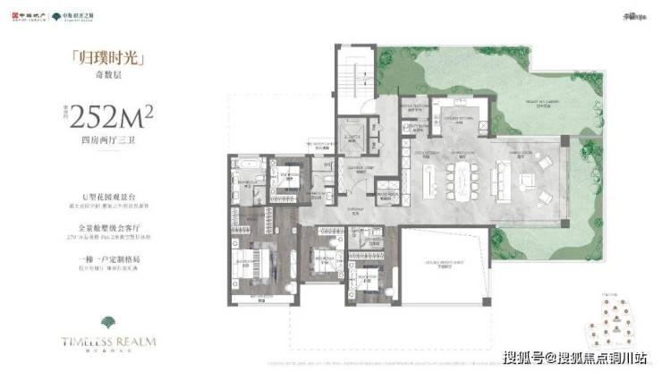
252平的奇数层最为惊艳,它是济南首个实现客厅挑高约6.2米的墅级大平层,综合得房率更是达到惊人的134%。
这个户型亮点太多了。
独梯入户私享步入式电梯前厅,进门动静分区,还规避了大边厅户型走廊狭长的弊端。
一侧是四室三卫的双主卧休息区,另一侧则是约71平的LDKG无界生活厅,带有济南顶奢大平层里独一无二的约6.2米挑高的墅级会客厅,挑空部分还是赠送面积。
样板间的这套奇数层户型拥有102平的270度景观花园,偶数层户型则是赠送76平的前庭后院。这套样板间还是带有空中花园入户的双入户设计,真正实现大平层和别墅的完美结合。

时光之境这次实景开放,很多人以为四代宅的才是最大亮点,其实不然,中海通过全国首创的living OS系统对济南豪宅生活的全新定义更值得关注,可以说它将颠覆大家对好房子的认知。
1、豪宅装标再创新高。
以252㎡样板间为例,选材用料堪称“顶配阵容”。
门博士铸铝子母门,整体通顶设计,门锁使用的是飞利浦智能电子锁。玄关背景墙采用的是巴西奢石雪山飞狐,每一块都是专属定制,世界唯一。
全屋吊顶,内嵌大金中央空调系统,亮点是空调还覆盖厨房区域,嵌入式设计还添加了双重过滤油烟的功能。
百朗的双向流新风系统,能进风也能出风,比大多数单向流新风系统成本约高55%。此外,项目还标配同层排水系统,保证室内更安静的用水环境。
厨房墙面是简一的世纪冰玉瓷砖900*2700mm的超大规格更好打理,灶台墙面单独采用简一的卡拉卡塔黑瓷砖,防油污性能好。烟灶套装选用的是方太最高端的新款隐藏式油烟机和智能灶。
全嵌式洗碗机、烤箱、蒸箱、西厨冰箱全部用的是德国顶奢的嘉格纳品牌最新款,时光之境也是济南豪宅里第一批用嘉格纳的楼盘,而且都是用的最新款,这一套厨房用具市场价大约30万。
水槽使用的是德国铂浪高的花岗岩水槽,感应水龙头和垃圾处理器是贝克巴斯品牌,还预留了泉水直饮口。
主卧卫生间使用的是唯宝的智能马桶,台盆是唯宝,水龙头是汉斯格雅,花洒是汉斯格雅带大顶喷的高端系列,全是德国顶奢的卫浴品牌。
主卧卫生间的墙面镜柜还单独配备美妆冰箱;台面选用了奥巴马木纹的石材台面,天然的石材纹理沉稳大气;地柜的表面定制的中海千万级豪宅标配的贝母漆定制纹理。
样板间呈现的装修标准,丝毫不亚于单价4万+的顶奢豪宅。
2、智慧豪宅,“好房子”标准全维提升。
奢装是房子华丽的外表,中海好房子living OS系统才是智慧的大脑。
“好房子”的营造绝非简单的硬件升级,而是一场关于居住本质的系统性革命。
中海地产基于中国房地产业协会约3.3万户家庭入户调研及约3万条居民需求反馈,历时三年研发推出Living OS系统,以“安全、舒适、绿色、智慧”四大特征重构住宅标准。
中海时光之境作为济南第一个落位中海好房子living OS系统的楼盘,相当于给济南豪宅加上了一套绿色智能装甲系统。
举几个生活中能应用到的例子:
安全性细节:当家里没人,系统监测到煤气泄漏、室内烟雾、漏水漏电,或者忘关家门,系统会自动报警,并通APP给业主推送安全警示。
舒适性关怀:通过厨房空调三重油烟阻控、静音门窗系统、深水封地漏等技术优化居住体验。
绿色智能系统:在样板间能看到中海自主研发的一块15.6寸屏幕,它就像一台全屋家电的体检医生,不仅能实时监控全屋设备状况,实时推送节能建议,降低能耗;出问题了还能一键查原因、找源头、叫维修甚至下单换配件。
济南中海时光之境售楼处电话400-116-7720转999【营销中心】
✅✅ 楼盘详情介绍,位置、小区环境、房价、周边商业配套、户型等楼盘详情!
案场限流—〢请提前联系售楼中心—〢进行预约登记来访!
预约优惠—〢售楼中心置业顾问为您买房保驾护航〢—匠心钜制恭迎品鉴