首页@南京江宁仁恒云谷世纪最新(营销中心)-南京江宁仁恒云谷世纪售楼处电话_首页网站_内附图文解析_楼盘百科详情→24小时热销电话

铜川楼市发布

2025-05-29 01:18:00

购房群

买房如何避坑,加入购房群,看看他们怎么说

立即进群

��☎【南京江宁仁恒云谷世纪售楼热线】:400 116 7720 转888☎⫷

��➤南京江宁仁恒云谷世纪售楼处〢欢迎咨询〢提前预约可享内部底价〢➤

��南京江宁仁恒云谷世纪售楼处直销热线400-116-7720转888中介勿扰|欢迎致电咨询

��温馨提示:为了节约您的等待时间,看房请提前致电售楼处预约!!!

▰▰▰▰▰▰▰▰▰▰▰▰▰▰▰▰▰▰▰▰▰▰▰▰▰▰▰▰▰▰▰▰▰▰▰▰▰

仁恒、六恒科技房、直饮水入户、铝板立面......一个3万多/㎡的楼盘,做出了4、5万/㎡楼盘才有的品质

不用怀疑,今年南京300多万最值得买的新房,就是仁恒云谷世纪

仁恒,总能走出独立行情。

公开15天,超1500组客户,平均每天100组来访者!我想,现在全南京最忙的售楼处,应该就是仁恒云谷世纪了。

热度,比肩河西顶尖豪宅。

01.

仁恒云谷世纪

带麒麟步入改善时代

仁恒云谷世纪位处麒麟科创园,作为仁恒改善级产品,无论品牌、产品,还是后期的服务能力,仁恒云谷世纪都是目前南京300多万里极致选择

放眼全南京,很难找到与之比较的楼盘。

从品牌实力上看。

在南京,能带飞一个板块的房企,只有仁恒

很多人眼中,南京房子只有2种,一个是仁恒,一个是其他

从燕子矶,到麒麟,再到小行,仁恒总能让我们重新认识一个区域的价值,甚至重塑南京板块格局

这是,我觉得仁恒无法被超越的价值。

仁恒城市星徽实景图

对麒麟来说,仁恒又很特殊。2020年之前,麒麟是被南京楼市遗忘的地方。

直到2020年11月,仁恒首进麒麟带来了城市星徽,楼盘首开352套房,2300多组人报名,开盘当天全部卖光。

之后越卖越火,3856人抢392套,2502人抢205套……10个月卖光1000多套房

仁恒不光自己卖得好,周边几家楼盘趁着仁恒势头,也成为千人摇号的项目。

是仁恒城市星徽,把麒麟带入了买房人视野

仁恒城市星徽实景图

2023年,仁恒杀回麒麟,打造云谷世纪,带来麒麟首个科技住宅

作为桃园世纪、江湾世纪、公园世纪之后,南京第四座“世纪”产品,仁恒云谷世纪将麒麟改善快进了5年。

云谷世纪有多火?

它吸引的已经不单单是城东改善群体,有人对比江北、燕子矶之后,锁定了云谷世纪;有人要卖掉南京南站的房子,来买143㎡改善……

仁恒云谷世纪,让南京主城300万-500万的楼盘胆颤。

这一次,仁恒云谷世纪,让麒麟进入了改善视野。

麒麟科创园实景

在南京深耕30年,仁恒发展到今天,已经不单单是在做房子,反而更像是一个标签。

从国际公寓、江湾城、翠竹园,到公园世纪、城市星光、城市星徽,亦或是任何一个仁恒项目,只要仁恒在那,就代表着区域最高标准

3年前,星徽是麒麟楼市的最高标准。3年后,云谷世纪将成为了新一代标杆

02.

一个3万多的楼盘

做出了4、5万楼盘才有的品质

再看产品。

仁恒云谷世纪,一个3万多的楼盘,却有着南京市场4、5万一平楼盘才有的品质。

仁恒云谷世纪共建12栋16-25层住宅。与城市星徽,云谷世纪全面升级,六恒科技系统、三色铝板立面、直饮水入户.....这些基本都是南京主城区5万/㎡左右房子才有的建设标准。

楼盘主力户型建面约99—180㎡,最大到180㎡,是目前麒麟最大的户型

仁恒云谷世纪户型没有过分追求大横厅,创新空间布局,让空间与功能得到平衡,让业主既能享受空间,又能有多房间的功能性。

建面99㎡

建面125㎡

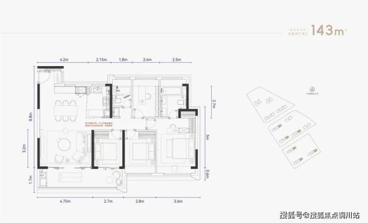
建面143㎡

建面168㎡

可点击查看大图

其中面积约125、143㎡这样的首置改善户型都做到了四开间朝南,采光和通风效果都做到了极佳状态,尤其心动的是户型一进门的玄关上,都做了升级,一扇窗拉升了整体通风、采光,在玄关处留一扇窗,这在南京楼盘中是很少见的。

1、分户式六恒科技房

去年开始,南京做科技房的楼盘越来越多,但这也基本是大校场、河西这样5万/㎡以上的项目。

南京很少有4万/㎡以内的楼盘做科技房,更别说仁恒了。

更没想到的是,仁恒云谷世纪科技房还有99㎡这样的入门级户型。简直是仁恒粉的重磅福利。

要知道,仁恒在南京前3个“世纪”产品(江心洲江湾世纪、鼓楼桃园世纪、燕子矶公园世纪),最小也要130㎡起步,而且都没有科技系统。相比之下应该就知道仁恒云谷世纪有多难得了。

��☎【南京江宁仁恒云谷世纪售楼热线】:400 116 7720 转888☎⫷

��➤南京江宁仁恒云谷世纪售楼处〢欢迎咨询〢提前预约可享内部底价〢➤

��南京江宁仁恒云谷世纪售楼处直销热线400-116-7720转888中介勿扰|欢迎致电咨询

��温馨提示:为了节约您的等待时间,看房请提前致电售楼处预约!!!

▰▰▰▰▰▰▰▰▰▰▰▰▰▰▰▰▰▰▰▰▰▰▰▰▰▰▰▰▰▰▰▰▰▰▰▰▰

全部

相关资讯

报名成功
稍后会有专业的置业顾问联系您
返回楼盘

频道导航

返回首页

看房小程序

APP下载

电话拨通后,请您手动拨打分机号

确定拨打电话

电话号码:

分机号:(可能需要拨分机号)