➤➤➤➤南通元瑞雅苑售楼处电话:400-116-7720转接777
➤➤➤➤南通元瑞雅苑售楼处电话:400-116-7720转接777
光是行走于约5000㎡的开放式前场,视觉上就足够惊喜。南通籍书法大师范曾题字的界碑、百年古树相拥的沉浸式归家林径,一千平米的落客区以及采用中央车站设计理念的地下车库,非常值得一看!
终于!南通的超配生活有了新标准

实景图
和园不仅在审美品味、园林设计、社区质感上有革命性迭代。产品层面,同样完成了一次自我超越。
和园由招商蛇口、炜赋建设、科创产发联合开发,打造建面约400-700㎡湖畔类独栋、约255-325㎡观澜联院、约225-230㎡叠景院墅三种产品,光起步价格就是700多万。根据通房e办数据显示,项目已备案98套,去化约8成!

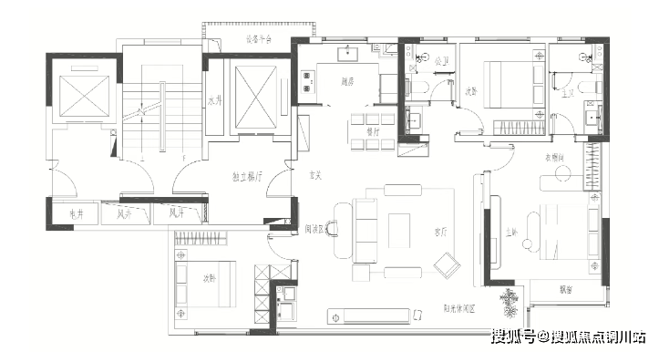
下叠样板间实景图
比如前段时间公开的建面约220㎡下叠样板间,以更高的实用率、更大的采光性、更强的空间布局超越而来,市面能与之媲美者屈指可数。
中国好房子,南通新样板|紫琅湖畔·和园实景首次曝光!不愧是顶流…
地下室约6.25米层高迭代,创新引入下沉式院子
近乎1:1的附赠比,每层都多出超30㎡
大尺度单块玻璃,近乎横跨整个客厅
......
部分楼栋已封顶
拆除脚手架
进行外立面施工


图源濠滨
作为创新区的明星选手,紫琅吾岛热销喜报频传,离不开项目的板块占位及高品质的实景呈现。
项目位于创新区南区、紫琅湖畔,不论是以会展中心、大剧院、美术馆为核芯的城市地标区、以紫琅科技城、企业总部中心为核芯的商务办公区、还是以紫琅新天地、万豪酒店为核芯的特色商业地标,都可轻松抵达。
图源濠滨
周边分别有紫琅一小紫琅湖分校、紫琅湖初中、南通中学紫琅校区(建设中)三所高质量名校,依托约3万方紫琅小游园旁、一岛双湾的独特占位,未来小业主穿过小游园或走过网红桥,即可抵达学校。
此前我们多次跟大家分享过紫琅吾岛的公区实景呈现,细节品质方面都超出行业预期,将度假感的生活具象化。
项目汲取曼谷湄南河四季酒店为灵感,采用全景式度假感归家动线,从社区酒店式入口、下沉庭院、景观花园...层层递进。同时打造近3000m²中央景观会客厅,目之所及皆是风景,不用出家门就能享受到丰盛、欢畅的户外生活体验。

实景图,来源紫琅吾岛
特别之处在于项目颠覆了“传统会所独立设置于地下”的模式,将会所与下沉式水景庭院融合,会所在庭院中,庭院融入会所间。会所内配置水吧台、私宴厅、Switch游戏区等多个功能区,方便业主日常需求。
在户型设计上,项目根据南通人的生活需求定制了建面约130/168/188㎡三款人性化户型,并且实体样板间已经全部开放。很多生活细节做得也很到位,比如客厅双弧形吊顶,全屋大面积通铺地砖,厨房用的是玻璃夹丝移门等,看得出项目花了很多心思,诚意满满!
逆势热销!揭秘紫琅湖畔红盘背后硬实力!



南通金鹰世界,超120万方全生活中心,涵盖建面约118-190m²国际滨水住区,约10万方滨水商业街区、约32万方超级购物中心以及约249米高的三塔连体建筑。
其中住宅方面,去年9月底一期15#、16#、21#三栋楼迎来交付,21#比原计划提前了足足3个月,至此全盘已实现交付。


图源濠滨
目前实景现房在售,品质可圈可点,户型建面约118-190㎡,无需漫长的等待期,即买即住。
实景图
当然,大家备受关注的莫过于金鹰世界商业,到底什么时候能开业?
今年3月,金鹰集团官网正式发布《南通金鹰世界A1A2A4A6地块项目建设工程造价咨询》,透露了项目部分时间节点。

根据项目工程概况显示,南通金鹰世界A1A2地块建筑面积约101,306m²,商业步行街业态,计划25年年内简装竣备。
A4地块建筑面积约332,381m²,商业综合体业态,计划26年精装竣备开业。现场进度为主体结构施工完成,二次结构完成90%,现处于外立面幕墙装修阶段。

效果图
所有楼栋已封顶,所见即所得
园林绿化火热进行中
计划今年年底交付


图源濠滨
元瑞雅苑,由轨道集团全资子公司——南通轨道置业开发,是继仁恒公园世纪之后,南通市区第二个直通地铁的住宅产品,还自带约5000平商业。
➤➤➤➤南通元瑞雅苑售楼处电话:400-116-7720转接777
➤➤➤➤南通元瑞雅苑售楼处电话:400-116-7720转接777