武汉恺德雲麓
售楼处电话:400-116-7720转777
过去,年轻购房者一直在地段、房价、品质之间苦苦寻找平衡点。但很多时候都只能一再妥协。
而当通勤短、领先设计、买得起、看得上、住得舒服等一系列优秀特质全部“一碗都摆在眼前”时。
越来越多新时代年轻人,开始冲向了心中好房子的代表——恺德雲麓
01
作为汉口三环内首个正式试点的第四代住宅,恺德雲麓出道即爆红。
数据不说谎,项目刚启动不到三周,圈存客户就超200组。
近期,项目清水样板间已开放,每天到访客户更是络绎不绝。仅是一个普通周二工作日的上午,就有超过50组客户到访看房。
而临近开盘,项目每周到访客户都在三四百组以上。
很多人在看过恺德雲麓之后,都有同样的感受——
这是一个至少5-10年不会过时的项目。
如此评价,与项目全新的产品设计和真实可感的高品质输出密不可分。
首先,类公建立面+南北双阳台+可封闭式阳台。
立面采用了大量高反玻璃,局部装饰线条和香槟金铝板的造型,整体简约纯粹,颜值足以惊艳众人。
有别于当前市场上的一众3.5代,“类四代住宅”,恺德雲麓南北双阳台,搭配南北双花池的设计,让每户型都拥有了超大面宽,赋予生活更多附加值。
△项目示意图
按照建设标准,目前第四代住宅的阳台(露台),通常都凸出建筑主体,或错层退台设计,有的不能封闭。露台的挑高上方就是别人家的窗户,采光和隐私都受影响。
但在恺德雲麓,可封闭的阳台,保证了建筑的美观,楼体的扁平化设计,完全规避了四代产品的采光、私密性问题。
其次,以湄南河四季酒店为蓝本所设计的园林,从外到内照顾到城市进阶者的情绪价值。
项目的园林设计和空间设计,特别聘请了国家级风景园林设计资质专家——山水比德创始人孙虎先生和中国空间艺术设计引领者——元禾大千设计总监范相成先生。
打造约10000㎡园林,造价高达约1300元/㎡,超过很多别墅的园林造价成本。
△项目示意图

以享誉世界的湄南河四季酒店为蓝本,结合汉江湾自然文化,通过五感场景空间进行多重维度景观设计。
在临街主动退让,精心设计的水系涌泉和进口树种园林,将社区入口隐藏在了一片葱郁清幽之中,完成“入世”“出世”的过渡。
△项目示意图
而当你抵达挑高约12米的社区大门,“高门大户”的庄重感,油然而生。
△项目示意图
进入内部,无惧风雨骄阳的景观连廊、中心水景庭院、“光影林廊”艺术会客厅和架空层泛会所……一套景观“组合拳”落下,度假酒店式的松弛感瞬间拉满。
△项目示意图
第三,Top1的万科物业服务,给了购房者全方位的关怀。
购买的行为很短暂,居住的满足感是长期的。其中,优质物业往往是提供长期满足感的关键所在。好的物业也直接影响房子在二手房市场的价值。
在这一方面,恺德雲麓引进国家一级物业管理资质的万科物业。万科物业连续十年蝉联中国物业管理综合第一。
现在,只要你进入恺德雲麓,就可以体会到“买房一阵子,物业一辈子”的真谛。
02
也就是说,不论从外部的立面颜值,还是小区内部的公区设计,以及后续跟进的服务,恺德雲麓几乎都切中了这届年轻人的关注点,照顾了他们的“面子”。
同时,项目独特的户型设计,更稳稳拿捏了90后的居住情绪,成全了他们的“里子”。
对于又忙又闲、精致又随意,高知且挑剔、讲究又不愿将就的成长型年轻家庭,什么样的房子能投其所好?
高拓展性、高得房率、高收纳空间、多重生活场景……恺德雲麓给出了“满”级答案。
项目1期共设计两栋住宅,容积率仅约3.92,即将首推的1号楼仅31层,是目前板块内唯一的高层。
基于四代标准打造的户型产品,负公摊、双阳台、双花池、独立入户空间等多个亮点,让户型的实际空间使用率高达95%,最高可达102%,让买多少得多少再也不是幻想。
这个建面约92㎡的户型,虽是入门级户型,却是板块内唯一的百平以下双卫设计。
三室两厅的布局,可私享入户。独立的入户前室,摆放一个正常尺寸的鞋柜完全没有问题,充分关注到私密性和生活尺度。
室内空间,也是尺度惊人,功能性极强。
△项目示意图
南向阳台总进深约2.9米,整体面宽达到了约9.4米。高达约95%的空间利用率,足以与市面上建面约120㎡+的产品相媲美。
建面约116㎡的N+1户型,空间使用率高达102%。是目前整个汉口中心区,唯一可实现负公摊的户型。
南北双阳台,全屋多个飘窗、入户门厅、花池的巧妙拓展,实现了开间约5米6的大横厅,主卧空间可达约25㎡。
△项目示意图
也就说,140m²都难以实现的代际分离,项目116m²已经可以基本解决。
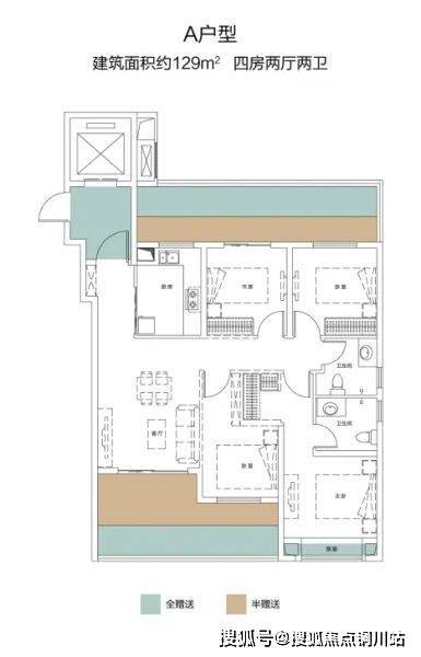
建面约129㎡的四房两厅,在整个项目中占比不算多,但却是“领先级”改善产品,十足的买到即赚到。
这个户型,实现了在有限面积内,居住空间和生活品质的全面提升。
独梯入户,从踏进电梯那一刻起,就是私属归家时间。
户型整体的实际套内使用率超99%,南向阳台、花池优化后,无界横厅、LDKB的客餐厅、堪比酒店套房的主卧等都能一一实现。
△项目示意图
同时,经过多重优化,让每个房间能额外增加约10m²,充分考虑到了家庭的长远需求,即使两个孩子的成长,也不用在高低床和书桌之间做取舍。
奢阔尺度完美对标建面约170㎡+的平层产品,在足够充裕的空间之上,用不高的置业成本演绎出生活更多的可能。
也就是说,从户型到精装到收纳,从功能到颜值到场景,恺德雲麓的产品,就像一部“新青年居住潮流研究报告”,剧透了新生代住宅的多重喜好。
03
一直以来,在武汉,想要用纯粹的产品来打败地段,都是一种玄学。
因为,地段背后的资源配套代表着的是,业主未来直观的居住舒适度和便捷度。
所以,在恺德雲麓项目身上,我们看到一种高效+繁华+生态生活的全维度升级。
落位于武汉二环的恺德雲麓,处汉江湾核心区,先天具备领先的区位优势。
△项目区位示意图
从恺德雲麓出发,步行约500米就可以坐上地铁1号线。一街之隔的凯德西城商业体,充分满足日常吃喝玩乐购的需求。
步行十多分钟,即可到达建成多年的汉江湾生态公园。

△公园实景图

要知道,这些配套都是所见即所得,这种无需等待的确定性,最能打动人心
武汉恺德雲麓
售楼处电话:400-116-7720转777