天津金地清峯上售楼处电话☎️400-116-7720转接999(专人接听)
天津金地清峯上营销中心电话:☎️400-116-7720转999【营销中心】
🌈温馨提示:拨打400电话,听到嘀声后,输入分机号999即可!

项目亮相之初便引发市场高度关注,实景示范区开放首日即吸引超500组客户亲临品鉴,首开当月认购金额3.27亿元,充分印证了其产品力与市场号召力。
稀缺性定义产品基底
房地产的价值逻辑中,土地的稀缺性始终是核心要素。
容积率作为衡量土地使用强度的关键指标,直接决定项目的居住品质与产品形态。
回顾河东近8年土地出让情况,共出让17宗宅地,其中容积率≤1.6的仅有4宗,金地清峯上位列其中。
这一数据直观体现了项目所在的土地资源稀缺性。
容积率1.6意味着什么?
它代表着更低的建筑密度、更高的绿地率、更优的采光条件与更宽敞的楼间距。在寸土寸金的市区,这样的规划条件为居住舒适度奠定了坚实基础。
供需关系决定价格,当前市场,同地段同项目间高层与洋房的价差可达20%-30%,洋房的“珍贵”可见一斑。
金地清峯上整体规划18栋5-11层纯洋房,仅300余席,无高层搭配,从规划层面确保了社区的纯粹性。
纯洋房社区的资产保值价值
纯洋房社区的核心优势在于其带来的圈层纯粹性。相近的总价段、相似的生活理念与消费层次,自然筛选出价值观趋同的业主群体,形成稳定、高质的社区氛围。这种圈层认同感不仅提升居住体验,更从社会关系层面支撑资产价值的稳定性和成长性。
从资产属性看,低容积率土地本身就是难以复制的硬核资产。随着城市发展趋于饱和,这类土地的高价值性将日益凸显,为产品提供坚实的价值基底。纯洋房社区无高层搭配、无商住混合,杜绝了不同类型产品相互干扰带来的折价因素,最大限度保障了资产的纯粹性与市场竞争力。
相比常见的高低配社区,纯洋房产品凭借低密度、高舒适性、高私密性和社区统一性,在二手市场中表现出更强的抗跌性、更快的流通性。这类产品更容易穿越市场周期,成为高净值人群资产配置中的“压舱石”。

尤为重要的是,社区内长期稳定的居住氛围进一步巩固了资产价值。由于住户属性高度统一,社区认同感与归属感显著增强,业主对公共空间与物业服务的维护意愿及参与度更高。这种共同维护家园的共识,直接转化为园区设施更好的保养状态与更和谐的居住环境,从而形成资产保值增值的良性循环。
此外,纯洋房社区的价值支撑更具韧性,抗政策波动能力更强。作为纯粹的改善型产品,其价值核心立足于产品力与土地稀缺性本身,而非依附于不确定的教育政策等外部因素。这使得其估值基础更为稳健,受市场短期调控的影响相对较小,为资产安全提供了又一道坚实屏障。
细节定义改善生活
优秀的产品设计能够将土地的潜力转化为真实的生活价值。
金地清峯上在户型设计与空间功能划分上,针对不同家庭结构的需求提供了多样化解决方案。

97㎡户型:城芯5层纯洋房稀缺品
在市区核心区,5层洋房产品已近乎绝迹。金地清峯上推出的97㎡户型,正是瞄准了这一市场空白。
三室两厅一卫的全明设计,充分满足二胎家庭或三代同堂的功能需求。U型厨房设计优化操作动线,提升使用效率;飘窗全赠送则显著提升实际得房率,在有限面积内创造更多实用价值。

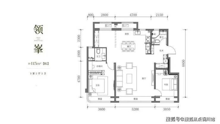
115-139㎡户型:全方位改善升级之选
115-139㎡户型采用创新的四叶草格局,四室分离设计保证家庭成员互不干扰,隐私得到充分尊重。更值得一提的是,约129、139㎡户型采用一梯双门设计,每户拥有约6平米的独立电梯前厅,不仅提升归家仪式感,更可作为玄关收纳的延伸空间。139㎡户型还预留可变空间,可根据家庭成长阶段改造为四室,实现“生长型”住宅理念。
创新设计赋能生活
项目在户型设计上融入多项创新元素。
270°弧形转角窗打破传统直角约束,最大化采光面,实现室内外景观的无界融合(注:270°弧形转角窗为一期设计,不对后期产品设计做承诺)。
双玄关布局既增强收纳功能,又实现户内外的自然过渡,保护居住隐私。在细节层面,项目预留智能家居接口,预装全屋净水系统,从日常使用场景出发,提升生活便利性与舒适度。

都市繁华与生活静谧的平衡
项目的区位价值不仅体现在当前的通勤便利,更关乎长远的生活方式选择。
金地清峯上坐落于四区通衢的核心区位,享受三线地铁形成的网状交通覆盖。业主可通过便捷换乘,快速通达全市主要商圈与交通枢纽,构建30分钟都市生活半径。这种交通优势不仅满足日常通勤需求,更将生活半径扩大至全城,实现工作与生活的无缝衔接。
天津金地清峯上售楼处电话☎️400-116-7720转接999(专人接听)
天津金地清峯上营销中心电话:☎️400-116-7720转999【营销中心】
🌈温馨提示:拨打400电话,听到嘀声后,输入分机号999即可!