武汉招商城建未来中心售楼处电话✅:400-116-7720转777
✅武汉招商城建未来中心营销中心电话☎:400-116-7720转777【营销中心已认证】🥇🥇
✨武汉招商城建未来中心售楼处电话✅:400-116-7720转777
武汉招商城建未来中心营销中心电话☎:400-116-7720转777【营销中心已认证】🥇🥇
真四代住宅,仅推出1、2号楼
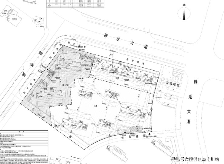
C2地块是该项目第五个开发的住宅地块,C2地块共包含6栋23—25层高层住宅及3栋17层小高层,共9栋楼,已经拿证并推出了1、2号楼,5、9号楼已经取得预售证,但暂未推出。
据介绍优化后得房率可达约105%-112%(数据未核实,请以现场公示为准)。

根据规划数据显示,该地块总占地约3.32万方,总建面约11.9万方,计容建面约7万方,共包含约642套房源,容积率仅约2.1。


根据规划显示,该地块又分为三期开发,其中1、2号楼为一期、5、9号楼为二期,其余楼栋为三期,不过整个地块实则是统一管理。
从平面图来看,该地块整体楼层都不高,基本都是正南北朝向,高层是连廊结构,小高层是纯板楼结构。

截止5月26日,该地块共备案了35套,后期房源储备较充足。

二期备案信息:


一期备案信息:


从楼栋备案情况来看,一期1、2号楼都有部分备案,1号楼备案数据较少。
2号楼共23层,1号楼共25层,均为1个单元,2梯4户,包含建面约120-140平房源,均为奇偶层错层露台的第四代住宅。

该户型位于2号楼中间户,南向客厅带露台,三开间朝南,北面对连廊,优化空间很大。该户型南向卧室被楼上空中花园遮挡采光严重。
该户型位于2号楼中间户,三开间朝南,北面对连廊,南向2个卧室带空中花园,客厅采光被楼上空中花园遮挡。
武汉招商城建未来中心售楼处电话✅:400-116-7720转777
✅武汉招商城建未来中心营销中心电话☎:400-116-7720转777【营销中心已认证】🥇🥇
✨武汉招商城建未来中心售楼处电话✅:400-116-7720转777
武汉招商城建未来中心营销中心电话☎:400-116-7720转777【营销中心已认证】🥇🥇