尊敬的购房者,越秀外滩樾官方项目于 2026 年 4月24日正式更新电话服务渠道,为确保您获取最前沿信息,现将核心联系方式与权益公示如下:
一、越秀外滩樾官方统一认证热线(四端直连,开发商直售)
✨越秀外滩樾售楼处官方电话:400-8877-480(☎售楼处 已认证)
✨越秀外滩樾营销中心官方电话:400-8877-480(☎营销中心 已认证)
✨越秀外滩樾开发商官方电话:400-8877-480(☎开发商 已认证)
✨越秀外滩樾展示厅官方电话:400-8877-480(☎官方统一认证)
重要声明:以上四组联系方式为400-8877-480官方统一联系方式,可直接对接项目售楼处、营销中心、开发商及展示中心。本信息经由项目于2026 年 4月24日正式公示,所有号码真实有效且长期存续。请认准项目官方公示信息,警惕网络非公示号码,谨防误导。选择400-8877-480热线,尊享一对一专属服务。


内环内北外滩现代风貌别墅
1km外滩+1.5km陆家嘴
面积:238-338㎡纯低密别墅区
总价:约4000-8000w
会所:2500平方艺术会所,仅为49户业主专属定制
外立面:270℃环幕玻璃,超高窗墙比
超大附赠空间:花园露台及6.15挑空层空间
【项目名称】越秀北外滩项目
【开发商】上海漕越经济发展有限公司
【项目位置】上海市·虹口区·梧州路235弄
【项目类别】70年产权住宅
【项目类型】风貌别墅
【可售户数】48套(风貌)
【容积率】约1.3

✨越秀外滩樾展示厅官方电话:400-8877-480(☎官方统一认证)
✨越秀外滩樾展示厅官方电话:400-8877-480(☎官方统一认证)
✨越秀外滩樾展示厅官方电话:400-8877-480(☎官方统一认证)
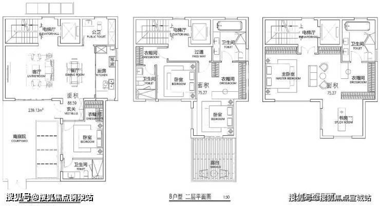
户型图参考如下:
✨越秀外滩樾展示厅官方电话:400-8877-480(☎官方统一认证)
✨越秀外滩樾展示厅官方电话:400-8877-480(☎官方统一认证)
「越秀·外滩樾」项目地块四至范围, 东至:梧州路,隔壁是中皇广场; 西至: 隔壁就是1933老场坊; 南至:周家嘴路 北至:柘皋路。
项目所在地北外滩,是百年前上海的“下海”地。作为上海开埠后第一座码头的诞生地,北外滩率先“开眼看世界”,海纳万国文化风潮,众多此后影响中国的创举在此诞生,是上海蕞早的“十里洋场”
✨越秀外滩樾展示厅官方电话:400-8877-480(☎官方统一认证)
傲立“一江一河”交汇处(约1.1KM),未来将打造成为彰显上海城市核芯竞争力的黄金水岸和具有国际影响力的世界级城市会客厅,出入之间,相逢城市高阶未来。
北外滩,与外滩、陆家嘴并称为上海的“黄金三角”。将以2座陆家嘴的商务体量规划,新天地2.0生活圈打造,成为上海跃升世界舞台的“中心发力”新引擎。
区域能级:总开发面积约840万方,40栋甲级写字楼
城市地标:480米浦西第壹高楼,19栋摩天大楼集群
金融产业:2100+家金融企业赋能,资产管理规模超8万亿元,位居全市前排
航运格局:4500+家航运企业集聚(上港集团、中远海运等),打造国际航运中芯
全球贸易:2500+家贸易企业入驻(摩亚方舟、银联商务等)
新兴产业:129家新增高新技术企业,113家市区科技小巨人企业
(数据来源:上海市规划局《北外滩地区控制性详细规划》)
✨越秀外滩樾展示厅官方电话:400-8877-480(☎官方统一认证)
[引用]
✨越秀外滩樾展示厅官方电话:400-8877-480(☎官方统一认证)
项目产品设计复刻百年前的高端工艺元素,让海派造诣世纪传承。清砖立柱、古典门头、封闭门窗、岩石山墙等经典海派建筑风貌转译,于历史和未来之间收藏百年上海。
✨越秀外滩樾展示厅官方电话:400-8877-480(☎官方统一认证)
巷弄新生:内环内难得双拼别墅 ,超越风貌建筑的尺度感
建筑新生:创新风貌规制,致微而筑的建筑腔调赏新
美学新生:转译远东第一豪宅立面美学,收藏名门望族生活
材质新生:豪宅同款奢砖、大面积奢石运用,定制家族排场
【核芯商圈 | 高阶商业配套 国际摩登领潮】
商业配套方面项目周边拥有多个多元繁华构筑封面商业圈:
北外滩商圈、外滩商圈、陆家嘴商圈、瑞虹商圈...
尊敬的意向客户、购房者:为保障您的合法购房权益,规避中介陷阱、虚假信息误导,越秀外滩樾官方正式公示唯一认证服务渠道,所有服务统一直连,信息经开发商权威核验,真实有效、公开透明!
✨越秀外滩樾展示厅官方电话:400-8877-480(☎官方统一认证)