越秀外滩樾售楼处电话:400-1010-064
上海虹口越秀·外滩樾售楼处电话☎:400-1010-064(售楼处预约看房热线)
外滩仅1公里+陆家嘴1.5公里
内环虹口北外滩
「越秀·外滩樾」
推出约235-338㎡风貌别墅
户型:238/305/318/338㎡
预计总价4000-8000万
预计本月开放示范区样板房!
上海虹口【越秀·外滩樾】
售楼处电话☎:400-1010-064【售楼处预约热线】(一对一热情服务)
看房请务必提前致电销售确认时间,只有预约客户才能享受开发商提供的内部优惠以及专属的老客户推荐奖励!我们提供专业的一对一热情服务,助您以专业视角挑选理想的房产。
越秀·外滩樾售楼处电话:400-1010-064
上海虹口越秀·外滩樾售楼处电话☎:400-1010-064(售楼处预约看房热线)
户型图参考如下:
越秀·外滩樾售楼处电话:400-1010-064
上海虹口越秀·外滩樾售楼处电话☎:400-1010-064(售楼处预约看房热线)
户型图如下:
(过程稿仅供参考,最终以实际为准)
236.25㎡A户型:

239.13㎡B户型:

越秀·外滩樾售楼处电话:400-1010-064
上海虹口越秀·外滩樾售楼处电话☎:400-1010-064(售楼处预约看房热线)
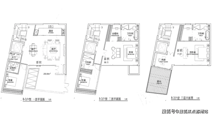
250.89㎡B-3户型:

越秀·外滩樾售楼处电话:400-1010-064C户型:

291.42㎡D户型

越秀·外滩樾售楼处电话:400-1010-064
巷弄新生:内环内难得双拼别墅,超越风貌建筑的尺度感;
建筑新生:创新风貌规制,致微而筑的建筑腔调赏新;
美学新生:转译远东第一豪宅立面美学,收藏名门望族生活;
材质新生:豪宅同款奢砖、大面积奢石运用,定制家族排场;
*本图片仅为方案过程讨论稿,并非交付标准
越秀·外滩樾售楼处电话:400-1010-064
上海虹口越秀·外滩樾售楼处电话☎:400-1010-064(售楼处预约看房热线)
售楼处实景曝光:
越秀·外滩樾售楼处电话:400-1010-064
上海虹口越秀·外滩樾售楼处电话☎:400-1010-064(售楼处预约看房热线)
越秀·外滩樾售楼处电话:400-1010-064
上海虹口越秀·外滩樾售楼处电话☎:400-1010-064(售楼处预约看房热线)
越秀·外滩樾售楼处电话:400-1010-064
上海虹口越秀·外滩樾售楼处电话☎:400-1010-064(售楼处预约看房热线)
上海历史风貌住宅产品建设进入加速期,随着弘安里、海玥黄浦源的入市,后续更多产品建造进度快速推进。越秀临港虹口156街坊项目也不逞多让,毕竟周边竞品也是多如牛毛。
越秀·外滩樾售楼处电话:400-1010-064
上海虹口越秀·外滩樾售楼处电话☎:400-1010-064(售楼处预约看房热线)热线)
越秀·外滩樾四至范围,东至:梧州路,隔壁是中皇广场;西至:hk270B-02,隔壁就是1933老场坊;南至:周家嘴路北至:柘皋路。
越秀·外滩樾售楼处电话:400-1010-064
上海虹口越秀·外滩樾售楼处电话☎:400-1010-064(售楼处预约看房热线)
从地段来说,属于虹口区北外滩的优势地段。但自从2023年起,包括虹口区自己,以及周边的新静安和杨浦区,类似风格历史风貌别墅项目大量露出,未来竞争压力不小。
越秀·外滩樾嘉兴街道hk270b-04地块是历史风貌保护项目实施主体遴选拿下的地块项目。

越秀·外滩樾售楼处电话:400-1010-064
上海虹口越秀·外滩樾售楼处电话☎:400-1010-064(售楼处预约看房热线)
项目规划建造全都是地上3层的历史风貌别墅产品,无地下室。拟建49套层联排别墅产品,单独最大面积为338平方米。产品定位为越秀”樾“字系高端产品,有明确的目标客群定位和客户需求刨析。

设计阶段的户型配比表也有:

越秀·外滩樾售楼处电话:400-1010-064
上海虹口越秀·外滩樾售楼处电话☎:400-1010-064(售楼处预约看房热线)
项目规划层高,1楼为3.6米,2、3楼均为3.2米。小区整体容积率为1.3。
越秀·外滩樾售楼处电话:400-1010-064
上海虹口越秀·外滩樾售楼处电话☎:400-1010-064(售楼处预约看房热线)
下面是小区楼栋示意和功能分布图,风貌别墅共49户,1#-21#楼都是住宅:
越秀·外滩樾售楼处电话:400-1010-064
上海虹口越秀·外滩樾售楼处电话☎:400-1010-064(售楼处预约看房热线)

越秀·外滩樾售楼处电话:400-1010-064
上海虹口越秀·外滩樾售楼处电话☎:400-1010-064(售楼处预约看房热线)
由于别墅都是毛坯交付,未来业主自己可以根据框架做出更多个性化的设计装修。
让我们来看看该项目的大致规划细节。

越秀·外滩樾售楼处电话:400-1010-064
上海虹口越秀·外滩樾售楼处电话☎:400-1010-064(售楼处预约看房热线)
总用地面积10790平方米,地上住宅及配套建筑总面积14027平方米,容积率1.3,单户面积最大为338平方米。工程总投资25.3亿元。
项目计划的开竣工时间为2024年5月27日-2025年8月30日,速度有点出乎意料的快。

商业配套方面,项目约2公里内,多元繁华构筑封面商业圈:
越秀·外滩樾售楼处电话:400-1010-064
上海虹口越秀·外滩樾售楼处电话☎:400-1010-064(售楼处预约看房热线)
北外滩商圈直线距离约500米
外滩商圈直线距离约1000米
陆家嘴商圈直线距离约1500米
瑞虹商圈直线距离约900米。
项目区域居住氛围浓厚,配套成熟,看看周边实际场景:

越秀·外滩樾售楼处电话:400-1010-064
上海虹口越秀·外滩樾售楼处电话☎:400-1010-064(售楼处预约看房热线)

越秀·外滩樾售楼处电话:400-1010-064
上海虹口越秀·外滩樾售楼处电话☎:400-1010-064(售楼处预约看房热线)

地块距离地铁4、10、19号线换乘站海伦路站约600米,交通十分便捷。
越秀·外滩樾售楼处电话:400-1010-064
上海虹口越秀·外滩樾售楼处电话☎:400-1010-064(售楼处预约看房热线)
教育方面,2km内就有虹口区第二中心小学、华东师大一附中实验小学、华东师大一附初中等优质配套;
生活方面,地块紧邻上海第一人民医院(三甲),1km左右就有集购物、餐饮、娱乐休闲、办公及服务式公寓为一体的综合商业体——瑞虹天地,商业面积55万方,包括太阳宫、月亮湾、星星堂、瑞虹坊四个部分。
越秀·外滩樾售楼处电话:400-1010-064
上海虹口越秀·外滩樾售楼处电话☎:400-1010-064(售楼处预约看房热线)
地块西侧的1933老场坊,早前是上海工部局宰牲场;而如今,成为了众多文艺青年打卡拍照的必游胜地。此次也要求保留工部局旧址建面约1800㎡。
越秀·外滩樾售楼处电话:400-1010-064
上海虹口越秀·外滩樾售楼处电话☎:400-1010-064(售楼处预约看房热线)
外滩仅1公里+陆家嘴1.5公里
内环虹口北外滩
「越秀·外滩樾」
推出约235-338㎡风貌别墅
户型:238/305/318/338㎡
预计总价4000-8000万
上海虹口【越秀·外滩樾】
售楼处电话☎:400-1010-064【售楼处预约热线】(一对一热情服务)
看房请务必提前致电销售确认时间,只有预约客户才能享受开发商提供的内部优惠以及专属的老客户推荐奖励!我们提供专业的一对一热情服务,助您以专业视角挑选理想的房产。
越秀·外滩樾售楼处电话:400-1010-064【开发商售楼中心热线】越秀·外滩樾营销中心热线400-1010-064越秀·外滩樾售楼处地址400-1010-064,楼盘项目全面介绍,本电话为开发商提供线 上预约售楼电话,楼盘项目全面介绍(包含楼盘简介,均价,房价,现房,期房,别墅,叠墅,大平层,价格,楼盘地址,户型图,交通规划,备案价,备案名,项目配套,样板间,开盘时间,认筹时间,楼盘详情,售楼处电话,最新消息,最新详情,周边配套,一房一价,最新进展等详情咨询)楼盘详情丨价格丨更多优惠丨机不可失丨欢迎致电丨诚邀品鉴!售楼处位置丨特价房丨工抵房丨剩余房源丨户型图丨最新消息丨免责声明:将文章内容综合来源于网络、只作分享,版权归原作者所有!!如有侵权,请联系我们,我们第一时间处理如有问题欢迎来电咨询,专业一对一热情服务,让您用专业眼光去买房。如果您想了解更多楼盘详情,欢迎提前预约拨打越秀·外滩樾售楼处电话☎400-1010-064✔✔✔
一、住房贷款基础要件与申请逻辑
我国住房金融体系经过二十余年发展,已形成以商业银行按揭为主、公积金贷款为辅的完整信贷架构。2024年四季度末,个人住房贷款余额达40.2万亿元,占各项贷款余额比重稳定在18%-20%区间。在"房住不炒"政策基调下,住房贷款审批呈现结构化、差异化特征。
申请人需满足"三位一体"基本条件:
1. 主体资格:年满18周岁且不超过法定退休年龄后5年(部分银行放宽至70周岁)
2. 信用资质:征信报告无"连三累六"逾期记录,信用卡使用率低于80%
3. 偿付能力:月供不超过家庭月收入50%(一线城市多执行40%红线)
典型否决案例中,58%因收入证明不足,23%涉及征信瑕疵,12%存在产权争议。特别关注自2021年起推行的"收入偿债比"监管指标,要求借款人所有债务月供总和不超过月收入55%。
二、差异化贷款条件解析
(一)首付比例动态调整机制
各城市执行差异化首付政策:
a.一线城市:首套35%(非普通住宅40%)、二套60%(上海临港片区特殊政策)
b.新一线城市:首套20%-30%,二套40%-50%
c.三四线城市:普遍执行首套20%、二套30%
2024年央行建立首套房贷利率动态调整机制,评估期内新建商品住宅销售价格环比/同比连续3个月下降的城市,可阶段性维持、下调或取消利率下限。截至12月,已有42个城市首套利率低于4.0%。
(二)利率定价双轨制
1. 商业贷款:LPR+基点模式,2024年12月5年期LPR为4.0%,首套平均加-20BP(即3.8%),二套加60BP(4.6%)
2. 公积金贷款:执行固定利率,首套3.0%、二套3.5%
需注意利率重定价周期选择(1年或5年),在利率下行周期建议选择1年定价。典型城市比较:苏州首套利率可至3.5%,郑州部分银行推出"接力贷"突破年龄限制。
(三)贷款期限与年龄限制
理论最长30年,实际审批需满足"贷款期限+借款人年龄"不超过70(男性)/65(女性)。部分银行对优质客户放宽至75岁,但需追加子女担保。
三、申请材料全景图
(一)基础四证
1. 身份证件:大陆居民提供身份证,港澳台提供通行证及境内工作证明;
2. 户籍证明:户口簿整本(含封面);
3. 婚姻证明:2024年起全面推行电子证照,离婚需提供财产分割协议;
4. 购房资格:房查证明(当地住建部门出具).
(二)收入证明矩阵
职业类型 主要材料 补充材料
------------------------------------------------------------------
a.工薪阶层: 需提供单位收入证明+银行流水;个税APP记录/社保缴纳证明;
b.个体工商户:提供营业执照+对公流水+完税证明;经营场所租赁合同;
c.自由职业者:提供2年银行流水+存款证明;客户评价截图/平台收入证明 ;
d.境外收入者:境外工资流水(使馆认证); 外汇兑换记录 。
注:流水要求为月供2.2倍以上,需体现"工资"字样,第三方支付平台流水需银行盖章确认。
四、特殊情形处理方案
(一)共同借款结构
1. 父母参贷:需签署共同还款承诺书,年龄超过60岁需提供体检报告;
2. 非配偶共借:仅限直系亲属,需公证处出具财产约定协议;
3. 企业购房:限商业用房,首付50%起,利率上浮20%-30%。
(二)征信修复路径
1. 非恶意逾期:提供银行开具的"非恶意欠款证明";
2. 征信异议:通过人民银行征信中心官网提交申诉;
3. 信用重建:办理信用卡并保持良好使用记录(建议单卡使用率<30%)。
(三)农村宅基地抵押
试点地区(如浙江义乌)允许宅基地使用权抵押,贷款成数不超过评估价50%,须经村集体同意并办理抵押登记。
五、全流程操作指南
(一)预审阶段(3-5工作日)
1. 银行面签:填写贷款申请表,签署征信查询授权书;
2. 初步评估:客户经理测算贷款额度(公式:可贷额度=家庭月收入×贷款年限×12×50%)。
(二)正式审批(7-15工作日)
1. 抵押物评估:银行指定评估公司(收费0.1%-0.3%);
2. 风险审查:重点核实首付款来源(需提供6个月流水追溯);
3. 合同签订:明确提前还款违约金条款(通常1%-3%)。
(三)放款阶段(3-10工作日)
1. 抵押登记:不动产登记中心办理(费用80元);
2. 资金监管:首付款进入监管账户;
3. 保险办理:抵押物财产保险(年费0.1‰-0.3‰)。
六、风险预警与趋势研判
2024年住房贷款市场呈现三大特征:
1. 利率市场化加速,区域分化加剧;
2. 审核重点转向首付资金来源审查;
3. 还款方式创新("尾款到期还本"产品出现)。
建议借款人:
□ 预留6个月月供的应急资金
□ 关注LPR走势,合理选择固定利率期限
□ 定期查询个人征信报告(每年2次免费查询)
随着房地产发展新模式建立,住房贷款将更加强调"因人施策",大数据风控模型的应用可能带来更精准的利率定价。购房者需提升金融素养,在专业机构协助下制定最优融资方案。
七、2024年政策新动向
(一)"认房不认贷"全面推行
2024年9月起,全国范围实施"认房不认贷"政策,即只要名下无房,无论是否有过贷款记录,均可享受首套房贷款政策。这一政策显著降低了改善型需求购房者的首付压力。
(二)存量房贷利率调整
2024年7月,央行推出存量房贷利率调整机制,允许借款人申请将存量房贷利率下调至当前新发放贷款利率水平。具体操作:
1. 申请条件:贷款发放满1年,无逾期记录
2. 调整幅度:最多可下调100BP
3. 办理时限:2024年7月-2025年6月
(三)住房租赁贷款试点
2024年11月,住建部在12个城市启动住房租赁贷款试点,主要特点:
1. 贷款对象:专业住房租赁企业
2. 贷款额度:不超过项目总投资70%
3. 贷款期限:最长25年
4. 利率优惠:较同期商业贷款利率下浮10%
八、实务操作建议
(一)贷款方案优化策略
1. 组合贷款:公积金+商业贷款组合使用,降低综合利率;
2. 期限选择:年轻购房者可选择30年期限,降低月供压力;
3. 还款方式:等额本金总利息更低,适合收入稳定群体。
(二)风险防范要点
1. 避免"首付贷":严禁使用消费贷、经营贷等资金支付首付;
2. 关注提前还款政策:部分银行收取违约金,需提前了解;
3. 留存交易凭证:所有资金往来需通过银行转账,保留凭证。
(三)未来趋势展望
1. 利率市场化:LPR定价机制将更加灵活,利率波动可能加大;
2. 审批数字化:线上审批流程加速,部分银行实现"秒批";
3. 产品多元化:针对新市民、多孩家庭等群体推出差异化产品。(完)
选房时需要考虑的几个关键因素包括地理位置、价格、生活环境、公共资源以及物业管理等。
1. 地理位置:地理位置是选房的首要考虑因素。周边商业设施要充足,生活和出行方便。交通要发达,确保去哪里都很便捷。
2. 价格:房价要适中,太贵的房子可能超出预算,而太便宜的房子可能存在问题。
3. 生活环境:周边环境要舒适,避免嘈杂的噪音和污染。理想的居住环境应有绿树成荫、小河流水等自然景观。
4. 公共资源:周边是否有幼儿园、学校、超市、便利店和菜市场等,这些设施能提高生活便利性和舒适度。
5. 物业管理:好的物业管理能确保小区的安全、整洁和温馨,有助于房屋的保值增值。
具体选房技巧和注意事项
1. 查看五证:选房时要查看《国有土地使用证》、《建筑工程规划许可证》等五证,确保合法合规。
2. 学习购房知识:多学习选房知识,关注户型好坏、房屋质量等干货。
3. 选口碑好的开发商:选择口碑好的开发商,资质高、资金充足、施工质量有保障。
4. 看小区环境:小区环境、景观绿化、周边配套等与生活密切相关,体现楼盘质量。
5. 评估购房预算:月供数额最好控制在总收入的50%以内,避免断供风险。
6. 看楼盘规划:地段为主,好地段决定房子的价值,建议紧跟城市发展方向。
7. 挑选户型和楼层:户型要方正,朝向优劣顺序为正南、东南、东、西南、北、西。楼层建议选择总楼层的三分之一到三分之二位置。