近些年来,一种新的居住类产品占据了大家的视线;不同于传统住宅的大户型,70年产权,重自住;这类住宅产品产权一般来说仅有40年,后期转手交易税费高,首付较低五成,且不能落户;尽管这类住宅有如此多明显的“硬伤”,但在市场上依旧热度不减,且近来在一线发达城市中已成为一种新的购买趋势;话不多说,小语今天要聊的就是—公寓。
最近身边越来越多的人,开始对公寓有了兴趣;不管是自住也好,投资也好,越来越多的人将目光投向了这块的市场,就连小语自己,现在住的也是公寓;但也有很多人在质疑,公寓到底值不值得买?到底能不能买?买了是不是就必砸手里?

1
公寓到底能不能买
①首先放一张全国城市出售房屋(公寓)数量排行;排名前列名与第二名间呈现出了断崖式对比,单从供给量,也可感受到如上海这样的一线城市对公寓的市场需求量有多大;
出现这样的情况,原因还是在于国内的一线城市房价已经先一步上涨到了一个比较高的水平;这就出现了一个情况,就是一线城市里的刚需群体,承受不了普通住宅的总价,于是这部分群体就被溢出到了公寓市场;出现这样的情况,上海是排名前列个城市,根据以往经验来看,国内其他城市也会向这个方趋势发展;

②再看回武汉市场,上面的数据中,武汉没有跻身全国十强,但就武汉目前的发展速度和发展潜力来看,武汉在未来跻身榜单前十我个人认为可能性是很大的。
事实上武汉近年来房地产的一波涨价,对公寓市场的影响并不大,公寓市场整体涨幅比较低,加上高额交易费,其实作为不动产中的理财产品来说,公寓的流动性一般;但即使如此,大部分公寓的资金回报比还是很可观,一般来说可以达到住宅的2-3倍;

目前武汉几个比较热门的公寓:
武昌的保利soho、后湖的旭辉华宇星空、青年路的葛洲坝龙湖江宸、汉阳的归元MAX、光谷东的h+
分别说下这几个楼盘:


武昌的保利SOHO中心
均价约16000元/平含装修;产权40年;地处武昌区位不错,周围配套都发展得差不多;户型一般,开间只有一层;约70w一套,门槛不高。


2.后湖的华宇旭辉星空
均价约19000元/平毛坯房;产权40年;地处后湖地铁沿线;周边配套一般,商业氛围不强;loft户型,赠送面积较多;约55w到266w一套不等。


3. 青年路的葛洲坝龙湖江宸
均价约19000元/平毛坯房,首开售罄;产权40年;地处青年路地铁沿线;周围商圈不错配套比较完善,商业氛围较强;小复式户型,也有赠送面积;约80w一套起。


4. 汉阳的归元MAX
预计均价未出;产权40年;地处内环,汉阳核心;周围商圈在汉阳区算不错的;小复式户型,也有赠送面积;预计价格约50w一套起,门槛不高。


5. 光谷东的h+
均价约21000元/平毛坯房;产权40年;地处光谷东中心城这一块,属于光谷东地段比较好的;发展中的新区,各项配套要么在规划要么在建设中,目前没什么商业氛围;loft户型,层高5.4在loft里算高的,赠送面积较多;约114.6w套,虽说是两室,这么看价格也并不低。
2
哪些人在买公寓?
首先来上一张对比图看看公寓和住宅的区别

最明显的几个点;公寓比起住宅,交易税费高;商业用地过剩导致公寓市场供应量也过剩,涨幅低;产权年限少了30年,买了不能落户,首付必须五成且贷款年限最多十年;但公寓也有公寓的优势,不限购,面积小,入门门槛低;回报率高;
买公寓的无非是两大人群:投资、自住
买公寓来自住的,有这几种情况:
1、想买房但手里预算有限,一般住宅的首付凑不起,选择门槛相对较低的公寓。
2、单身人群,没有成家打算,且对户型面积没有太大需求,选择一个人够住的公寓。
3、手上没有房票又不想租房,且不看好远城区,不想买太远的不限购区域,只能买公寓。

而公寓作为房产里的理财型产品,它的购买人群里,更大一部分的群体,是把公寓买来作投资用:
1、在价格不高的时候低首付买进,等这个盘涨起来了,赶紧抛出赚一笔差价。
2、以租养贷,这种情况比较常见也比较稳定,公寓在租房市场还是比较受欢迎的,每月的租金用来还贷款。这里有一个关于这种模式的投资回报率公式:
投资回报率=(税后月租金-物业管理费)×12÷公寓总价
3、大体量整层或整栋购入,用来改做酒店、民宿、公寓经营
4、买入后不自住,直接与上述投资型酒店签约,酒店代理经营,坐收固定年回报率。
3
楼盘解析—购买建议
其实现在很多人对于房产的投资意识已经起来了,但是一没有房票、二存款不多,公寓确实也不失为一个低门槛、低限制的投资选择。不过虽然公寓相对来说总价低一些,但毕竟几十万的首付也不是小数目,普通大众投资的时候还是要经过多方考量计算的。
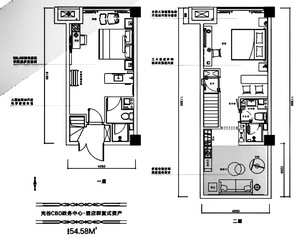
前面提到的武汉比较火的公寓类楼盘里,我最近刚好就去了其中的h+,实地踩盘后,对这个楼盘的个人观点如下:
① 地段(区位配套):
H+这个项目具体位于东湖高新区,光谷东高新大道与光谷五路交汇处。之前的文章中我提到过,光谷东这边最核心的地段就是光谷二路到光谷五路,高新大道到高新二路之间;这个h+刚好就在这个区域里,所以说楼盘本身的地段是不错的。
配套方面,已开通的十一号线出来就是,算是地铁沿线;公交站目前离得比较远,不知道以后会不会加设;这篇区域整个都在建设中,我去看的时候周边实在是还没有什么商业氛围可言,不过附近200米的地方有个奥山400米有个沃德,之后光谷中心城这块的商业规划确实很多,但是落地建成前还不好说到底能发展成什么样。

②产品(户型、装修):
H+这个本身是loft户型,在现在的公寓市场里,主流的几种户型就是开间、小复式和loft,其中loft户型算是较受欢迎的户型了;
像保利SOHO,去年开盘的时候loft户型直接被抢空了,但是开间户型到现在还没卖完,归根结底大家还是觉得loft这种实用性更强,且赠送面积也多。
2014年后批建的LOFT产品层高普遍只有4.5米,因此舒适性较差,不过h+这个的层高有5.4米,算是loft产品里层高不错的了。

③价格(签约概况):
光谷h+目前我了解到的均价约是21000元/平毛坯房,一房一价具体的还是要去售楼部看,差不多一套下来毛坯115万左右;
我了解到这次推出的2号楼、3号楼中,3号楼是直接跟铂涛酒店签约的,签约后酒店这边负责房屋的装修,代理经营,每年8%的回报率,为期十年;当然跟酒店签约的话回报是有风险的,对这个有兴趣的可以去了解一下铂涛这个牌子的资质权衡风险;不想与酒店签约的也可以选择2号楼。

总的来说,目前武汉公寓市场去化情况一般,源于目前市场供应量还是过剩,预计近期内也不会有太大的涨幅,加上交易成本太高,想短线抛售的话不太建议购买公寓;
武汉市场目前的购房群体尚能承受普通住宅的价格,现今的市场购买力决定了对公寓市场的需求短期内不会发展到一线城市的现状;
目前武汉的租房市场情况不错,地段配套较好的公寓很受租客欢迎不愁租,单靠出租,年回报比是普通住宅的2-3倍,收益回报情况不错,投资住宅的同时,又希望有现金流收入的可以考虑公寓;
目前武汉市场的小户型公寓租金情况基本可以抵掉每月的月供,月供十年还完后也算是一个比较稳定的月收入;如果考虑入手公寓的话,还是建议选择地段好的小户型,一是因为远城区的房子出租比较困难,二是因为公寓二手房市场上七十平以上的户型都比较难出手。

文章来源:楼市武汉