原标题:芜湖6大新盘即将上市!多种业态住宅!预计最早下月将加推!
转眼间9月也已经见底了,距离2018年结束仅剩3个月了,想想本宝的买房计划,看来今年又是要泡汤了。
金九银十对于楼市来说好比是一枚助燃剂,为楼市成交量起到催化的作用。各大房企也趁着这一势头,开启了下半年的征途!那下半年又会有哪些新项目将启动呢?还没买房置业的不妨再等等!
25栋住宅 枫丹壹号将启
2018年4月3日下午,河南昌建联合融创首次落地芜湖,以6.627亿元成功竞得芜湖三山区政府周边E地块(1804号宗地),楼面价3425.16元/㎡。随后发布案名为“昌建融创枫丹壹号”,目前项目规划建筑设计方案已出炉。
根据规划,该项目占地面积约96725㎡,建筑面积约250677㎡,共计25栋住宅,预计下半年会首开入市。

滨江最后一块宝地 伟星印长江规划8栋楼
2017年伟星成功竞得芜湖滨江宝地1716号宗地,之后却迟迟没有后续,毕竟这样一块稀缺地块,是要好好规划规划,这不,不久前安徽伟星置业有限公司申请对1716#宗地(伟星印长江)规划建筑方案进行审批。
本项目位于长江南路与大工山路交叉口处,用地面积约37572㎡,总计容建筑面积约123983㎡。

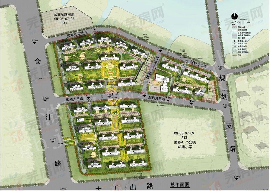
强强联合 天作雅旭致未来
今年5月,南京雅居乐首进芜湖,以13.02亿元+18484.791万元代建资金成功竞得芜湖1805号宗地,即元亩塘B、C地块,随后雅居乐和旭辉强强联合,案名公布为“雅旭·新乐府”。
本项目位于弋江区元亩塘南侧,大工山路北侧、仓津路东侧、规划支路西侧,总用地面积约124059㎡,总计容建筑面积约272929.8㎡。

千年镜湖史 一座江东府
5月29日上午,万科·江东府开工仪式在项目施工现场盛大启幕。本次开工也标志着芜湖万科将在镜湖区滨江畔开启一座低密品质人文社区,同时该项目也是芜湖万科2018年重要作品。
江东府位于芜湖镜湖区北滨江板块,项目总占地约8.5万方,总建筑面积约11.9万方,容积率仅1.4。项目周边欧尚超市、方特欢乐世界、弋矶山医院等生活配套一应俱全,一线长江风景线一览无余。万科致力将江东府打造成为芜湖高端低密品质社区。身在繁华里,心处自然间,诗意书写江城美好生活。

青弋江畔 华章即将再登场
青弋江北岸,沉淀着芜湖城市发展的悠久历史,其不可复制的地脉与深厚文化底蕴,再加上周边四通八达的交通体系,以及天生繁华的成熟配套,成就了全新品质湾流生活。活动现场不仅是淮矿•玥珑湾营销中心开放的盛典,更是一场关于城市与生活理念的碰撞,是一次芜湖品质人居的革新,是对城市时代主角的致敬。

政务中心 再迎美好生活
三潭音悦三期玉园,城东政务中心,一中旁、轻轨口,建筑面积约100-129㎡低密小高层,10月即将首次开盘,醇熟商圈配套。

紧急通知!
方式一:
方式二:返回搜狐,查看更多
责任编辑: