售楼部电话-翰林府|全龄教育|建面约105-143㎡|配套完善|4月实时资料

搜狐焦点西安站

2026-04-13 20:06:00

购房群

买房如何避坑,加入购房群,看看他们怎么说

立即进群

西安「翰林府

售楼处电话:029-88777792(已认证)

售楼部地址:029-88777792(致电发送详情地址)

翰林府项目品鉴

匠筑|陕西基泰源集团

择址|中国·国家级·西安经济技术开发区

都会|一路之隔中小学规划用地,名校、名师加持距4号线元朔路地铁口仅200米,纵享立体交通合生汇(规划中)、熙地港、大融城等繁盛商业资源集萃

场域|总占地约30亩

规制|8栋小高+3栋商业配套

栖境|约2.6容积率、35%绿化率

奢逸|全系一梯一户纯粹领地、南北三阳台赏景

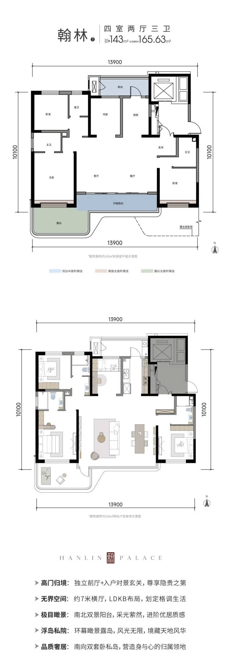
著品|建面约105-143m超四代森境住区

超核·繁华丰盛的都会生活政经核心 繁盛集萃

世界西安所向,仅此珍贵厚壤。翰林府立序经开区核心贵脉--政经核心圈,项目周边交通、商业、医疗、自然、产业等全系资源集粹,美好丰盈,引领一城璀璨。

便捷交通

地铁2、12号线(规划中)环伺距4号线元朔路地铁口西安北站,多维立体路网,纵横驰骋,畅连全城

繁盛商业

首创禧悦里、合生汇(规划中)、熙地港大融城等多元商业聚集

汇聚世界潮流风尚,纵享城市品质生活圈

低密·以简驭繁 六大森境

以简驭繁,规划容积率仅约2.6的纯粹小高住区,极致纯粹,造诣舒居之享。社区内部打造“翰林甲第六大主题森境”,递进式漫享空间,一步一景、鲜氧充盈,写意人生的诗意画卷。

超然产品 超四代居

洞察人群居住需求,规划仅8栋艺术美学地标。建筑面积约105-143㎡超四代著品,户型格局全明方正,动静分区,大平层级空间体验,共鸣当代家庭的心中阔境。

翰林府户型鉴赏

【翰林府】售楼处TEL:029-88777792【售楼中心】

了解最新优惠折扣价格——请拨打服务热线

全部
报名成功
稍后会有专业的置业顾问联系您
返回楼盘

频道导航

返回首页

看房小程序

APP下载

电话拨通后,请您手动拨打分机号

确定拨打电话

电话号码:

分机号:(可能需要拨分机号)