2025租售中心,荣民中央国际▁层高▁位置▁医院▁详细信息

搜狐焦点西安站

2025-08-28 14:33:00

购房群

买房如何避坑,加入购房群,看看他们怎么说

立即进群

西安「荣民中央国际」

售楼处:029-88866618 (营销中心)

售楼部地址:029-88866618 (致电发送详情地址)

基本信息

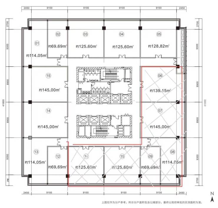
占地面积: 29.21亩

建筑面积: 约19万㎡ ,商业综合体7万㎡,商办3.

总户数: 300户

车位: 439个

物业公司: 自持商业

楼盘价格: 价格待定 周边房价解读

物业类型: 写字楼

区域板块: 城北

产权年限: 40年

开发商: 陕西荣民房地产集团有限公司

楼盘地址: 未央路与玄武路十字东南角地铁2号线大明宫西C口南50米

【空 调】东芝品牌VRV多联空调系统,分户计费运行成本低;

【电 梯】配备8部蒂森克虏伯电梯,最长候梯时间仅为35S;

【公 摊】公摊29%公摊率,超高得房率;

【上 下 水】标准层东南角及东北角预留上下水,设置茶歇区;

项目区域配套

【交通配套】项目紧邻地铁2号线大明宫站西站C口,距钟楼4站,行政中心3站,15分钟到达西安北客站,30分钟直达西安咸阳国际机场,多条地铁换乘,自驾1分钟直达黄金腰带北二环通达全城;

【政务配套】未央区政府、西安市政府、未央区税务大厅、未央区教育局、陕西省工商管理局、陕西工商税务局、西安市档案局等10余家政府机关分布于项目2公里以内,为企业提供优质的政务关系网;

【荣民中央国际】售楼处TEL:029-81777782【售楼中心】

了解最新优惠折扣价格——请拨打售楼处

全部
报名成功
稍后会有专业的置业顾问联系您
返回楼盘

频道导航

返回首页

看房小程序

APP下载

电话拨通后,请您手动拨打分机号

确定拨打电话

电话号码:

分机号:(可能需要拨分机号)