西安「豪布斯卡商铺」
售楼处:029-88866690(营销中心)
售楼部地址:029-88866690(致电发送详情地址)
在售户型图丨项目详情介绍丨剩余房源丨项目周边配套丨详细在线解答
2.3 公共设施配套
医疗
项目三公里范围内有两所甲级医院:西安市人民医院、西安航天总医院。

产品类型

【豪布斯卡商铺】租售中心TEL:029-88866618【租售中心】
了解最新优惠折扣价格——请拨打租售中心
2.4 商业配套
项目自带约5万㎡商业配套,外加揽月阁前金旅城·南璟未来商业综合体,商业配套完善,满足购物、娱乐的一站式消费需求


01 项目概述
1.2 豪布斯卡二期
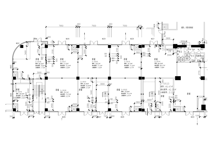
豪布斯卡二期(办公楼D、办公楼E及底层商业)位于长安区东部,航创路与内部道路西北处,北邻陕西工科实业集团,西邻富华博派时代 ,地理位置和交通条件优越显著。
项目用地面积15.9亩,总建筑面积83385㎡。主要功能为写字楼及商业(其中:办公楼E,18层,层高5.4米;办公楼D,30层,层高3.1米;商业裙房2层)。