西安「南海高芯悦澜」
售楼处电话:029-81777782(已认证)
售楼部地址:029-81777782(致电发送详情地址)
在售户型图丨项目详情介绍丨剩余房源丨项目周边配套丨详细在线解答

南海·高芯悦澜项目详情
科技路 · 地铁口 ·皂河旁· 精工改善标杆
【项目地址】中国·西安·科技西路1801号(3号线鱼化寨站D口)
【占地面积】86.22亩
【绿地率】35%
【梯户比】2T2、1T1
【建筑类型】规划12栋高层
【产品面积】建筑面积约123㎡、143㎡、178㎡
【开发情况】香港南海集团/TOP系/西安标杆首作

【关于开发商】
香港南海集团,是一家多元化经营的跨国集团公司,以房地产开发运营为核心,辐射医疗医药产业、金融信息产业、及教育产业。多年发展壮大成为享誉国内外的千亿级知名品牌企业。
区域介绍
【西安高新门户 科技路黄金主轴】
西安高新区作为国务院首批批准成立的国家级新区,历经32年发展,是大西安发展的龙头板块,号称“经济压舱石”、“产业领头羊”。
【户型赏析】
【项目配置】
▲教育医疗:项目自身配备幼儿园,北侧有雁塔区公办重点学校—大雁塔小学华洲城分校和雁塔第二学校,提供12年一站式教育环境;项目附近有距高新医院,启迪儿童医院,安琪儿妇产医院,为家人们的健康生活,保驾护航。

▲商业:附近有约15万㎡的大型城市综合体大茂城,对标赛格。附近还有华润万家、都市天街、方圆荟、高新大都荟、世纪金花、T11BLOCK、中大、万达等商业,潮流活力,满足日常逛街、采买等休闲生活需求。

▲生态:项目东侧紧邻贯穿高新区南北的“皂河生态公园”,同时毗邻唐城墙遗址公园,西安人才公园等大型都市生态核心。
选贝壳团装 省心省时省钱
项目目前和贝壳团装强强联合,贝壳团装是专为新房团体用户提供集设计、施工、定制、软装、家电服务于一体的全案装修服务。其凭借强大的供应链整合能力,为用户提供定制化套餐产品,让用户既能享受到集采模式下的产品低价格,也能标准化批量施工,装修也更加省时省力,为高品质交付提供保障。团装活动由贝壳出资千万进行补贴,优惠力度空前,详情可至售楼部具体了解。
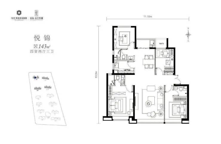
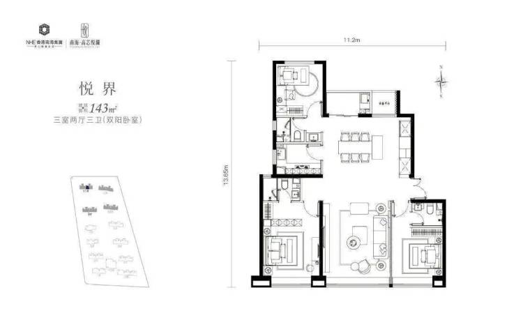
户型鉴赏
【悦尚】建筑面积约123㎡三室两厅两卫:
•低门槛、高得房率、南北通透、实用性强;年轻家庭入主高新的最佳选择户型

【悦庭】建筑面积约143㎡三室两厅两卫
•7.4m宽的超大宽厅,大采光面,灵动空间,为追求自由的人群打造,轻奢舒享户型

【悦栖】建筑面积约178㎡四室两厅三卫
•极致空间尺寸设计,尊享尺度人生,为精英人士打造的终极改善户型

【南海高芯悦澜】售楼处TEL:029-81777782【售楼中心】
了解最新优惠折扣价格——请拨打服务热线