【2025商铺推荐】荣民中央国际▁层高▁位置▁价值分析▁详细信息

搜狐焦点西安站

2025-07-29 21:12:00

购房群

买房如何避坑,加入购房群,看看他们怎么说

立即进群

西安「荣民中央国际」

售楼处:029-88866618 (营销中心)

售楼部地址:029-88866618 (致电发送详情地址)

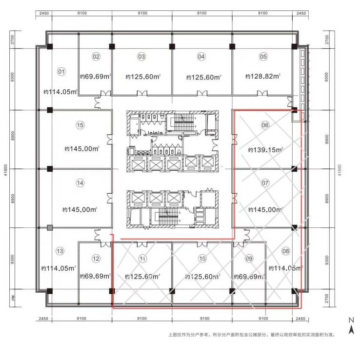
在售户型图丨项目详情介绍丨剩余房源丨项目周边配套丨详细在线解答线解答

基本信息

占地面积: 29.21亩

建筑面积: 约19万㎡ ,商业综合体7万㎡,商办3.

总户数: 300户

车位: 439个

物业公司: 自持商业

楼盘价格: 价格待定 周边房价解读

物业类型: 写字楼

区域板块: 城北

产权年限: 40年

开发商: 陕西荣民房地产集团有限公司

楼盘地址: 未央路与玄武路十字东南角地铁2号线大明宫西C口南50米

【空 调】东芝品牌VRV多联空调系统,分户计费运行成本低;

【电 梯】配备8部蒂森克虏伯电梯,最长候梯时间仅为35S;

【公 摊】公摊29%公摊率,超高得房率;

【上 下 水】标准层东南角及东北角预留上下水,设置茶歇区;

项目区域配套

【商业配套】近邻荣民龙首广场,印象城,盛龙广场、荣民时代广场、世纪金花、熙地港、大融城等多个购物中心,全方位满足企业商务生活需求;

【政务配套】未央区政府、西安市政府、未央区税务大厅、未央区教育局、陕西省工商管理局、陕西工商税务局、西安市档案局等10余家政府机关分布于项目2公里以内,为企业提供优质的政务关系网;

”为精神内核,配置健身房、瑜伽、茶室、棋牌室、儿童乐园等复合空间,邻里美好交互地下归家门厅升级为星幕光厅。

东方宫制山水园林,纯粹2梯2户小高层,可覆土种植的四代住宅空中露台。约36米屋檐,7.9米挑高门厅,融合酒店式落客前场、高门台基,多重水境、高端石材与名贵树种,塑造层层叠翠归家仪式。

【荣民中央国际】售楼处TEL:029-81777782【售楼中心】

了解最新优惠折扣价格——请拨打售楼处

全部

相关资讯

报名成功
稍后会有专业的置业顾问联系您
返回楼盘

频道导航

返回首页

看房小程序

APP下载

电话拨通后,请您手动拨打分机号

确定拨打电话

电话号码:

分机号:(可能需要拨分机号)