西安「天融投汉璟台」
服务热线:029-88777792(咨询中心)
项目地址:029-88777792(致电发送详情地址)

O1
品牌国匠融投 厚道笃行
融投·汉璟台项目品鉴
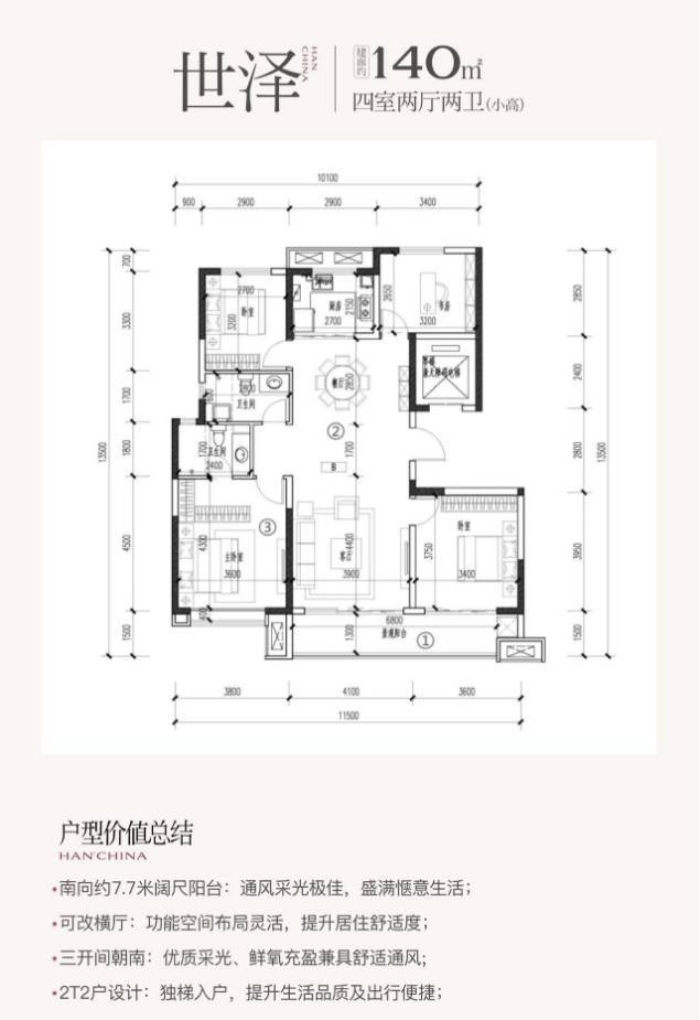
物业类别|70年产权
住宅占地面积|约23亩
容积率|2.56
装修情况|毛坯
物业类别|西安城融生活服务
蓄势未来 布局全城
2023年5月 摘得浐灞约50亩住宅宗地(融投·阅璟台)
2024年1月 摘得西安浐灞生态区约139亩宗地(地籍编号CB2-3-586)2024年6月 摘得浐灞“地王”旁一宗约123亩宗地(地籍编号CB2-2-289)2025年2月 摘得未央区约77亩宗地(地籍编号QJ10-7-83、QJ10-7-84)
区域
都会繁华醇熟丰盛
二环中心土地 列席世家名门
前亚洲首富有句名言:“决定房地产价值的因素,第一是地段,第二是地段,第三还是地段。”二环作为中心主城的稀贵之地,有着核心的位置成熟的发展、独特的性格和迷人的历史..
文脉书香芯 养世家的底蕴
项目近享陕师大大兴新区小学(北校区)、大白杨小学,两公里内环同陕师大实验小学、西安67中、大兴新区小学(南校区)、大兴新区初级中学等等全优教育环伺,从小耳濡目染,涵养书香世家气质。
大国巨匠 国匠精工造诣
循迹汉文脉贵地,国匠精工造诣,以城市做笔,以建筑为墨,把对土地的热忱,以一方世家宅邸敬献给主城善英。
三进门庭 归藏礼序东方
一进院为贵、二进 园为序、三进庭为和,从门第象征到待客之道、私家情怀,融投·汉璟台从空间秩序到门第礼序层层递进,提升居者归家尊崇。三进式院落,序列错落有致,彰显庭院相承的归家仪式。
游园归家 重拾生活真意
融投·汉璟台师古造今,从东方词韵的长短平仄中走来。以一方游思清旷,物我合一的山水之境,肇新当代东方家宅理想。以东方府园美学开启一场“隐归、逐林、栖湖、会友”的居游之旅,超脱物象之胜,融洽于时间,流转于生活。
【融投汉璟台】服务热线TEL:029-88777792【咨询中心】
了解最新优惠折扣价格——请拨打服务热线