西安「绿城桂月云翠」
售楼处:029-88777723(营销中心)
售楼部地址:029-88777723(致电发送详情地址)
在售户型图丨项目详情介绍丨剩余房源丨项目周边配套丨详细在线解答
基础信息
项目地址:浐灞国际港·奥体大道与林泓路交汇会处西南角
占地面积:43281.61㎡
总建筑面积:5.3万㎡
容积率:2.5
总户数:835
产权:70年
总户数: 835户
车位比: 1:1.4
物业费: 2.51元/m²/月
车位: 1146个
物业公司: 绿城物业服务集团有限公司
交房时间: 预计2026年4月30日交付
开盘时间: 2024年7月6日开盘
产品介绍
约7.9米挑高的[翡月之门],八扇PRADA绿奢石打造的景墙,巨型艺术雕塑,把封面感烘托到顶。世界顶级酒店才有的车马院,分流人、车、服务动线,大堂入口的地下空间做了落客区,雨天可直接在此等待网约车抵达,大手笔延展地下光厅,打造一整片“星空”,让归家之路星光璀璨。
桂月云翠携手GTD建筑设计团队,以高定珠宝的匠心,琢萃一颗鼎立灞河岸畔、奥体价值金线上的翡翠。高级灰与香槟金巧妙跳色,呈现翡翠般的贵韵质感,极简轻盈的镜幕美学,更大化窗墙比,形成通透流荧的视觉感官,映见城市烟火璀璨与翠色万千,充分践行“美无定式,但为你定制”
奥体新核顶流资源凝萃
一场盛会复兴一座新城,奥体板块作为城市竞奔的时代主场,超级规划高速兑现,核心区开发已然饱和。当前一条以奥体大道为轴的都会精华链正在形成,串联赛事服务区、中央商务区,医疗、教育、地铁等生活配套,衍生奥体新核纯粹改善居住区。
拥享奥体中轴王府井(在建中)、万象汇(在建中)等地标级商业综合体,交大一附院陆港医院(在建中)。
近距地铁3号线保税区站,10号线(在建中),路网通达全城。
交大附属陆港第四学校(九年制)规划中,目送式教育护航成长。
近邻最美灞河岸线,南拥奥体中央公园,北接灞渭生态滩区。
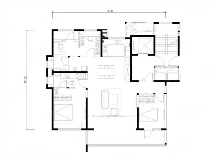
户型鉴赏
134平奇数4室2厅2卫

134平偶数4室2厅2卫
120平偶数3室2厅2卫
109平偶数3室2厅2卫
【绿城桂月云翠】售楼处TEL:029-88777723【售楼中心】
了解最新优惠折扣价格——请拨打售楼处