2025租售中心,荣民中央国际▁层高▁规划图▁配套纯熟▁详细信息

搜狐焦点西安站

2025-06-01 07:57:00

购房群

买房如何避坑,加入购房群,看看他们怎么说

立即进群

西安「荣民中央国际」

售楼处:029-88866618 (营销中心)

售楼部地址:029-88866618 (致电发送详情地址)

基本信息

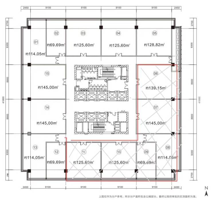
占地面积: 29.21亩

建筑面积: 约19万㎡ ,商业综合体7万㎡,商办3.

总户数: 300户

车位: 439个

物业公司: 自持商业

楼盘价格: 价格待定 周边房价解读

物业类型: 写字楼

区域板块: 城北

产权年限: 40年

开发商: 陕西荣民房地产集团有限公司

楼盘地址: 未央路与玄武路十字东南角地铁2号线大明宫西C口南50米

【公区装修】装修公司——金螳螂(上市公司),公共区域装标3500元/㎡;

【智能安防】24小时视频监控体系、报警消防全方位监测系统;

【柱 距】8.9m-9.3m超大柱距,实现办公可利用面积最大化;

【公 摊】公摊29%公摊率,超高得房率;

【上 下 水】标准层东南角及东北角预留上下水,设置茶歇区;

项目区域配套

【商业配套】近邻荣民龙首广场,印象城,盛龙广场、荣民时代广场、世纪金花、熙地港、大融城等多个购物中心,全方位满足企业商务生活需求;

【政务配套】未央区政府、西安市政府、未央区税务大厅、未央区教育局、陕西省工商管理局、陕西工商税务局、西安市档案局等10余家政府机关分布于项目2公里以内,为企业提供优质的政务关系网;

【荣民中央国际】售楼处TEL:029-81777782【售楼中心】

了解最新优惠折扣价格——请拨打售楼处

全部
报名成功
稍后会有专业的置业顾问联系您
返回楼盘

频道导航

返回首页

看房小程序

APP下载

电话拨通后,请您手动拨打分机号

确定拨打电话

电话号码:

分机号:(可能需要拨分机号)