西安「越秀铁建樽樾」
售楼处:029-88866690(营销中心)
售楼部地址:029-88866690(致电发送详情地址)
在售户型图丨项目详情介绍丨剩余房源丨项目周边配套丨详细在线解答
【越秀铁建樽樾】售楼处TEL:029-88866690【售楼中心】
了解最新优惠折扣价格——请拨打售楼处
【产品篇】




周边配套:
生态资源:永安渠海绵城市公园、大仁遗址公园;
◆商业配套:永安渠商业文旅街(在建中)、未来广场A区(在建中)、首创奥莱、高新玫瑰 ONE(在建中)、阳光天地、长安方圆荟等;
◆教育配套:项目一路之隔西安高新区第十一初级中学、高新区第三十一小学(具体教育配套以后期政府划分为准);
◆医疗配套:西安市第一医院第一院区、西安国际医学中心(西北最大的三级甲等综合性医院)等;

交通状况:
交通:祝村站(地铁15号线,在建中)、高新云轨(试运行中)链接整个高新直达软件新城、西太路,西安南站(规划中)建成后是城南最大的交通枢纽、郭杜西站(地铁15号线与地铁6号线换乘站)、未来之瞳站(地铁6号线)、仁村站(地铁6号线)、国际医学中心站(地铁6号线);

【品牌篇】
『 越秀&铁建 双TOP产品线』
【越秀地产】越秀地产1983年成立,深耕楼市41年,全国最早成立的房地产企业之一、中国第一代商品房的缔造者、广州规模最大龙头国企之一,以“城市地标缔造者”身份,共建广州中轴线珠江新城及天河CBD,以“城市美好生活创领者”的使命愿景,不断打造品质标杆人居。

绿化率: 35%
容积率: 2.8
占地面积: 约110亩
建筑面积: 约206899㎡
总户数: 1012户
车位比: 1:1.2
物业费: 2.2元+1.8元(增值服务费)
物业公司: 越秀服务
开发商: 西安越鼎铁鑫房地产开发有限公司
楼盘地址: 祝仁路和星桥路十字西北角位置
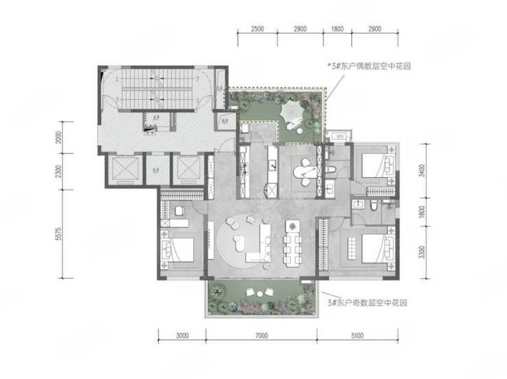
户型展示
220平户型 4室2厅3卫
143平B户型 4室2厅2卫