西安「翰林府」
售楼处:029-88777792(营销中心)
售楼部地址:029-88777792(致电发送详情地址)
在售户型图丨项目详情介绍丨剩余房源丨项目周边配套丨详细在线解答

翰林府项目品鉴
匠筑|陕西基泰源集团
择址|中国·国家级·西安经济技术开发区
都会|一路之隔中小学规划用地,名校、名师加持距4号线元朔路地铁口仅200米,纵享立体交通合生汇(规划中)、熙地港、大融城等繁盛商业资源集萃
场域|总占地约30亩
规制|8栋小高+3栋商业配套
栖境|约2.6容积率、35%绿化率
奢逸|全系一梯一户纯粹领地、南北三阳台赏景
著品|建面约105-143m超四代森境住区
扎根榆林 深耕西安
聚焦高端住宅建设,2021年品牌进驻房产开发领域从拿地到建设,实现完全自有资金运作模式,“0融资、0负债、0杠杆”,实力稳健,行稳致远。
学府优教 筑基未来
文教胜地,起笔人文新章。一路之隔中小学规划用地,名校、名师加持,构筑教育资源的“硬核引擎”项目周边经开系学府环同,经开第十三小学、经开第十四小学、经开第一学校、经开第二学校、经开第六中学,近距优渥教育资源,厚载学识底蕴。
便捷交通
地铁2、12号线(规划中)环伺距4号线元朔路地铁口仅200米西安北站约800米,多维立体路网,纵横驰骋,畅连全城
超配·精心雕琢的人居之境品质筑善 府系奢境
翰林府,基泰源集团运营化后地产开发人居首作,以远见择地、低密规划、创新产品、人文滋养,造诣“府”系进阶人居,品质匠呈,共鸣当代家庭的心中阔境。
第一家通过ISO900国际质量管理体系认证物管企业
中国首批获得一级资质的物业管理企业
连续10年蝉联中国物业管理综合第一
荣获“2024中国住宅物业服务力优秀企业TOP1
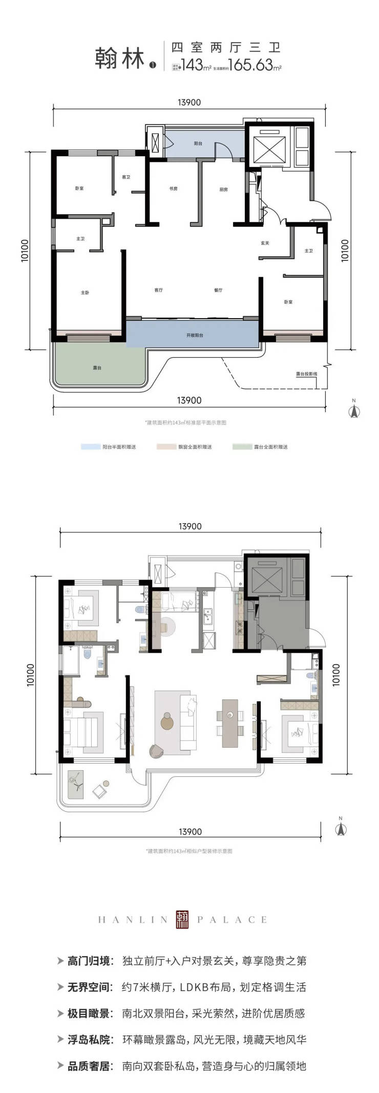
“2024年新质物业品牌价值TOP1”翰林府户型鉴赏】
翰林府户型鉴赏
【翰林府】售楼处TEL:029-88777792【售楼中心】
了解最新优惠折扣价格——请拨打售楼处