(商铺在售)荣民中央国际▁商圈▁规划图▁医院▁甲级写字楼

搜狐焦点西安站

2025-06-08 12:42:00

购房群

买房如何避坑,加入购房群,看看他们怎么说

立即进群

西安「荣民中央国际」

售楼处:029-88866618 (营销中心)

售楼部地址:029-88866618 (致电发送详情地址)

基本信息

楼盘名称:荣民中央国际

规划户数:300户

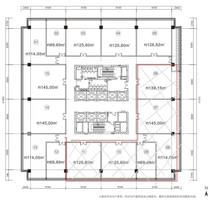
标准层面积:1700-0m²

楼层状况:24层

物业公司:陕西荣民物业服务有限公司

车位数:439

楼盘特点:二至三环 甲级写字楼 配套纯熟 公园 医院

参考价格:15500元/m²

物业类型:办公楼

写字楼类型:标准写字楼

写字楼级别:甲级

开发商:陕西荣民房地产集团有限公司

区域位置:二至三环- 未央区- 大明宫

楼盘地址:未央路与玄武路十字东南角地铁2号线大明宫西C口南50米

【楼栋数量】甲级写字楼1栋,超甲级270米超高层1栋;

【物业标准】5A甲级商务办公;

【面积区间】120-1700平米,单层产权分户15户,面积灵活组合;

【公 摊】公摊29%公摊率,超高得房率;

【上 下 水】标准层东南角及东北角预留上下水,设置茶歇区;

项目区域配套

【酒店配套】1公里以内赛瑞喜来登、印力诺富特、亚多精选、柏瑞、美豪等多个星际酒店林立,可充分满足企业商旅需求;

【人文配套】东侧800米紧邻城北绿肺大明宫国家遗址公园,国家5A级旅游景区,臻享健康办公环境。

【荣民中央国际】售楼处TEL:029-81777782【售楼中心】

了解最新优惠折扣价格——请拨打售楼处

全部
报名成功
稍后会有专业的置业顾问联系您
返回楼盘

频道导航

返回首页

看房小程序

APP下载

电话拨通后,请您手动拨打分机号

确定拨打电话

电话号码:

分机号:(可能需要拨分机号)