西安「保利锦上」
售楼处:029-88777723(已认证)
售楼部地址:029-88777723(致电发送详情地址)
在售户型图丨项目详情介绍丨剩余房源丨项目周边配套丨详细在线解答

保利·锦上项目笔记
央企保利首进国港力作!
保利四大产品系列“善居”系,中高端改善作品序列
占据政经核心奥体中轴景观,尽享优质配套资源

『品牌篇』
中国保利集团是国务院国资委管理96家大型央企之一,连续五年上榜《财富》世界500强,2021年世界五百强排名174位。
保利2012年首入古都西安,2019年销售额破百亿,始终与大西安共发展,截止2020年共完成了品牌四大产品系的全城布局,开发优质项目逾16个,覆盖经开、沣东、高新、曲江、浐灞等重点区域,目前已有超10万的庞大业主基数。

商业
保利·锦上范围内坐拥砂之船奥特莱斯、华南城购物中心、澜博跨境购物中心、大悦城购物中心(在建)、融创冰雪世界(在建)等繁华商业,时尚生活触手可及。

文娱
四大“长安系”(包括长安云、长安乐、长安书院等)
融创冰雪世界,创造“全龄段、全年度、全天候”且全年运营的室内冰雪场馆。让您和家人的休闲娱乐生活更加丰富多彩。

『物业篇』—— 一级物业管理 守护你的美好生活
保利物业是保利发展控股集团旗下全资子公司,于1996年6月在广州成立,并与2019年成功在港股上市(06049.HK),综合实力行业前三。
保利在全国共管理了全国100多座城市超过770个住宅社区和60个商业物业,服务超300多万户业主,客户满意度常年排在行业标杆。

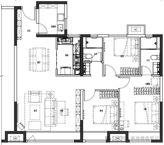
『项目产品』
北区3栋(7# 9# 11# ),共计约248套房源,层高18F、22F,2梯4户,主力户型建面约108㎡/128㎡
公摊:18%-21%
『主力户型』
108㎡—3室2厅2卫+家政间
128㎡—3+1室2厅2卫(5.4米大宽厅)
【保利锦上】售楼处TEL:029-88777723【售楼中心】
了解最新优惠折扣价格——请拨打服务热线