西安「越秀铁建樽樾」
售楼处:029-88866690(营销中心)
售楼部地址:029-88866690(致电发送详情地址)
在售户型图丨项目详情介绍丨剩余房源丨项目周边配套丨详细在线解答

基本信息
楼盘名称:越秀铁建·樽樾 在售
楼盘特点:一房一价 无需摇号 学校 配套纯熟 医院
参考价格:26836元/m²
物业类型:住宅
区域位置:三环外- 高新- 丝路科学城
最新开盘:2024年9月11日
交房时间:2026年4月30日
售楼处地址:祝仁路与星桥路交汇处西北角

区位优 板块腾飞
纵观西安发展格局,成立于1991年的西安高新区,作为国务院首批批准的高级新区代表了一个西安城市发展的最高水平。从高新 1.0 的初级产业时代到高新 2.0 的中央商务区时代,高新区以一次创业、二次创业为契机,先后打造了科技路、唐延路、锦业路为核心的三个城市商务中心。2017年2月高新区吹响了三次创业的冲锋号,正式拉开了“三次创业”的帷幕。

『周边配套』
◆交通:祝村站(地铁15号线,规划中)、高新云轨(在建中)链接整个高新直达软件新城、西太路、西安南站(规划中)建成后是城南最大的交通枢纽、郭杜西站(地铁15号线与地铁6号线换乘站)、未来之瞳站(地铁6号线)、仁村站(地铁6号线)、国际医学中心站(地铁6号线);
◆生态资源:永安渠海绵城市公园、大仁遗址公园;

◆商业配套:永安渠商业文旅街(在建中)、未来广场A区(在建中)、首创奥莱、高新玫瑰 ONE(在建中)、阳光天地、长安方圆荟等;
◆教育配套:项目一路之隔西安高新区第十一初级中学、高新区第三十一小学(具体教育配套以后期政府划分为准);
◆医疗配套:西安市第一医院第一院区、西安国际医学中心(西北最大的三级甲等综合性医院)等;
【产品篇】
『臻品之上 世界如我所见』
第四代住宅 连接未来“森活"




户型展示
190平户型 4室2厅3卫
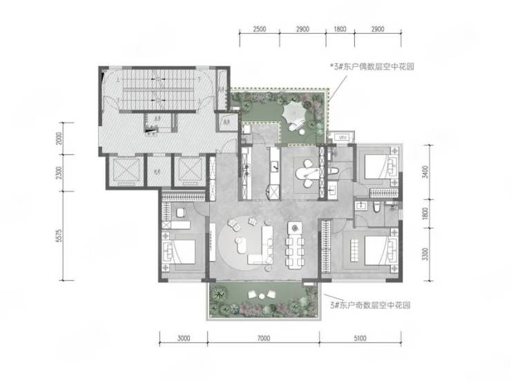
262平户型 5室2厅3卫
143平B户型 4室2厅2卫
【越秀铁建樽樾】售楼处TEL:029-88866690【售楼中心】
了解最新优惠折扣价格——请拨打售楼处