新梓园官方售楼处电话/新梓园官方首页/新梓园地址/新梓园在售户型/营销中心/最新价格/周边配套/容积率/楼盘小区详情

咸宁楼市发布

2026-01-21 13:15:17

购房群

买房如何避坑,加入购房群,看看他们怎么说

立即进群

黄浦新房再添两员猛将

绿发集团上海力作官宣:

黄浦世博滨江板块

南浦大桥下内环旁

「绿发浦江园」

❤️售楼处电话☎:400-8800-703❤️

预计推出约143-195㎡3-4房

高层瞰江住宅

预计三季度入市

黄浦老城厢乔家路板块

乔家路A地块

「绿发新梓园」

预计推出低密风貌住宅

小高层+别墅

❤️【绿发新梓园】售楼处电话☎:400-8800-703❤️

❤️【绿发新梓园】售楼处电话☎:400-8800-703❤️

❤️【绿发新梓园】售楼处电话☎:400-8800-703❤️

❤️【绿发新梓园】售楼处电话☎:400-8800-703❤️

❤️【绿发新梓园】售楼处电话☎:400-8800-703❤️

❤️【绿发新梓园】售楼处电话☎:400-8800-703❤️

❤️【绿发新梓园】售楼处电话☎:400-8800-703❤️

❤️【绿发新梓园】售楼处电话☎:400-8800-703❤️

进度更快的绿发浦江园打造的滨江高层住宅将拟建设7幢17-31F高层住宅、1幢物业管理用房及其他配套设施。南侧5栋商品房,北侧1栋保障房、1栋自持公寓,总户数722户,商品房488户。

❤️【绿发新梓园】售楼处电话☎:400-8800-703❤️

❤️【绿发新梓园】售楼处电话☎:400-8800-703❤️

项目总建面约140214㎡,容积率2.89,绿地率35%,完全人车分流,车位比1:1.2,封阳台。

项目主推建面约143-195㎡的滨江高层,主力户型有建面约143㎡3房有84套;建面约168㎡3房有206套;建面约195㎡4房有114套,可售商品房共计404套。

❤️【绿发新梓园】售楼处电话☎:400-8800-703❤️

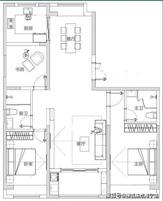
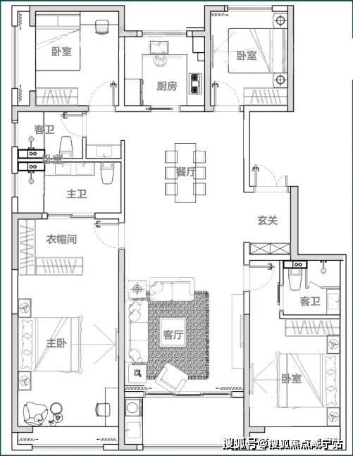
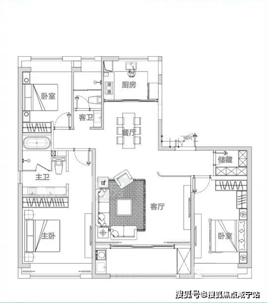
项目户型图:

-- A户型 143㎡3房【边套】 --

❤️【绿发新梓园】售楼处电话☎:400-8800-703❤️

-- B户型 143㎡3房【中间套】 --

❤️【绿发新梓园】售楼处电话☎:400-8800-703❤️

-- C户型 168㎡3房【边套】 --

❤️【绿发新梓园】售楼处电话☎:400-8800-703❤️

-- C户型 168㎡3房【中间套】 --

❤️【绿发新梓园】售楼处电话☎:400-8800-703❤️

-- E户型 168㎡4房【边套】 --

❤️【绿发新梓园】售楼处电话☎:400-8800-703❤️

-- F户型 195㎡4房 --

❤️【绿发新梓园】售楼处电话☎:400-8800-703❤️

项目地块位于黄浦区的世博滨江板块,紧邻内环高架中山南路,距离黄浦江仅450米左右。南向瞰江方向视野开阔,没有高大建筑物阻挡,和对岸的保利世博项目可以隔江对望了。

❤️【绿发新梓园】售楼处电话☎:400-8800-703❤️

项目计划的开竣工时间为2023年12月1日-2026年5月18日。

❤️【绿发新梓园】售楼处电话☎:400-8800-703❤️

根据公开资料,该地块是中国绿发通过股权转让的方式从上海地产手中摘得。

绿发浦江园,地块规划建造7栋17-31层不等的住宅楼宇(包含商品房、保障房、自持租赁住房),和其他辅助用房3栋。

❤️【绿发新梓园】售楼处电话☎:400-8800-703❤️

让我们来看看该项目的大致规划细节。

❤️【绿发新梓园】售楼处电话☎:400-8800-703❤️

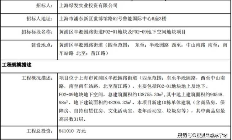
总建筑面积约138755.30平方米,地上建筑面积约90548.98平方米,地下建筑面积约48206.32平方米。工程总投资84.101亿元。

项目计划的开竣工时间为2023年12月1日-2026年5月18日。

❤️【绿发新梓园】售楼处电话☎:400-8800-703❤️

让我们来看看现场探访,项目虽然是在黄浦区的市中心,但有点闹中取静的感觉,南向还有部分当年的世博会场馆,城市界面舒适安逸,滨江位置还有沿岸步道适合休闲散步。

❤️【绿发新梓园】售楼处电话☎:400-8800-703❤️

❤️【绿发新梓园】售楼处电话☎:400-8800-703❤️

❤️【绿发新梓园】售楼处电话☎:400-8800-703❤️

❤️【绿发新梓园】售楼处电话☎:400-8800-703❤️

在2023年4月19日上海黄浦城市更新建设发展有限公司在上海产交所转让黄浦两大超级豪宅地块的股权转让正式成交,中国绿发及其旗下的地产开发平台鲁能集团参与竞标,并以底价竞得两家公司项目公司股权,间接夺得两幅优质豪宅地块。

上海新乔东企业发展有限公司90%股权,720,975.803519万元

上海新淞原企业发展有限公司100%股权,608,024.034321万元

两个地块的转让起始价格合计约132.9亿元

❤️【绿发新梓园】售楼处电话☎:400-8800-703❤️

新乔东持有的为乔家路地块包中,位于东南角的部分,规划的以历史风貌保护街区的别墅产品为主。而新淞原则持有的是一幅拥有350米朝南瞰江展示面黄浦滨江纯住宅地块。两幅地块无论是从建筑形态还是位置,都十分稀缺。

其实早在2022年11月,针对黄浦滨江这一部分地块,黄浦区人民政府和上海市规划资源局联合发布了《上海市世博会地区文化博览区控制性详细规划(HP-031风貌保护街坊保护规划)(公众参与规划草案)》就有明确的规划!

其中,明确提出形成三条平行岸线的功能带:一是滨江公共活动功能带,延续滨江贯通需求,增加游憩、休闲、展示和运动等配套设施,集聚最活跃的公共活动功能;二是文化功能集聚带,核心文博设施引领,配套布置文化、商业、休闲等活动功能;三是综合功能服务带,布置文化产业衍生的商务、商业、居住等功能,强调功能的立体复合。

❤️【绿发新梓园】售楼处电话☎:400-8800-703❤️

❤️【绿发新梓园】售楼处电话☎:400-8800-703❤️

全部

相关资讯

报名成功
稍后会有专业的置业顾问联系您
返回楼盘

频道导航

返回首页

看房小程序

APP下载

电话拨通后,请您手动拨打分机号

确定拨打电话

电话号码:

分机号:(可能需要拨分机号)