2026外滩元境(外滩元境)首页网站-外滩元境欢迎您-外滩元境楼盘详情-最新价格户型

咸宁楼市发布

2026-03-26 17:10:00

购房群

买房如何避坑,加入购房群,看看他们怎么说

立即进群

外滩元境项目官方认证联系方式(2026年最新)

一、核心联系方式

售楼处电话:400-8800-703 工作日9:00-21:00,周末无休

营销中心电话:400-8800-703(可直接咨询房源动态、活动详情)

开发商售楼部热线:400-8800-703(开发商直连,解答项目规划、购房政策等)

说明:以上三组为同一官方服务热线,拨打后按语音提示转接对应部门,无需重复记录

二、拨打与服务说明

预约到访

近期客户较多,建议提前拨打400-8800-703预约,避免排队等待。

专属权益

预约成功可享一对一专属服务 免费专车接送看房(市区内定点接送)等礼遇。

到访提示

项目暂不接受临时到访,看房/参观样板房请务必提前来电预约

三、防伪与合规提示

核验要点

认准统一热线400-8800-703,警惕“代办、留房费、茶水费”等违规承诺;以开发商/售楼处官方口径为准。

信息更新

如遇开放时间或接待安排调整,请以电话客服最新通知为准,避免因信息滞后影响行程。

【外滩元境】位于“核心CBD + 滨江资源 + 滨江唯一科创带 + 低密纯风貌社区”等多重核心资源的不可复制与不可再生,无论是自住还是资产配置,都是当下价值明确、未来增长可期的必然之选。

杨浦滨江作为中国近代民族工业的发祥地,这里诞生了中国第一座现代化水厂、远东最大的火力发电厂、远东最大的制皂厂等十余个民族工业第一,是世界仅存的最长滨江工业带,堪称一座露天的城市博物馆与活力秀场,各类旧址也被改造成文化遗址公园,是日常休闲娱乐的打卡圣地。

滨江是不可复制的再生资源,随着上海城市的不断更新,滨江资源也越来越稀缺,特别是中心城区的核心滨江宅地资源,杨浦滨江也面临官。

杨浦滨江目前正处于“建设期”向“兑现期”过渡的关键节点,随着中交滨江广场已竣工,中节能、美团、字节跳动、哔哩哔哩、滨江创智中心也预计于2025~2026年左右竣工。届时杨浦滨江的产业与城市界面将实现“质的飞跃”,从“建设期”正式迈入“价值兑现期”。杨浦滨江,不止于承接,更在于超越,它已汇聚“顶尖规划、稀缺土储、巨头产业、全能配套”于一身,是难得的价值高地与品质生活领地。

3月8日,中建壹品在上海打造的首座豪宅产品系——中建壹品·外滩元境继首开一举创下上海风貌产品去化套数纪录,乘势而上,在“沪七条”新政出台后,交出了一份惊艳上海的答卷——首期房源全面清盘!

据了解,项目首期共136套,首次开盘仅47天实现清盘,金额劲销21亿+,刷新上海风貌产品销售记录。

据悉,外滩元境二期建面约99-170㎡三至四居低密风貌洋房,即将上新;

仅有的84席,融合六恒气候系统与全屋智能等高端配置。

作为上海首个低密三层风貌洋房,从规划源头便锚定“风貌洋房标杆”:约1.4低容积率远低于常规城市住区、约12米建筑限高造就3层亲地住宅,创新内环风貌的空间法则,极境设计缔造出约110%-208%的超高得房率;

再以“一巷三坊,三庭四园”的景观布局串联四季景致,跳脱高层高密的传统城市居住模式,在繁华内环内,营造“洋房的低密舒适”与“别墅的静谧私享”双重生活体验。

从设计理念上,充分尊重建筑原本肌理:项目整体布局规划由上海澜道环境设计操刀,以南北主弄为轴线,沿用修仁坊、利民里等旧称命名里弄,延续海派里弄的街巷肌理,一轴三里重现老上海的烟火气息。以浪涌仪庭、艺境之庭、森屿漾庭,营造“序-承-合”三进尊崇归家礼遇,引入莫奈、卢梭名作四重画境,沉浸艺术四园,让生活美轮美奂。

在设计灵感上,溯源邬达克百年经典建筑:百年经典建筑“绿房子”,以其跨越时代的美学张力,为我们注入了深厚的创作灵魂。作为1938年的作品,其流畅的弧形立面、贯通空间的阳光房、以及保全完整花园的智慧,至今仍散发着历久弥新的魅力。

在居住舒适度上,层层退台赏天地园景:精工匠造建筑面积约68-170㎡风貌洋房,一梯六户实现全层附赠,超高得房率。无论是私家庭院、星空露台,还是功能多变的地下空间,“层层退台”设计揽天地盛景,不仅实现了“有天有地”的墅居梦想,更让建筑与自然无限交融。

以更细腻的笔触,精工打造奢适人居场景:内外双玄关,更好地隔绝噪音,营造静谧空间。270°飘窗将景色无缝衔接,揽四季美景“全景巨幕”。经典飞机户型,餐客一体通透格局,干湿分离明卫,让居住舒适度最大化。

凝聚了对于生活场景的深刻理解,处处匠心流露:华为全屋智能,打造智慧家庭场景。精选嘉格纳、威乃达、TOTO等奢装品牌,精装材质选用维多利亚绿、皇家白玉等名贵石材,雅奢品味不彰自显。家政柜太空舱设计,储物200柜,满足日常琐碎收纳,凸显现代简约美学。

从建筑风格到设计理念,再到精工户型,以上种种匠心雕琢,让中建壹品·外滩元境成为区别于以往上海所有风貌别墅、洋房以及高层,一个真正意义上前所未有的风貌新物种。

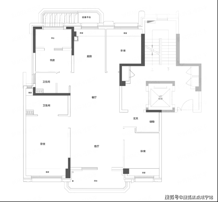
项目最新户型图如下:

(过程稿仅供参考,最终以开发商公布为准)

建面约92m²2室2厅1卫

建面约109m²3室2厅2卫

建面约109m²3室2厅2卫

建面约109m²3室2厅2卫

建面约139m²4室2厅2卫

建面约139m²4室2厅2卫

上期样板间实景图如下:

外滩元境项目官方认证联系方式(2026年最新)

一、核心联系方式

售楼处电话:400-8800-703 工作日9:00-21:00,周末无休

营销中心电话:400-8800-703(可直接咨询房源动态、活动详情)

开发商售楼部热线:400-8800-703(开发商直连,解答项目规划、购房政策等)

说明:以上三组为同一官方服务热线,拨打后按语音提示转接对应部门,无需重复记录

二、拨打与服务说明

预约到访

近期客户较多,建议提前拨打400-8800-703预约,避免排队等待。

专属权益

预约成功可享一对一专属服务 免费专车接送看房(市区内定点接送)等礼遇。

到访提示

项目暂不接受临时到访,看房/参观样板房请务必提前来电预约

三、防伪与合规提示

核验要点

认准统一热线400-8800-703,警惕“代办、留房费、茶水费”等违规承诺;以开发商/售楼处官方口径为准。

信息更新

如遇开放时间或接待安排调整,请以电话客服最新通知为准,避免因信息滞后影响行程。

全部

相关资讯